Предимства на имота:
- ЛОКАЦИЯ: Къщата се намира на ул. 'Волга', точно под 'Бунарджика'.
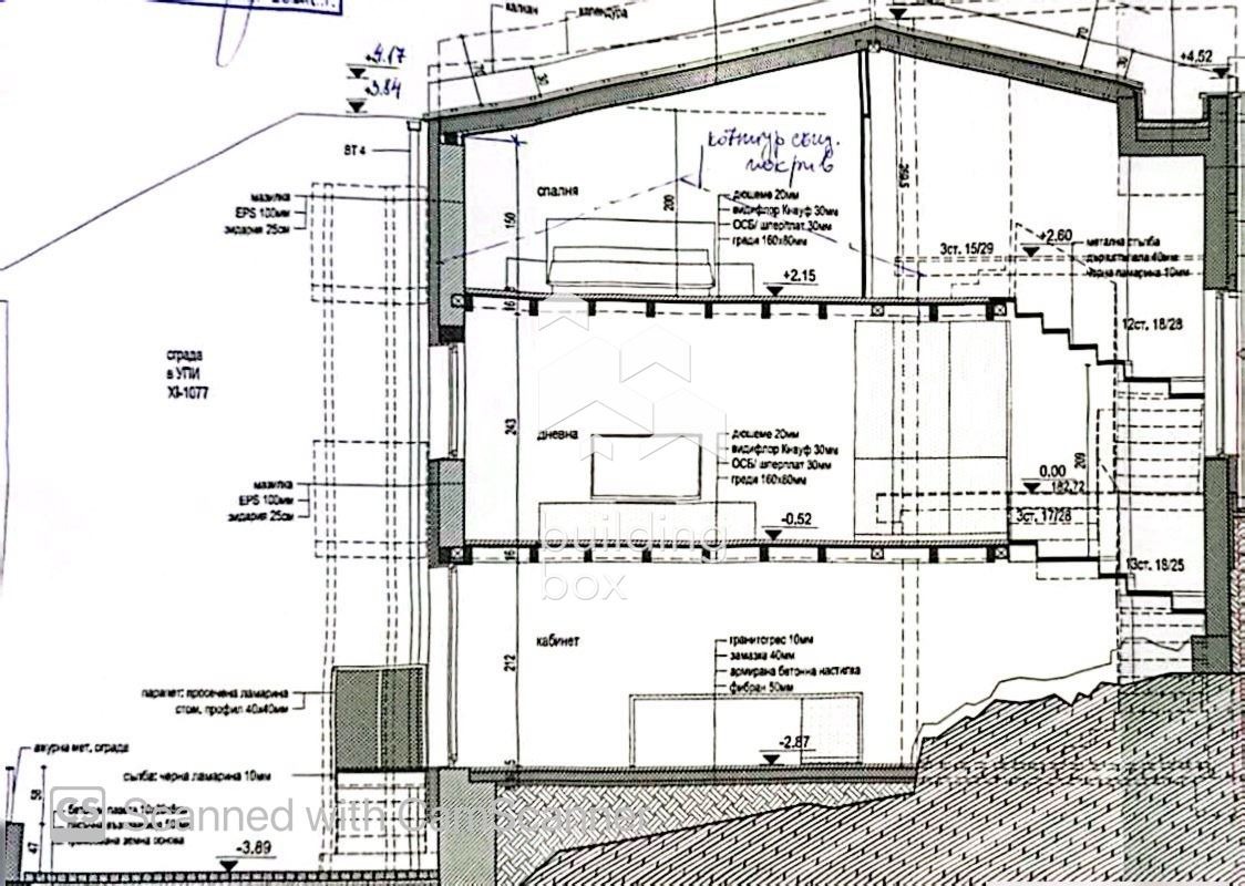
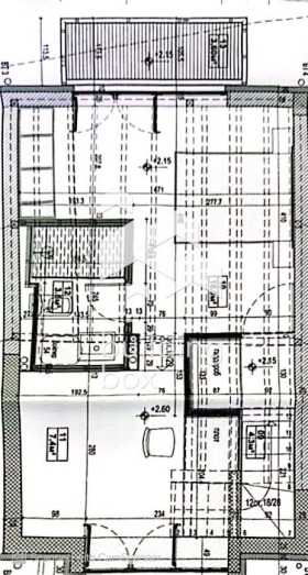
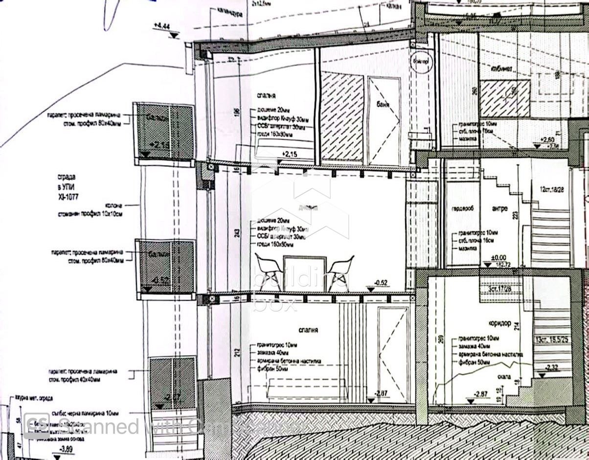
- ЕТАЖНОСТ и РАЗПРЕДЕЛЕНИЕ:
Първи етаж - Спалня, баня с тоалетна и кабинет, както и изход към двор и веранда.
Втори етаж - Антре, тоалетна за гости, гардеробна, хол с кухненски бокс и балкон.
Трети етаж - Спалня, баня с тоалетна, кабинет и балкон.
- ОТОПЛЕНИЕ: Електричество.
- ИЗЛОЖЕНИЕ: СЕВЕР/ЗАПАД/ЮГ.
- ПАРКИРАНЕ: Има паркомясто пред входа.
- СТРОИТЕЛСТВО: Тухла.
- СТЕПЕН НА ЗАВЪРШЕНОСТ: Къщата ще бъде завършена до АКТ16 в срок от 1 година с висок клас материали.
- ПРЕДИМСТВА НА ИМОТА:
УНИКАЛНИ ПАНОРАМНИ ГЛЕДКИ
ЦЕНА БЕЗ АНАЛОГ НА ПАЗАРА.
- ДОПЪЛНИТЕЛНИ ПРЕДИМСТВА: Имотът може да бъде отдаван на нощувки, като възвращаемостта от инвестицията е над 10%.
БИЛДИНГ БОКС предоставя безплатна консултация и съдействие при финансиране на избрания от Вас имот.
Оферта 25439
Виж всички обяви в buildingbox.bazar.bg или тук



