Комплексът от къщи предлага чист въздух, страхотни гледки, спокойствие и забележителна панорама към столицата и заобикалящите я планини. В близост има конна база, магазин Метро, АИКО и други търговски вериги, яз. Пожарево, и гр.Банкя. Районът на община Божурище е обявен за един от най-чистите в екологично отношение райони. На разстояние от 8 км се намира метростанция Сливница, като транспортът до там се осъществява от автобусна линия 54 и маршрутни таксита. Комплексът ще бъде достъпен посредством асфалтов път.
Еднофамилните къщи, всяка от които е с просторен двор, са разположени в собствен парцел с площ 505 кв.м, който място дава възможност да развихрите въображението си и да го използвате по ваш вкус.
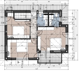
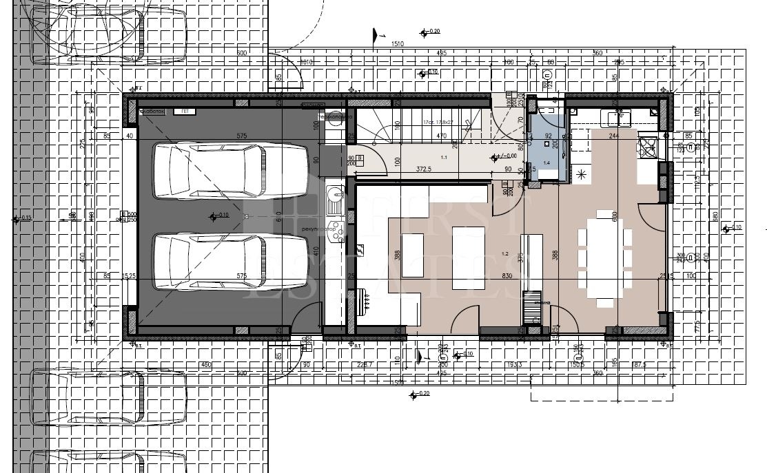
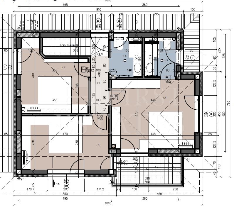
Разпределението е функционално и практично, ориентирано на югоизток, на два етажа с РЗП 181 кв.м.:
етаж 1: входно антре; просторна, слънчева дневна с югоизточно изложение и излаз към приземна тераса; тоалетна; гараж с техническо помещение;
етаж 2: три спални, едната от които е родителска спалня с баня и собствен балкон, отделна баня с тоалетна.
Основни характеристики и предимства:
възможност за 3 външни паркоместа освен покрития двоен гараж:
подово отопление на двата етажа и система за конвектори;
термопомпена инсталация за отопление и охлаждане (въздух-вода);
водоизточник - централен водопровод;
пречистване на водата локално във всяка къща посредством филтри и омекотяваща система;
покрив: висококачествени керамични керемиди със снегозадържаща система;
тухли: 25 см, Wienerberger Porotherm;
изолация: 15 см EPS;
прозорци: петкамерна PVC дограма Саламандър, троен стъклопакет, монтирани комарници;
декоративна облицовка от гнайс и мазилки-дървесен декор;
възможност за изграждане на басейн, камина, фотоволтаична инсталация;
Цената е без вкл. ДДС.
За повече информация и организиране на оглед, моля свържете се с нас на телефон: 0 700 15 15 1 и цитирайте код на офертата: 2-12198
Виж всички обяви в first_estates.bazar.bg или тук







