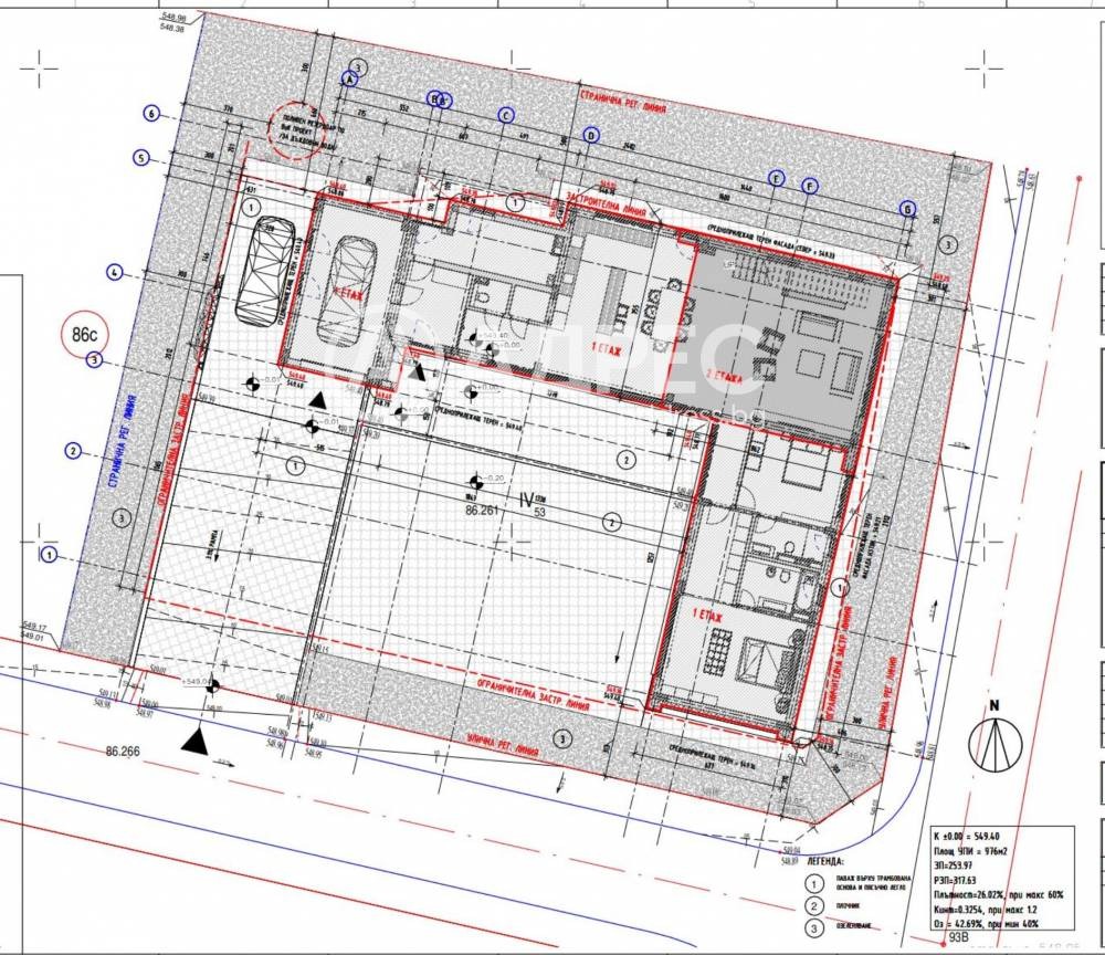
Комплексът - Aurelia Homes - се намира в с./гара Елин Пелин на 15 км. от гр. София
Тишина, чист въздух и простор
Близо до магазини, училище, аптека, детска градина
Панорамна гледка и слънчево изложение
Спокойствие без компромис с достъпността
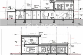
Стоманобетонна носеща конструкция.
Вентилирана фасада, в комбинация с камък, HPL и мазилка.
Отоплението на къщите е с газ, ток или термопомпа по избор на клиента. Отоплението е подово.
Предвидени излази за кабелна телевизия и интернет.
Висок клас алуминиева дограма. Троен стъклопакет, PVC дистанционер.
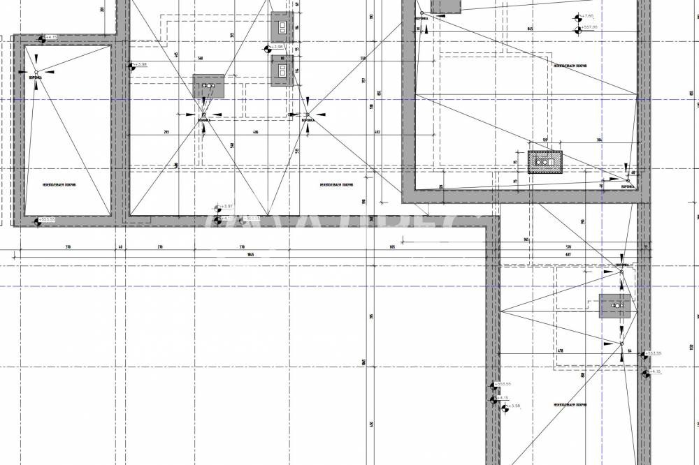
Изолация - вата при окачената фасада; EPS в участъците с мазилка; XPS в участъците, където е необходимо и поставяне на хидроизолация.
Комин за камина по желание на клиента.
Топла вода се осигурява от бойлер с двойна серпентина свързан към терпомпата или газовата инсталация.
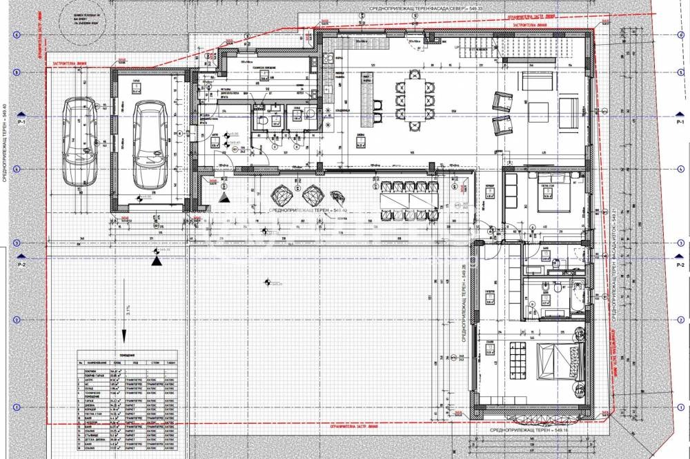
Външните стени са тухлени с дебелина 25 см. Покрива е плосък, стоманобетонен..
Къщите ви дават възможност да получите комфортен начин на живот с концепция за зелен дом с поглед в бъдещето, голям, самостоятелен двор, тишина и уединеност в комплекса. По желание на клиента е възможно да се добавят: басейн; барбекю, ландшафт с цветя и плочопътеки; модерно интериорно обзавеждане на дома
Обади се сега и цитирай този код 664812
Виж всички обяви в address.bazar.bg или тук







