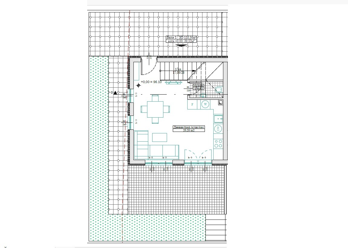
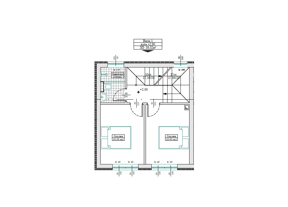
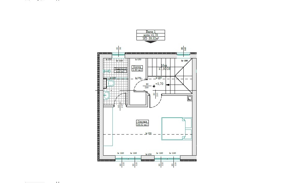
Първият етаж със застроена площ 39,52 кв.м се състои от дневна с кухненски бокс (26,28 кв.м) и излаз на веранда (17,83 кв.м), коридор и тоалетна (2,04 кв.м). Вътрешно стълбище води до втория етаж със застроена площ 39,52 кв.м, включващ две спални (по 10 кв.м всяка), коридор и баня с тоалетна (3,34 кв.м). Вътрешно стълбище води до третия етаж със застроена площ 39,52 кв.м, представляващ една голяма спалня (18,52 кв.м) с баня с тоалетна (4,41 кв.м), коридор и килер (2,9 кв.м). Изложението е юг/запад/север.
Къщата се продава необзаведена. Ще бъде завършена до степен БДС:
- дограма REHAU Synego - 80 мм, с троен стъклопакет;
- входна врата HORMAN;
- система за подово отопление;
- фасадна топлоизолация 12 см, Eps на BAUMIT;
- покривна топлоизолация 15 см, каменна вата на KNAUF;
- подова топлоизолация 8 см на FIBRAN;
- веранда, настилка от гранитни плочи;
- паркинг, настилка от бетонни павета Semmelrock;
- стени с керамични блокове на Porotherm;
- външен извод за поливна система;
- покривни прозорци Velux.
Триетажната къща е част от жилищен комплекс от няколко редови къщи, на начален етап на строителство (Разрешение за строеж - август 2025 г.). Ще бъде завършен до края на 2026 г. Към предлаганата къща има самостоятелен двор с площ 230,12 кв.м, с две открити паркоместа. Предвидена е разсрочена схема на плащане: 30% на Предварителен договор, 30% на Акт 14, 30% на Акт 15 и 10% на Акт 16 (Разрешение за ползване).
Оферта 0221234
Виж всички обяви в varnatrend.bazar.bg или тук







