Предимства на имота:
ЛОКАЦИЯ: В близост до центъра на селото спокойна локация далеч от шума и същевременно с бърз достъп към ул. ,,Брезовско шосе' и гр. Пловдив.
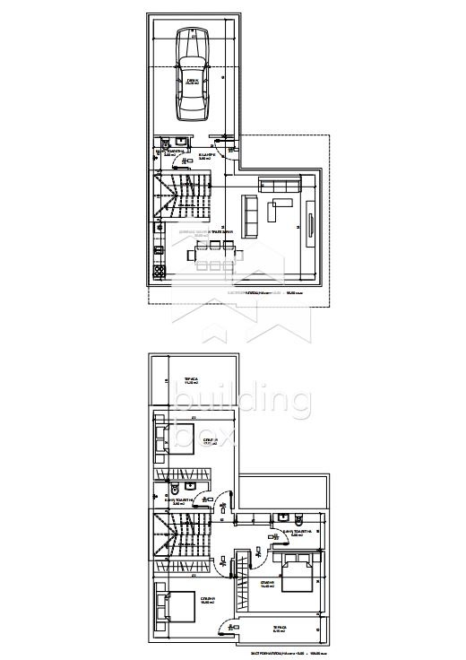
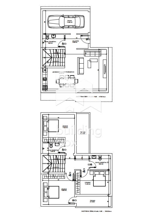
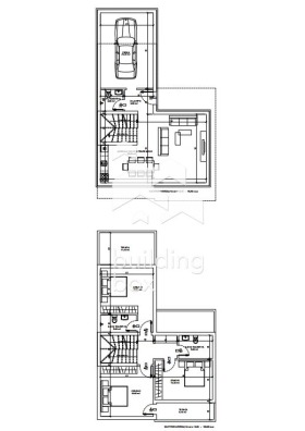
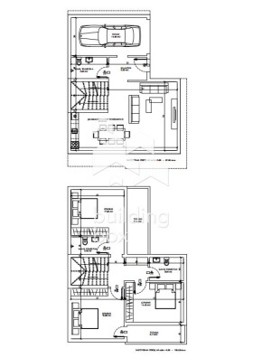
ЕТАЖНОСТ и РАЗПРЕДЕЛЕНИЕ: Къщата е на два етажа и разполага със собствен двор. Общата квадратура на къщата е 205 кв.м., разпределени както следва:
Първи етаж Входно антре, изключително светла дневна с трапезария и кухненски бокс, с площ от 39 кв.м., баня с тоалетна и гараж с топла връзка към къщата;
Втори етаж На второто ниво са разположени три просторни спални, едната от които е със собствена баня и тоалетна, две от спалните имат излаз на тераса, коридор и още една баня с тоалетна.
ОТОПЛЕНИЕ: Електричество.
ПАРКИРАНЕ: Към цената на къщата има включен гараж.
ДВОР: Дворът е с площ 260 кв.м.
СТЕПЕН НА ЗАВЪРШЕНОСТ: Пред АКТ 14.
-- СХЕМА НА ПЛАЩАНЕ: Гъвкава схема на плащане.
Билдинг Бокс предоставя безплатна консултация и съдействие при финансиране на избрания от Вас имот.
Оферта 17941
Виж всички обяви в buildingbox.bazar.bg или тук







