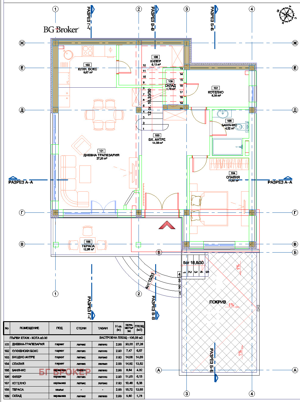
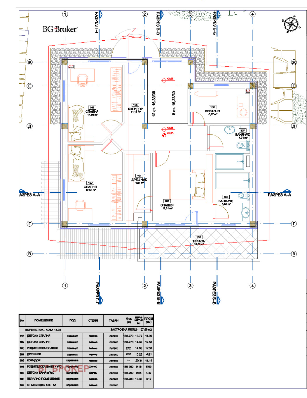
Къщата е с разгъната застроена площ (РЗП) 233 кв.м. и има следното разпределение:
- Етаж 1: дневна с трапезария и кухненски бокс, тераса/веранда, спалня/кабинет, баня с тоалетна, килер и котелно
- Етаж 2: три спални, две бани с тоалетни /една към спалня/, склад/перално и две тераси.
Проекта на къщата е много красив, с разчупена архитектура. Парцелът е на асфалтирана улица, граничещ с къщи в които живеят целогодишно. Подходящ за постоянно живеене или инвестиция.
Локация: гр. Сливница удобно разположение с бърз достъп до София.
Оферта 11529
По желание на купувача може да съдействаме при избор и координация на строителни фирми за довършване на проекта.
Възможна покупка с кредит. Съдействие за жилищно кредитиране.
За повече информация:
тел. 0890 311 119
e-mail: [email protected]
www.bgbroker.bg
РАБОТИМ САМО С КОРЕКТНИ КОЛЕГИ И АГЕНЦИИ!
Огледи по всяко време с предварителна уговорка. Възможни са и през почивни дни!
Виж всички обяви в bgbroker.bazar.bg или тук
        
       
         
         
         
         
         
         
         
         
         
         
         
         
         
         
         
         
             
             
             
             
             
             
             
             
             
             
             
             
             
             
             
            






