Translations in other languages:
All real estate ads published on imot.bg have been translated into English and published on the partner site
Получихте нова обява по филтър





Промяна на цена на наблюдавана обява


стара цена
нова цена
imot.bg – обяви за продажби и наеми на имоти
Сайт за имоти №1
Начало Публикуване Търсене Нови сгради Агенции Новини Кредити + Още... Моят имот
Продава КЪЩА
град София, с. Бистрица
670 000 €
1 310 406.10 лв.

(3 418 €, 6 685.03 лв./m2)
Цената е с включено ДДС
Публикувана в 11:37 на 2 октомври, 2025 год.
Обявата е посетена 86 пъти.
Площ:
196 m2
Двор:
366 m2
Етаж:
0 от 3
Строителство:
Тухла, 2024 г.

Описание на имота:

Открийте вашия дом в сърцето на природата Комплекс от 6 редови къщи в Бистрица пред АКТ 16

Forton Homes представя уютен дом сред величествени планини и зеленина, където всяка сутрин започва с чист планински въздух и панорамни гледки.

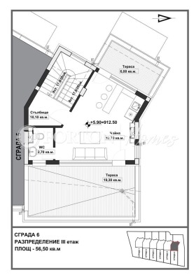
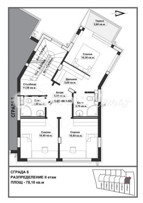
Предлагаме къща изградена на 3 нива с площ от 196.10 кв.м. и дворно простанство от 365.68 кв.м.
Имотът е със следното разпределение:
Ниво 1 - антре, дневна, трапезария, кухненски бокс, тоалетна, складово помещение, веранда ,две паркоместа
Ниво 2 - антре, три спални,две бани и тераса
Ниво 3 - антре, кабинет/ стая за отдих, тоалетна и тераса

Имотът се предлага със завършени настилки, готови бани, интериорни врати, термопомпа и конвектори за охлаждане включени в ценяата. Изградено е и подово отопление навсякъде.

Къщите са изградени с премиум материали и внимание към всеки детайл, предлагащи максимален комфорт и уют.

Само на 15 минути от центъра на града;
В подножието на планината Витоша;
Красиви панорамни гледки;
Комфортни разределения;
Самостоятелни д... Виж повече
Виж всички обяви на агенцията в forton.bazar.bg или тук.
Особености:
• Тухла
       


За контакти:  0882344673
Брокер: Мира Зашева

Телефон: +359882344673

Още оферти от брокера: продава | дава под наем | купува | наема
Изпрати запитване:
 
Вашето съобщение (до 1000 символа):
Вашето име: Вашия мобилен телефон:

Вашия E-mail:  
Изпрати Е-mail
Съгласявам се с общите условия и политики за защита на личните данни
Агенция: ФОРТЪН АД

http://forton.imot.bg

Още оферти: продава | дава под наем | купува | наема

Адрес: област София, гр. София, София, бул. Цариградско шосе 115Г
Тел.: 00359889089090

Продава КЪЩА
град София, с. Бистрица
Обява: 1j175939426712343

670 000 €
1 310 406.10 лв.
(3 418 €, 6 685.03 лв./m2)

Цената е с включено ДДС
 

Местоположение: град София, с. Бистрица

Допълнителни данни за имотите в района и сравнение с други райони: Търсене в АРХИВ 2013 - 2025 г.











Добави/редактирай
вид имот и район
*Средните цени са определени чрез медиана стойност.

Още обяви в imot.bg
КОНТАКТИ | SMS КОДОВЕ | СТАТИСТИКА | ПОМОЩ | ОБЩИ УСЛОВИЯ | РЕКЛАМА | ТОП ОФЕРТА | Въпроси и предложения към imot.bg
Резон Медия | Имоти | Автомобили | Работа | Новини | Обяви | Преводи и легализация 2002-2025 ® Copyright imot.bg
Следвайте ни в: