Реф.номер: 1404
ПРОСТОРНА СЯМОСТОЯТЕЛНА КЪЩА С ДВОР В ПОЛИТЕ НА РОДОПИТЕ
Предлагаме Ви за покупка просторна САМОСТОЯТЕЛНА КЪЩА с голям ДВОР, много чист въздух и панорамни гледки.
Основни характеристики:
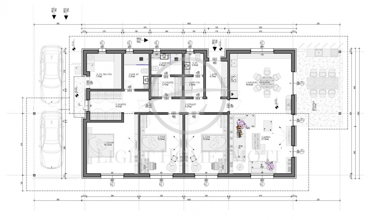
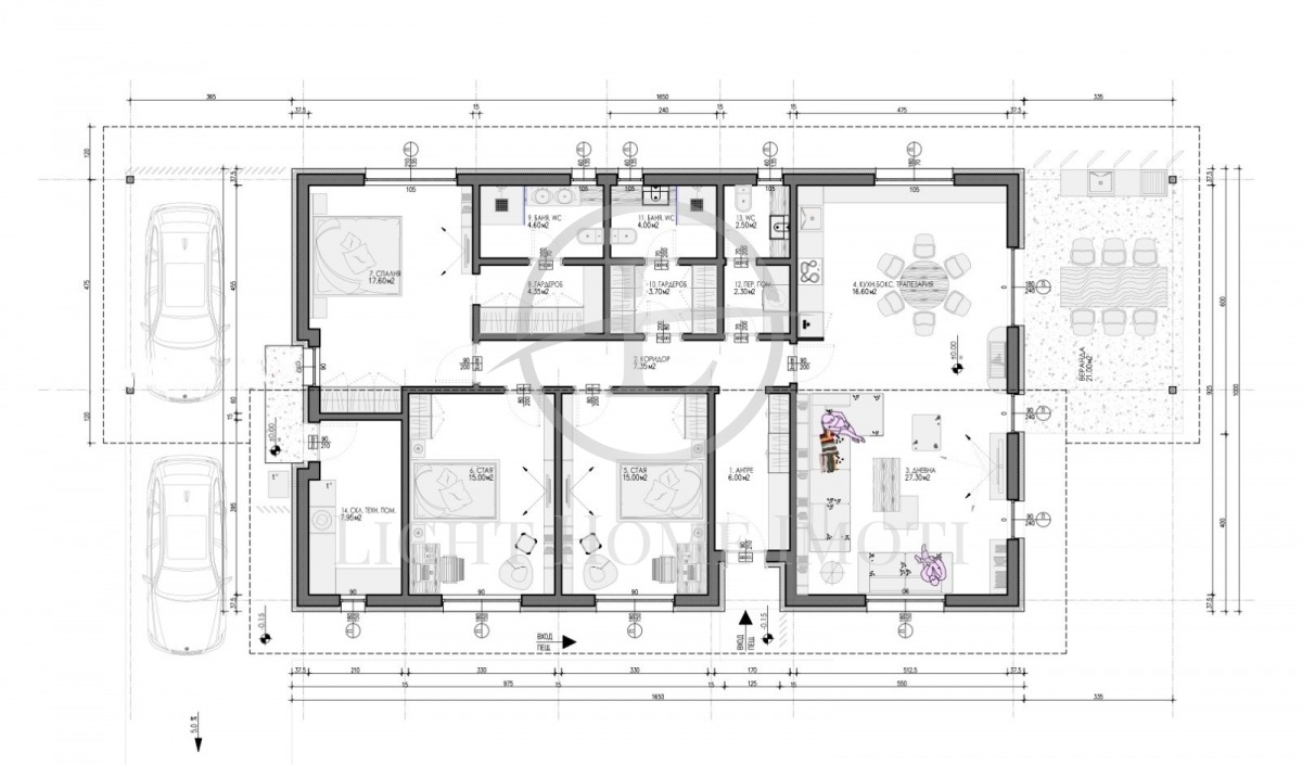
-Площ- РЗП 222кв.м. и двор 500кв.м.
-Разпределение- Просторна всекидневна с кухненска част (44кв.м.) ТРИ ГОЛЕМИ непреходни спални, две гардеробни, ТРИ САНИТАРНИ ПОМЕЩЕНИЯ, техническо помещение, перално помещение и голяма панорамна веранда (21кв.м.)
-Вид строителство- тухла 2025г.
Къщата ще се издава на степен на завършеност шпакловка и замазка, ВиК до тапа и ЕЛ инсталация до ключ. Това Ви дава чудесната възможност да я обзаведете по Ваш собствен вкус и желание.
Локация: Намира се на много тиха локация с много чист въздух и панорамни гледки.
За повече информация и организиране на огледи, моля, свържете се с нас на посочения номер, като ще Ви е необходим следният референтен номер: 1404
Лайт Хоум имоти е доверен партньор на най-големите банкови институции в страната и съдейства за преференциални условия при нужда от кредитиране. Ще получите юридическо съдействие през целия процес на сделката, както и съдействие при подготовка, подаване и получаване на всички необходими документи за сделката.
Виж всички обяви в lighthomeimoti.bazar.bg или тук







