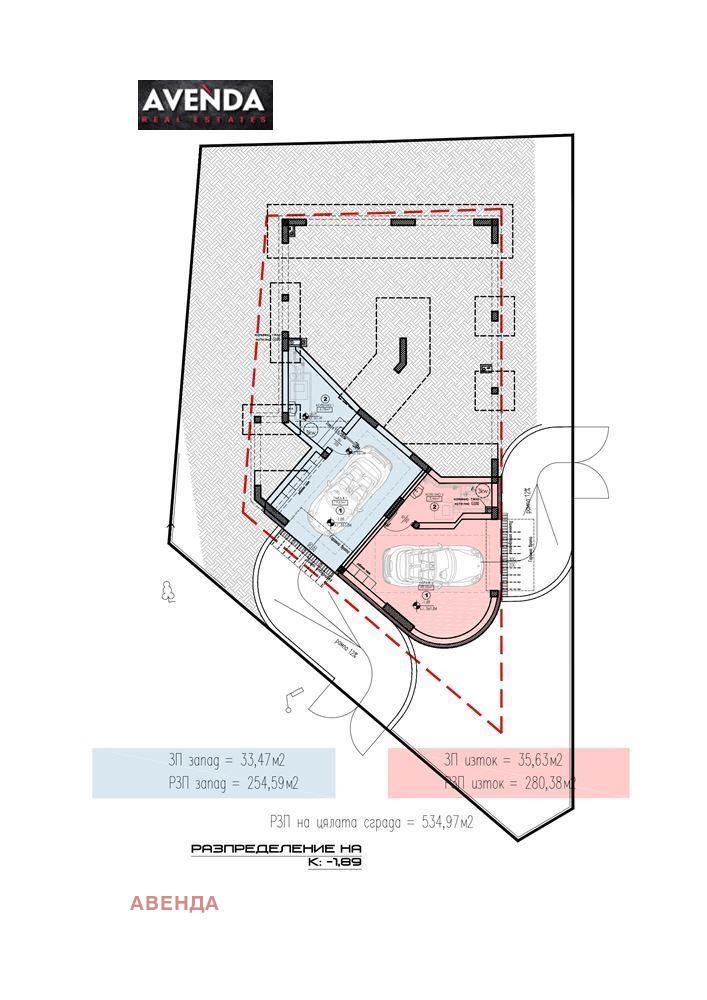
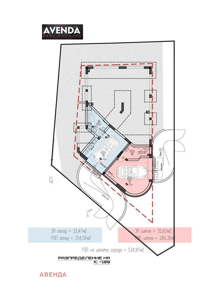
Къща Изток е с разгърната застроена площ от 280 кв.м. и двор от 123 кв.м. с изложение юг/изток/север, със следното разпределение на 4 нива, както следва:
Сутерен: подземно ниво с гараж, склад и котелно със застроена площ 35,6 кв.м.
Етаж 1 - партер: входно антре, кухненска зона 9 кв.м., дневна с трапезария и стълбище към втория етаж (емпоре) от 30кв.м., спалня 14 кв.м. и баня с тоалетна. Обща застроена площ на партерно ниво 83 кв.м.
Етаж 2: на второ жилищно ниво има две спални., всяка с излаз на отделен балкон и две бани с тоалетна. Обща застроена площ на втори етаж 100 кв.м.
Етаж 3: спалня - 18 кв.м. с прекрасна тераса от 27 кв.м. с панорамна гледка към парк Врана , Стара планина на север и Лозенската планина на изток. Обща застроен площ на втори етаж кв.м. 62 кв.м.
Двор: озеленено простанство от 123 кв.м.
Накратко, къща Изток разполага с дневна,трапезария, отделна кухненска зона, 4 спални, 3 банис тоалетна, панорамна тераса и дворно място.
Отоплението е предвидено с опция за инсталиране на термопомпа и/или котел на пелети или газ. Прозорците са френски, 6 камерна ПВЦ дограма K?mmerling троен стъклопакет. Фасадите са изпълнени с 12 сантиметрова топлоизолация с покритие от минерална мазилка и италиански гранитогрес. Изолацията на покрива е изпълнена с 25 см. каменна вата.
Срок на завършване: Акт 16, до края на септември!
За сградата: от затворен тип, с модерна концепция и акцент върху детайла, и използваните материали. Съвременни архитектурни и строителни решения, без компромис в изпълнението. На площ от близо 800 кв.м са разположени две еднофамилни къщи, ръзгърнати на 4 етажа. Сградата разполага със собствен попивен сондаж, който отвежда излишната отработена вода от пречиствателните станции на всяка от къщите. Изградена поливна система за зелените площи. Локацията е избрана така, че да бъде леко встрани от шума на централните улици и в същото време да е близо до всичко необходимо. Итер Експо център е на 8 мин. с автомобил, Орлов мост е на 15 мин. Обособени външни паркоместа на границата на имота. Къщите са заобиколени от зеленина и ниско строителство, с прекрасни гледки на юг към Лозенската планина и Витоша, на север към парк Врана и Стара планина.
За Врана-Лозен-Триъгълника: местността е разположена между Южната дъга и бул. Цариградско шосе и е застроена предимно със семейни къщи, като близкото разстоянието от урбанизирана София, го правят предпочитано място за живеене. Основно предимство е, че живееш на спокойно място, което ти дава локацията, но имаш близостта на големия град. Само на 15 мин. от центъра на София с автомобил. Изградената инфраструктура осигурява удобен достъп до Южната скоростна тангента и бул. Цариградско шосе , оттам към всички магистрали. Спирка на градския транспорт в близост, с автобусна линия 5, която има директна връзката с метространция Интер експо център . Местоположението дава прекрасна възможност за хора търсещи тишина и спокойствие, на една ръка разстояние от големия град.
Безплатна консултация и съдействие при усвояване на ипотечен кредит при преференциални условия. За огледи и въпроси се свържете
Виж всички обяви в avenda.bazar.bg или тук
        
       
         
         
         
         
         
         
         
         
         
         
         
             
             
             
             
             
             
             
             
             
             
            





