Модерна новопостроена къща с дизайнерски дух в близост до центъра на Труд. Къщата може да бъде завършена като самостоятелна еднофамилна къща или две къщи близнак.
Представяме ви стилен и функционален дом, създаден с внимание към всеки детайл идеален за млади семейства, двойки или хора, работещи онлайн, които търсят комфорт, пространство и уединение, без да се лишават от близост до града.
📍 Локация:
Къщата е разположена в спокоен и тих район в село Труд. Бърза връзка с град Пловдив, с удобен достъп до Магистрала Тракия и Карловско шосе.
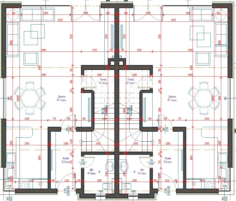
🏠 Площ и разпределение:
Обща площ (РЗП): 311 кв.м
Двор: 499 кв.м с ограда, с лице на асфалтов път
Разпределение:
🔸 Първи етаж
Просторна дневна с трапезария и отворена кухня 94 кв.м
2 бр. бани с тоалетни
2 бр. килер/склад
Входно антре
Френски прозорци към вътрешния двор
🔸 Втори етаж
2 бр. Родителски спални всяка със самостоятелна баня с тоалетна.
Още 4 спални, подходящи за деца, гости или кабинет
2 бр. бани с тоалетна на етажа
🧱 Строителство и енергийна ефективност:
Степен на завършеност - Акт 14 от 2025 г.
Пасивен стандарт изключително ниски разходи за енергия
Конструкция монолитна със стоманобетонни колони, шайби и греди.
OSB плоскости, които са закупени и са включени в цената на къщата
Покрив - двускатен
Има две партиди за ток и вода, които са платени.
🚗 Паркиране:
2 паркоместа в имота
Виж всички обяви в imoti_market.bazar.bg или тук




