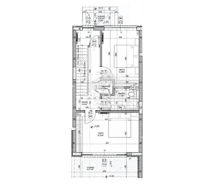
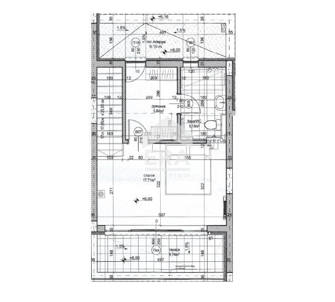
Първият етаж се състои от просторна дневна с кухненски бокс и трапезария (33,64 кв.м), коридор (5,74 кв.м), склад (2,88 кв.м), дрешник (1,5 кв.м), тоалетна (1,62 кв.м) и тераса на терен (16,6 кв.м). Вътрешно стълбище води до втория етаж, който включва две големи спални (16,22 кв.м и 12,88 кв.м), коридор (6,01 кв.м), баня с тоалетна (4,79 кв.м), перално помещение (0,98 кв.м) и две тераси (9,21 кв.м и 3,94 кв.м). Вътрешно стълбище води до третия етаж, където има голяма спалня (17,71 кв.м) с излаз на тераса (9,74 кв.м), баня с тоалетна (5,18 кв.м) и гардеробна (5,84 кв.м). Изложението е юг/север.
Къщата се продава завършена до степен БДС, с поставена ПВЦ дограма. Има възможност за завършване до ключ, монтаж на термопомпа и слънчеви панели, при желание от страна на клиента. Налични са електричество, вода и канализация в имота.
Комплексът от редови къщи е на етап на строителство издаден Акт 14. Очаква се да бъде въведен в експлоатация до края на 2025 г. Към предлаганата триетажна къща има две открити паркоместа, включени в продажната цена, както и 262,21 кв.м идеални части от поземления имот. Предлагат се и къщи с 4 спални. Комплексът е ограден, с контролиран достъп.
Оферта 0220638
Виж всички обяви в varnatrend.bazar.bg или тук



