Translations in other languages:
All real estate ads published on
imot.bg
have been translated into English and published on the partner site
Continue
Получихте нова обява по филтър
Промяна на цена на наблюдавана обява
стара цена
нова цена
Сайт за имоти
№1
ДОБАВИ ОБЯВА
Редакция на обява
Вход
|
Нова Регистрация
Начало
Публикуване
Търсене
Нови сгради
Агенции
Новини
Кредити
+ Още...
Моят имот
Избор на рубрика
|
Продава
|
Дава под наем
|
Купува
|
Търси да наеме
|
Заменя
|
Съквартиранти
Колко струва моят имот?
НОВО ТЪРСЕНЕ
|
КОРЕКЦИЯ НА ТЪРСЕНЕТО
|
РЕЗУЛТАТИ ОТ ТЪРСЕНЕТО
Увеличи
1
/
1
При запитване, Продава КЪЩА, град София, Център
Площ: 373 кв.м, Агенция, Газ: НЕ, ТEЦ: НЕ, Тухла, ,
Продава КЪЩА
град София, Център
Виж карта
При запитване
Коригирана в 3:10 на 21 септември, 2025 год.
Обявата е посетена
1873
пъти.
Площ:
373 m
2
Двор:
--- m
2
Газ:
НЕ
ТEЦ:
НЕ
Строителство:
Тухла,
Напиши Бележка
Дай оценка
Съобщи за нередност
07:42 ч., 05.10.2025
Изтрий
Редактирай
Отказ
Запиши
Оценка: от 10
07:42 ч., 05.10.2025
(Ще получите SMS с ключ за верификация)
Съгласявам се с
общите условия
и
политики за защита на личните данни
Изпрати
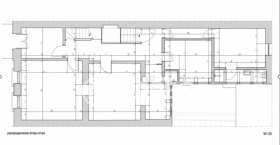
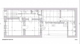
Описание на имота:
Представяме ви прекрасна къща, паметник на културата, дело на знаменития архитект Вацлав Прошек.
Къщата е построена през 1896 г. за братята търговци Михайлови.
Първото ниво състои от светъл полу-сутерен от две помещения (30 кв.м), свързани към вътрешен двор (20 кв.м), изба с тоалетна (10 кв.м), мазе (20 кв.м),
Първи жилищен етаж (90 кв.м.) се състои от две красиви големи стаи, две по-малки свързани с уютния вътрешен двор, две бани и тоалетни. Дворът е облагороден с дървена пейка, дюшеме и елегантен стъклен навес с черно желязо по поръчка.
Втори етаж (123.42) се състои от 2 големи стаи, 2 малки стаи и малък слънчев кабинет с тераса, две тоалетни и възможност за баня. Аристократичен коридор, открива гледка към входа на къщата от високо.
Последното ниво представлява голямо открито подпокривно пространство с прозорци тип Velux и напълно ремонтиран покрив 90 кв.м.м
Къщата има възможност за надстрояване до 2 етажа, тъй като е паметник на културата само като фасада. Предстои рестав
рация на фасадата, задна част на къщата е почти изцяло реновирана със сменена дограма
КвАРТал е арт кварталът на София, разположен в сърцето на стария град между булевардите Дондуков , Мария Луиза , Сливница , Васил
Левски , част от аристократичния район Оборище.
Последните пет години кварталът се развива изключително бързо, ставайки средище на много арт проекти, галерии, ателиета, работилници, кулинарни места и е домакин на едно от най-интересните събития за София- КвАРТал.
Районът е много спокоен и плановете на общината е да се развие като пешеходна и туристическа дестинация на София.
Аристократична сграда, паметник на културата (по отношение на фасадата), построена през 1896 година, пруски свод, изцяло ремонтирана като е запазен автентичния й дух и детайли. Финално трябва да се реставрира фасадата.
Аристократична сграда, запазила духа на Стара София;
Изцяло ремонтирана и реставрирана;
Изключителен инвестиционен имот, поради възможността за надстрояване.
Обади се сега и цитирай този код 648462
Виж по-малко
...
Виж повече
Виж всички обяви на агенцията в
address.bazar.bg
или
тук
.
Особености:
• Тухла
• Обзаведен
За контакти:
088 21 21 450
Брокер: Клиентски център АДРЕС Кантора Център Адрес
Телефон: 088 21 21 450
Още оферти от брокера:
продава
|
дава под наем
|
купува
|
наема
Изпрати запитване:
Вашето съобщение (до 1000 символа
):
Вашето име:
Вашия мобилен телефон:
Вашия E-mail:
Изпрати Е-mail
Съгласявам се с
общите условия
и
политики за защита на личните данни
Агенция: АДРЕС НЕДВИЖИМИ ИМОТИ
http://address.imot.bg
Още оферти:
продава
|
дава под наем
|
купува
|
наема
Адрес: област София, гр. София, пл. Света Неделя No 4, ет. 6
Тел.: 088 21 21 450
http://www.address.bg
Продава КЪЩА
град София, Център
Обява: 1j175092159664813
При запитване
088 21 21 450
Изпрати E-mail на продавача
ЗАПАЗИ ОБЯВАТА
Сподели:
АДРЕС НЕДВИЖИМИ ИМОТИ
област София, гр. София, пл. Света Неделя No 4, ет. 6
В imot.bg
от 2004 г.
Виж всички имоти на агенцията
Местоположение:
град София, Център
Допълнителни данни за имотите в района и сравнение с други райони:
Търсене в АРХИВ 2013 - 2025 г.
Изберете вида на имота и района
Вид на имота:
Област / Град:
Район:
1
1-СТАЕН
2-СТАЕН
3-СТАЕН
4-СТАЕН
МНОГОСТАЕН
МЕЗОНЕТ
ОФИС
АТЕЛИЕ, ТАВАН
ЕТАЖ ОТ КЪЩА
КЪЩА
ВИЛА
МАГАЗИН
ЗАВЕДЕНИЕ
СКЛАД
ГАРАЖ, ПАРКОМЯСТО
ПРОМ. ПОМЕЩЕНИЕ
ХОТЕЛ
ПАРЦЕЛ
ЗЕМЕДЕЛСКА ЗЕМЯ
БИЗНЕС ИМОТ
град Благоевград
град Бургас
град Варна
град Велико Търново
град Видин
град Враца
град Габрово
град Добрич
град Кърджали
град Кюстендил
град Ловеч
град Монтана
град Пазарджик
град Перник
град Плевен
град Пловдив
град Разград
град Русе
град Силистра
град Сливен
град Смолян
град София
град Стара Загора
град Търговище
град Хасково
град Шумен
град Ямбол
7-ми 11-ти километър
Абдовица
Банишора
Белите брези
Бенковски
Борово
Ботунец
Ботунец 2
Бояна
Бъкстон
Витоша
Военна рампа
Враждебна
Връбница 1
Връбница 2
Гевгелийски
Гео Милев
Горна баня
Горубляне
Гоце Делчев
Градина
Дианабад
Димитър Миленков
Докторски паметник
Драгалевци
Дружба 1
Дружба 2
Дървеница
Експериментален
Западен парк
Захарна фабрика
Зона Б-18
Зона Б-19
Зона Б-5
Зона Б-5-3
Иван Вазов
Изгрев
Изток
Илинден
Илиянци
Карпузица
Княжево
Красна поляна 1
Красна поляна 2
Красна поляна 3
Красно село
Кремиковци
Кръстова вада
Лагера
Левски
Левски В
Левски Г
Летище София
Лозенец
Люлин - център
Люлин 1
Люлин 10
Люлин 2
Люлин 3
Люлин 4
Люлин 5
Люлин 6
Люлин 7
Люлин 8
Люлин 9
Малашевци
Малинова долина
Манастирски ливади
Медицинска академия
Младост 1
Младост 1А
Младост 2
Младост 3
Младост 4
Модерно предградие
Мусагеница
Надежда 1
Надежда 2
Надежда 3
Надежда 4
НПЗ Изток
НПЗ Искър
НПЗ Средец
НПЗ Хаджи Димитър
Обеля
Обеля 1
Обеля 2
Оборище
Овча купел
Овча купел 1
Овча купел 2
Орландовци
Павлово
ПЗ Илиянци
ПЗ Хладилника
Подуяне
Полигона
Разсадника
Редута
Република
Република 2
Света Троица
Свобода
Сердика
Сеславци
Симеоново
Славия
Слатина
СПЗ Модерно предградие
СПЗ Слатина
Стрелбище
Студентски град
Сухата река
Суходол
Толстой
Требич
Триъгълника
Факултета
Филиповци
Фондови жилища
Хаджи Димитър
Хиподрума
Хладилника
Христо Ботев
Център
Челопечене
Яворов
в.з.Американски колеж
в.з.Беловодски път
в.з.Бояна
в.з.Бункера
в.з.Врана - Герман
в.з.Врана - Лозен
в.з.Горна баня
в.з.Килиите
в.з.Киноцентъра
в.з.Киноцентъра 3 част
в.з.Люлин
в.з.Малинова долина
в.з.Малинова долина - Герена
в.з.Симеоново - Драгалевци
в.з.Черния кос
гр. Банкя
гр. Бухово
гр. Нови Искър
ж.гр.Зоопарк
ж.гр.Южен парк
м-т Барите
м-т Батареята
м-т Гърдова глава
м-т Детски град
м-т Камбаните
м-т Киноцентъра
м-т Мала кория
м-т Подлозище
м-т Щъркелово гнездо
м-т Юбилейна гора
м-т яз. Искър
м-т Яладжа
с. Балша
с. Бистрица
с. Бусманци
с. Владая
с. Войнеговци
с. Волуяк
с. Герман
с. Горни Богров
с. Доброславци
с. Долни Богров
с. Долни Пасарел
с. Железница
с. Желява
с. Житен
с. Иваняне
с. Казичене
с. Клисура
с. Кокаляне
с. Кривина
с. Кубратово
с. Кътина
с. Лозен
с. Локорско
с. Мало Бучино
с. Мировяне
с. Мрамор
с. Мърчаево
с. Негован
с. Панчарево
с. Плана
с. Подгумер
с. Световрачене
с. Чепинци
с. Яна
2
1-СТАЕН
2-СТАЕН
3-СТАЕН
4-СТАЕН
МНОГОСТАЕН
МЕЗОНЕТ
ОФИС
АТЕЛИЕ, ТАВАН
ЕТАЖ ОТ КЪЩА
КЪЩА
ВИЛА
МАГАЗИН
ЗАВЕДЕНИЕ
СКЛАД
ГАРАЖ, ПАРКОМЯСТО
ПРОМ. ПОМЕЩЕНИЕ
ХОТЕЛ
ПАРЦЕЛ
ЗЕМЕДЕЛСКА ЗЕМЯ
БИЗНЕС ИМОТ
град Благоевград
град Бургас
град Варна
град Велико Търново
град Видин
град Враца
град Габрово
град Добрич
град Кърджали
град Кюстендил
град Ловеч
град Монтана
град Пазарджик
град Перник
град Плевен
град Пловдив
град Разград
град Русе
град Силистра
град Сливен
град Смолян
град София
град Стара Загора
град Търговище
град Хасково
град Шумен
град Ямбол
7-ми 11-ти километър
Абдовица
Банишора
Белите брези
Бенковски
Борово
Ботунец
Ботунец 2
Бояна
Бъкстон
Витоша
Военна рампа
Враждебна
Връбница 1
Връбница 2
Гевгелийски
Гео Милев
Горна баня
Горубляне
Гоце Делчев
Градина
Дианабад
Димитър Миленков
Докторски паметник
Драгалевци
Дружба 1
Дружба 2
Дървеница
Експериментален
Западен парк
Захарна фабрика
Зона Б-18
Зона Б-19
Зона Б-5
Зона Б-5-3
Иван Вазов
Изгрев
Изток
Илинден
Илиянци
Карпузица
Княжево
Красна поляна 1
Красна поляна 2
Красна поляна 3
Красно село
Кремиковци
Кръстова вада
Лагера
Левски
Левски В
Левски Г
Летище София
Лозенец
Люлин - център
Люлин 1
Люлин 10
Люлин 2
Люлин 3
Люлин 4
Люлин 5
Люлин 6
Люлин 7
Люлин 8
Люлин 9
Малашевци
Малинова долина
Манастирски ливади
Медицинска академия
Младост 1
Младост 1А
Младост 2
Младост 3
Младост 4
Модерно предградие
Мусагеница
Надежда 1
Надежда 2
Надежда 3
Надежда 4
НПЗ Изток
НПЗ Искър
НПЗ Средец
НПЗ Хаджи Димитър
Обеля
Обеля 1
Обеля 2
Оборище
Овча купел
Овча купел 1
Овча купел 2
Орландовци
Павлово
ПЗ Илиянци
ПЗ Хладилника
Подуяне
Полигона
Разсадника
Редута
Република
Република 2
Света Троица
Свобода
Сердика
Сеславци
Симеоново
Славия
Слатина
СПЗ Модерно предградие
СПЗ Слатина
Стрелбище
Студентски град
Сухата река
Суходол
Толстой
Требич
Триъгълника
Факултета
Филиповци
Фондови жилища
Хаджи Димитър
Хиподрума
Хладилника
Христо Ботев
Център
Челопечене
Яворов
в.з.Американски колеж
в.з.Беловодски път
в.з.Бояна
в.з.Бункера
в.з.Врана - Герман
в.з.Врана - Лозен
в.з.Горна баня
в.з.Килиите
в.з.Киноцентъра
в.з.Киноцентъра 3 част
в.з.Люлин
в.з.Малинова долина
в.з.Малинова долина - Герена
в.з.Симеоново - Драгалевци
в.з.Черния кос
гр. Банкя
гр. Бухово
гр. Нови Искър
ж.гр.Зоопарк
ж.гр.Южен парк
м-т Барите
м-т Батареята
м-т Гърдова глава
м-т Детски град
м-т Камбаните
м-т Киноцентъра
м-т Мала кория
м-т Подлозище
м-т Щъркелово гнездо
м-т Юбилейна гора
м-т яз. Искър
м-т Яладжа
с. Балша
с. Бистрица
с. Бусманци
с. Владая
с. Войнеговци
с. Волуяк
с. Герман
с. Горни Богров
с. Доброславци
с. Долни Богров
с. Долни Пасарел
с. Железница
с. Желява
с. Житен
с. Иваняне
с. Казичене
с. Клисура
с. Кокаляне
с. Кривина
с. Кубратово
с. Кътина
с. Лозен
с. Локорско
с. Мало Бучино
с. Мировяне
с. Мрамор
с. Мърчаево
с. Негован
с. Панчарево
с. Плана
с. Подгумер
с. Световрачене
с. Чепинци
с. Яна
3
1-СТАЕН
2-СТАЕН
3-СТАЕН
4-СТАЕН
МНОГОСТАЕН
МЕЗОНЕТ
ОФИС
АТЕЛИЕ, ТАВАН
ЕТАЖ ОТ КЪЩА
КЪЩА
ВИЛА
МАГАЗИН
ЗАВЕДЕНИЕ
СКЛАД
ГАРАЖ, ПАРКОМЯСТО
ПРОМ. ПОМЕЩЕНИЕ
ХОТЕЛ
ПАРЦЕЛ
ЗЕМЕДЕЛСКА ЗЕМЯ
БИЗНЕС ИМОТ
град Благоевград
град Бургас
град Варна
град Велико Търново
град Видин
град Враца
град Габрово
град Добрич
град Кърджали
град Кюстендил
град Ловеч
град Монтана
град Пазарджик
град Перник
град Плевен
град Пловдив
град Разград
град Русе
град Силистра
град Сливен
град Смолян
град София
град Стара Загора
град Търговище
град Хасково
град Шумен
град Ямбол
7-ми 11-ти километър
Абдовица
Банишора
Белите брези
Бенковски
Борово
Ботунец
Ботунец 2
Бояна
Бъкстон
Витоша
Военна рампа
Враждебна
Връбница 1
Връбница 2
Гевгелийски
Гео Милев
Горна баня
Горубляне
Гоце Делчев
Градина
Дианабад
Димитър Миленков
Докторски паметник
Драгалевци
Дружба 1
Дружба 2
Дървеница
Експериментален
Западен парк
Захарна фабрика
Зона Б-18
Зона Б-19
Зона Б-5
Зона Б-5-3
Иван Вазов
Изгрев
Изток
Илинден
Илиянци
Карпузица
Княжево
Красна поляна 1
Красна поляна 2
Красна поляна 3
Красно село
Кремиковци
Кръстова вада
Лагера
Левски
Левски В
Левски Г
Летище София
Лозенец
Люлин - център
Люлин 1
Люлин 10
Люлин 2
Люлин 3
Люлин 4
Люлин 5
Люлин 6
Люлин 7
Люлин 8
Люлин 9
Малашевци
Малинова долина
Манастирски ливади
Медицинска академия
Младост 1
Младост 1А
Младост 2
Младост 3
Младост 4
Модерно предградие
Мусагеница
Надежда 1
Надежда 2
Надежда 3
Надежда 4
НПЗ Изток
НПЗ Искър
НПЗ Средец
НПЗ Хаджи Димитър
Обеля
Обеля 1
Обеля 2
Оборище
Овча купел
Овча купел 1
Овча купел 2
Орландовци
Павлово
ПЗ Илиянци
ПЗ Хладилника
Подуяне
Полигона
Разсадника
Редута
Република
Република 2
Света Троица
Свобода
Сердика
Сеславци
Симеоново
Славия
Слатина
СПЗ Модерно предградие
СПЗ Слатина
Стрелбище
Студентски град
Сухата река
Суходол
Толстой
Требич
Триъгълника
Факултета
Филиповци
Фондови жилища
Хаджи Димитър
Хиподрума
Хладилника
Христо Ботев
Център
Челопечене
Яворов
в.з.Американски колеж
в.з.Беловодски път
в.з.Бояна
в.з.Бункера
в.з.Врана - Герман
в.з.Врана - Лозен
в.з.Горна баня
в.з.Килиите
в.з.Киноцентъра
в.з.Киноцентъра 3 част
в.з.Люлин
в.з.Малинова долина
в.з.Малинова долина - Герена
в.з.Симеоново - Драгалевци
в.з.Черния кос
гр. Банкя
гр. Бухово
гр. Нови Искър
ж.гр.Зоопарк
ж.гр.Южен парк
м-т Барите
м-т Батареята
м-т Гърдова глава
м-т Детски град
м-т Камбаните
м-т Киноцентъра
м-т Мала кория
м-т Подлозище
м-т Щъркелово гнездо
м-т Юбилейна гора
м-т яз. Искър
м-т Яладжа
с. Балша
с. Бистрица
с. Бусманци
с. Владая
с. Войнеговци
с. Волуяк
с. Герман
с. Горни Богров
с. Доброславци
с. Долни Богров
с. Долни Пасарел
с. Железница
с. Желява
с. Житен
с. Иваняне
с. Казичене
с. Клисура
с. Кокаляне
с. Кривина
с. Кубратово
с. Кътина
с. Лозен
с. Локорско
с. Мало Бучино
с. Мировяне
с. Мрамор
с. Мърчаево
с. Негован
с. Панчарево
с. Плана
с. Подгумер
с. Световрачене
с. Чепинци
с. Яна
4
1-СТАЕН
2-СТАЕН
3-СТАЕН
4-СТАЕН
МНОГОСТАЕН
МЕЗОНЕТ
ОФИС
АТЕЛИЕ, ТАВАН
ЕТАЖ ОТ КЪЩА
КЪЩА
ВИЛА
МАГАЗИН
ЗАВЕДЕНИЕ
СКЛАД
ГАРАЖ, ПАРКОМЯСТО
ПРОМ. ПОМЕЩЕНИЕ
ХОТЕЛ
ПАРЦЕЛ
ЗЕМЕДЕЛСКА ЗЕМЯ
БИЗНЕС ИМОТ
град Благоевград
град Бургас
град Варна
град Велико Търново
град Видин
град Враца
град Габрово
град Добрич
град Кърджали
град Кюстендил
град Ловеч
град Монтана
град Пазарджик
град Перник
град Плевен
град Пловдив
град Разград
град Русе
град Силистра
град Сливен
град Смолян
град София
град Стара Загора
град Търговище
град Хасково
град Шумен
град Ямбол
7-ми 11-ти километър
Абдовица
Банишора
Белите брези
Бенковски
Борово
Ботунец
Ботунец 2
Бояна
Бъкстон
Витоша
Военна рампа
Враждебна
Връбница 1
Връбница 2
Гевгелийски
Гео Милев
Горна баня
Горубляне
Гоце Делчев
Градина
Дианабад
Димитър Миленков
Докторски паметник
Драгалевци
Дружба 1
Дружба 2
Дървеница
Експериментален
Западен парк
Захарна фабрика
Зона Б-18
Зона Б-19
Зона Б-5
Зона Б-5-3
Иван Вазов
Изгрев
Изток
Илинден
Илиянци
Карпузица
Княжево
Красна поляна 1
Красна поляна 2
Красна поляна 3
Красно село
Кремиковци
Кръстова вада
Лагера
Левски
Левски В
Левски Г
Летище София
Лозенец
Люлин - център
Люлин 1
Люлин 10
Люлин 2
Люлин 3
Люлин 4
Люлин 5
Люлин 6
Люлин 7
Люлин 8
Люлин 9
Малашевци
Малинова долина
Манастирски ливади
Медицинска академия
Младост 1
Младост 1А
Младост 2
Младост 3
Младост 4
Модерно предградие
Мусагеница
Надежда 1
Надежда 2
Надежда 3
Надежда 4
НПЗ Изток
НПЗ Искър
НПЗ Средец
НПЗ Хаджи Димитър
Обеля
Обеля 1
Обеля 2
Оборище
Овча купел
Овча купел 1
Овча купел 2
Орландовци
Павлово
ПЗ Илиянци
ПЗ Хладилника
Подуяне
Полигона
Разсадника
Редута
Република
Република 2
Света Троица
Свобода
Сердика
Сеславци
Симеоново
Славия
Слатина
СПЗ Модерно предградие
СПЗ Слатина
Стрелбище
Студентски град
Сухата река
Суходол
Толстой
Требич
Триъгълника
Факултета
Филиповци
Фондови жилища
Хаджи Димитър
Хиподрума
Хладилника
Христо Ботев
Център
Челопечене
Яворов
в.з.Американски колеж
в.з.Беловодски път
в.з.Бояна
в.з.Бункера
в.з.Врана - Герман
в.з.Врана - Лозен
в.з.Горна баня
в.з.Килиите
в.з.Киноцентъра
в.з.Киноцентъра 3 част
в.з.Люлин
в.з.Малинова долина
в.з.Малинова долина - Герена
в.з.Симеоново - Драгалевци
в.з.Черния кос
гр. Банкя
гр. Бухово
гр. Нови Искър
ж.гр.Зоопарк
ж.гр.Южен парк
м-т Барите
м-т Батареята
м-т Гърдова глава
м-т Детски град
м-т Камбаните
м-т Киноцентъра
м-т Мала кория
м-т Подлозище
м-т Щъркелово гнездо
м-т Юбилейна гора
м-т яз. Искър
м-т Яладжа
с. Балша
с. Бистрица
с. Бусманци
с. Владая
с. Войнеговци
с. Волуяк
с. Герман
с. Горни Богров
с. Доброславци
с. Долни Богров
с. Долни Пасарел
с. Железница
с. Желява
с. Житен
с. Иваняне
с. Казичене
с. Клисура
с. Кокаляне
с. Кривина
с. Кубратово
с. Кътина
с. Лозен
с. Локорско
с. Мало Бучино
с. Мировяне
с. Мрамор
с. Мърчаево
с. Негован
с. Панчарево
с. Плана
с. Подгумер
с. Световрачене
с. Чепинци
с. Яна
Откажи
OK
Цена на имота
Цена на кв.м.
Наем на имота
Цена/Год.наем
Брой оферти
Брой търсения
Разглеждания
1 месец
1 година
3 години
21 години
и 9 месеца
Добави/редактирай
вид имот и район
*Средните цени са определени чрез
медиана стойност
.
Виж още
имоти от София
или
още Къщи в София
Още обяви в imot.bg от АДРЕС НЕДВИЖИМИ ИМОТИ
Виж всички
Продава КЪЩА
336 600 €
658 332.38 лв.
(258 кв.м)
град София с. Мрамор
Продава КЪЩА
216 000 €
422 459.28 лв.
(322 кв.м)
град София с. Мало Бучино
Продава КЪЩА
188 000 €
367 696.04 лв.
(107 кв.м)
град София гр. Банкя
Продава КЪЩА
880 000 €
1 721 130.40 лв.
(370 кв.м)
град София с. Панчарево
КОНТАКТИ
|
SMS КОДОВЕ
|
СТАТИСТИКА
|
ПОМОЩ
|
ОБЩИ УСЛОВИЯ
|
РЕКЛАМА
|
ТОП ОФЕРТА
|
Въпроси и предложения към imot.bg
Резон Медия
|
Имоти
|
Автомобили
|
Работа
|
Новини
|
Обяви
|
Преводи и легализация
2002-2025 ® Copyright imot.bg
Следвайте ни в: