Реф. Н. 521
L'Artista представя три самостоятелни еднофамилни къщи в с.Бистрица. Къщите ще бъдат завършени с вискокачествени материали и ще бъдат въведени в експоатация лятото на 2026г. Разпределението и описанието е както следва:
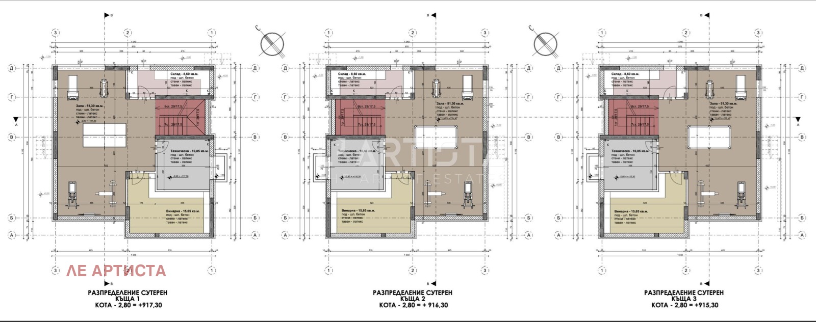
1. Сутерен - 106,90 кв.м.
a) Фитнес / зала за игри 51,30 кв.м.
b) Склад 8,60 кв.м.
c) Техническо помещение 10,85 кв.м.
d) Винарна 15,65 кв.м.
e) Стълбище
2. 1 етаж 102,40 кв.м.
a. Антре 3,70 кв.м.
b. Кухня 13,00 кв.м.
c. Трапезария 15,00 кв.м.
d. Дневна с камина 21,00 кв.м.
e. Перално 4,60 кв.м.
f. Тоалетна- 3,80 кв.м.
g. Гараж- 19,40 кв.м.
h. Стълбище
3. 2 етаж 121,00 кв.м.
a. Спалня 1 22,70 кв.м.
b. Баня с Тоалетна 10,00 кв.м.
c. Балкон 2,40 кв.м. двоен под Декинг
d. Спалня 2 20,50 кв.м.
e. Общ Балкон със Спалня 3 6,30 кв.м двоен под Декинг
f. Спалня3 21,60 кв.м
g. Баня с Тоалетна 6,90 кв.м
h. Коридор 6,80 кв.м
i. Стълбище
4. 3 етаж 90,20 кв.м.
a. Дневна с камина и кухненски бокс 26,30 кв.м.
b. Тоалетна 1,70 кв.м.
c. Стълбище
d. Тераса - двоен под Декинг - 46,00 кв.м.
5. Двор
a. Къща 1.
b. Двор с веранда+подход за коли 290,00 кв.м
c. Къща 2.
d. Двор с веранда+подход за коли 500,00 кв.м
e. Къща 3.
f. Двор с веранда+подход за коли и сондаж 485,00 кв.м
6. Фасади
a. Вентилируема фасада с изолация от каменна вата 10см и финишно покритие от Ламинам /травертин/; HPL /дървесен/
b. ТИС 10см. ЕПС с минерална мазилка
c. Алуминиева дограма с хебешибе - антрацит 7016
d. Декоративно фасадно осветление
e. Видео наблюдение
f. Водостоци с нагревателни реотани
7. Помещения
a. Отоплителна система с термопомпа на ток
b. Подово отопление
c. Конвектори за отопление и охлаждане
d. Камина
e. Шумоизолация
Къща 1 - 720 000 евро
Къща 2 - 750 000 евро
Къща 3 - продадена
Виж всички обяви в leartista.bazar.bg или тук
        
      
        
        
        
        
        
        
        
        
        
        
        
        
            
            
            
            
            
            
            
            
            
            
            
            






