Разпределение:
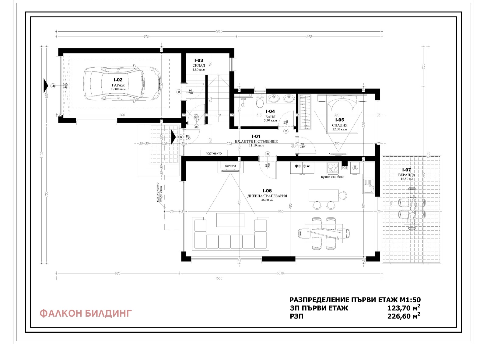
Първи етаж:
- Просторна дневна с трапезария и кухненски бокс (46.6 м²) с излаз към веранда (16.5 м²).
- Спалня/кабинет 12.5 м².
- Баня с тоалетна 5.3 м².
- Антре и стълбище с гардеробна ниша - 11.1
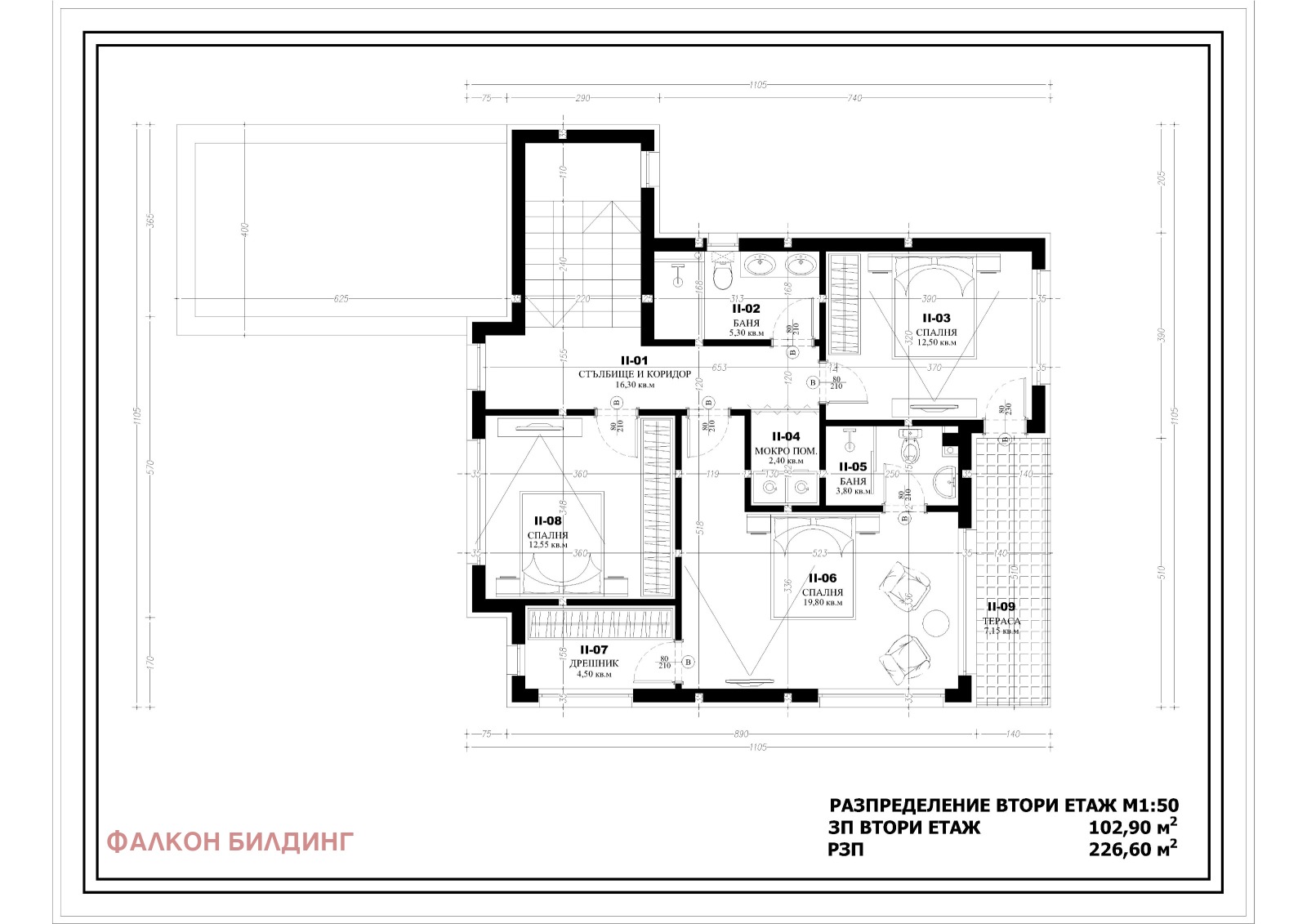
Втори етаж:
- Родителска спалня (19.8 м²).с гардеробна (4.5 м²).и собствена баня (3.8 м²).
- Две допълнителни спални по (12.5 м²)..
- Втора баня с тоалетна (5.3 м²)..
- Перално помещение (2.4 м²)..
- Просторен коридор (16.3 м²).
Предимства:
- Гараж (19.8 м²) със свързан склад (4.8 м²) с топла връзка към първият етаж на къщата.
- Инсталация за подово отопление
- Газова инсталация.
- Лична пречиствателна станция за мръсната вода
- Предвидена зарядна станция за електромобили
- 2 допълнителни външни паркоместа.
- Голям двор близо 600 м², подходящ за градина, басейн или детска зона.
- Модерен дизайн с прав покрив и изчистена геометрия.
- Район с ново строителство, асфалтирани улици и тиха среда.
- Възможност за промени по архитектурния проект преди старта на строителството.
Състояние:
Проектът е на етап очакване на разрешение за строеж което предоставя идеална възможност за персонализация според нуждите и желанията на бъдещия собственик. Предлага се опция за завършване до ключ .
Виж всички обяви в falcon.bazar.bg или тук




