Translations in other languages:
All real estate ads published on imot.bg have been translated into English and published on the partner site
Получихте нова обява по филтър





Промяна на цена на наблюдавана обява


стара цена
нова цена
imot.bg – обяви за продажби и наеми на имоти
Сайт за имоти №1
Translations in other languages:
All real estate ads published on imot.bg have been translated into English and published on the partner site
ДОБАВИ ОБЯВА Редакция на обява
Начало Публикуване Търсене Нови сгради Агенции Новини Кредити + Още... Моят имот
Продава КЪЩА
област София, с. Габра
125 000 €
244 478.75 лв.

(289 €, 565.23 лв./m2)
Не се начислява ДДС
История на цената
Публикувана в 13:23 на 28 април, 2025 год.
Обявата е посетена 1712 пъти.
Площ:
432 m2
Двор:
1906 m2
Етаж:
2
Строителство:
Тухла, Ще бъде въведен в експлоатация

Описание на имота:


РЕГУЛАЦИЯ! ОДОБРЕН ПРОЕКТ! РАЗРЕШЕНИЕ ЗА СТРОЕЖ! 30км от СОФИЯ!

Предлагаме Ви отличен парцел в регулация с площ от 1906 кв.м., разположен в живописното село Габра, само на 30 км от София. Имотът се намира в спокоен и изключително чист район, обграден от иглолистни гори и чист планински въздух идеално място за целогодишно живеене или уединен отдих.

Характеристики на парцела:

Площ: 1906 кв.м.

В регулация

Одобрен архитектурен проект за еднофамилна къща с РЗП 432 кв.м.

Издадено разрешение за строеж

Начин на застрояване: свободно

Плътност: до 60%

Кинт: 1.2

Озеленяване: мин. 40%

Кота корниз: до 10 м

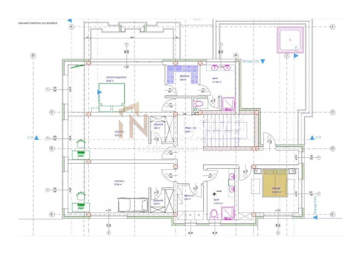
Проектираната къща е на два етажа, с модерна визия съчетаваща функционалност, стил и удобство:

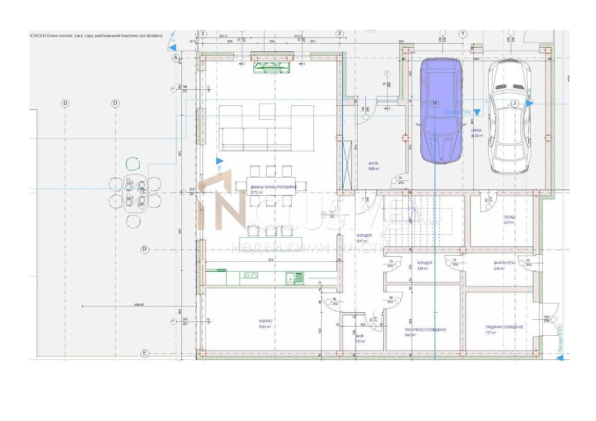
Първи етаж: входно антре, дневна с кухня и трапезария, кабинет, тоалетна, коридор, стълбище, както и други обслужващи помещения.

Втори етаж: спалня- родителска, дрешник и баня към нея, мокро помещение, баня, две спални с дрешници и една спалня за гости, коридор и стълбище.

Сградата е проектирана с енергиен клас B и включва модерни ОВК инсталации, осигуряващи отличен вътрешен комфорт през всички сезони:

Топлинен и студов център

Отоплителна инсталация

Охладителна инсталация

Вентилационни инсталации

Смукателна вентилация за бани и тоалетни

Не пропускайте възможността да създадете своя модерен дом сред природата с вече одобрен проект! За ваше удобство прилагаме визуализация на пеоекта и разпределение.

За допълнителна информация и огледи, обадете се сега и цитирайте този код: 11476
Виж всички обяви в inclusive1973.bazar.bg или тук
Особености
Тухла
За контакт:
0875363320
Агенция:
ИНКЛУЗИВ БЪЛГАРИЯ АД
0875363320
ИНКЛУЗИВ БЪЛГАРИЯ АД logo
В imot.bg от 2022 г.
inclusive1973.imot.bg
Адрес:
област София, гр. София, бул. 'Тодор Александров' 71, ет.5
http://www.inclusive.bg
ИЗПРАТИ ЗАПИТВАНЕ
ИЗПРАТИ ЗАПИТВАНЕТО

Продава КЪЩА
област София, с. Габра
Обява: 1j174583578164068

125 000 €
244 478.75 лв.
История на цената
(289 €, 565.23 лв./m2)

Не се начислява ДДС
ЗАПАЗИ ОБЯВАТА

Местоположение: област София, с. Габра

Виж още имоти от с. Габра или още Къщи в с. Габра, София
Още обяви в imot.bg
КОНТАКТИ | SMS КОДОВЕ | СТАТИСТИКА | ПОМОЩ | ОБЩИ УСЛОВИЯ | РЕКЛАМА | ТОП ОФЕРТА | Въпроси и предложения към imot.bg
Резон Медия | Имоти | Автомобили | Работа | Новини | Обяви | Преводи и легализация 2002-2025 ® Copyright imot.bg
© imot.bg ползва и препоръчва хостинг услугите на Bulinfo.net
Следвайте ни в: