Мястото е тихо и удобно за живеене и предлага удобна локация: на 5 км до град Поморие и на 15 минути с кола до центъра на Бургас. Има прекрасна гледка съчетаваща красота на природата и морския пейзаж.
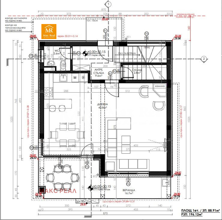
Къщата е с РЗП 196 кв.м със самостоятелен двор на площ 360 кв.м и разполага с функционално разпределение на два етажа:
На първия етаж са разположени входно антре и стълбище, просторна дневна с кухня и трапезария, баня с тоалетна, склад, веранда с изхода към двора;
На втория етаж са разположени три спални, две бани, дрешник и две тераси с прекрасен изглед към Бургас и морето.
Проектът се състои от 7 самостоятелни къщи, всяка със собствен двор и паркоместа. Къщите се предават на тапа, битов ток и вода.
Пред акт 14, акт 16 - до декември 2025 година.
За повече информация и организиране на оглед, моля свържете се с нас!
Виж всички обяви в maxreal.bazar.bg или тук







