Предлагаме Ви ДВУЕТАЖНА КЪЩА, в село Марково. Къщата е с РЗП 219 кв. и ДВОР 550 кв. Плюс 1/3 идеални части от самостоятелен път който обслужва три къщи които са ситуирани в три парцела.
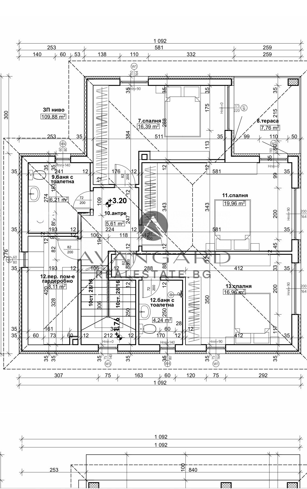
Етаж първи има следното разпределение: ВСЕКИДНЕВНА С КУХНЯ И ТРАПЕЗАРИЯ, ТОАЛЕТНА, СКЛАДОВО ПОМЕЩЕНИЕ, ВХОДНО АНТРЕ и ГОЛЯМА ВЕРАНДА С ГЛЕДКА КЪМ ГРАДА. Етаж втори има следното разпределение: ТРИ СПАЛНИ, ДВЕ БАНИ С ТОАЛЕТНИ, ПЕРАЛНО ПОМЕЩЕНИЕ С ГАРДЕРОБНА И ТЕРАСА. Къщата се строи с висок клас материали : тухли WIENERBERGER Porotherm 25, покрив ТОНДАХ с 30 години гаранция, висок клас PVC дограма. Къщата ще бъде завършена до края на 2025г и ще бъде издадена по БДС на шпакловка и замазка, което Ви позволява да я обзаведете изцяло по Ваш вкус!
Авангард Риъл Естейт предлага Висока сигурност при покупка на имот и цялостно съдействие до финализиране на сделката пред нотариус. За контакт: email: [email protected]; За още актуални оферти: www.avangardrealestate.bg
Виж всички обяви в avangardimoti.bazar.bg или тук







