Translations in other languages:
All real estate ads published on imot.bg have been translated into English and published on the partner site
Получихте нова обява по филтър





Промяна на цена на наблюдавана обява


стара цена
нова цена
imot.bg – обяви за продажби и наеми на имоти
Сайт за имоти №1
Начало Публикуване Търсене Нови сгради Агенции Новини Кредити + Още... Моят имот
Продава КЪЩА
град София, гр. Нови Искър
339 000 €
663 026.37 лв.

(1 614 €, 3 156.71 лв./m2)
Не се начислява ДДС
Коригирана в 3:10 на 29 септември, 2025 год.
Обявата е посетена 5039 пъти.
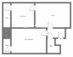
Площ:
210 m2
Двор:
811 m2
Газ:
НЕ
ТEЦ:
НЕ
Строителство:
Тухла, 1980 - 1989 г.

Описание на имота:

Кокетна, масивна тухлена къща от 1978г., свързана с водопровод и канализация. Състои се от приземен етаж, 2 етажа отгоре и тавански етаж. Първи и втори етаж се състоят от кухня с трапезария, всекидневна, спалня и баня с тоалетна. Всеки от етажите разполага с голяма тераса 7 кв.м. Таванският етаж е незавършен, но предлага различни интересни възможности за оформяне на пространството и разполага също с тераса 7 кв.м. Къщата е оборудвана със слънчеви панели за топла вода, които захранват 200л. бойлер, като има и още един по-малък бойлер само на ток. Двата бойлера се намират в приземния етаж. Къщата се отоплява посредством твърди горива и /или ток, като вторият етаж е оборудван с камина на пелети с водна риза и радиатори плюс климатик. Дворът е с обща площ от 800 кв.м., като далечната половина се използва като зеленчукова градина, за която има на разположение кладенец. В двора има и 2 паркоместа.
В началото на Нови Искър, близо до Околовръстен път.


Обади се сега и цитирай този код 6... Виж повече
Виж всички обяви на агенцията в address.bazar.bg или тук.
Особености:
• Тухла
• С гараж
     


За контакти:  088 21 21 450
Брокер: Клиентски център АДРЕС Кантора Южни райони

Телефон: 088 21 21 450

Още оферти от брокера: продава | дава под наем | купува | наема
Изпрати запитване:
 
Вашето съобщение (до 1000 символа):
Вашето име: Вашия мобилен телефон:

Вашия E-mail:  
Изпрати Е-mail
Съгласявам се с общите условия и политики за защита на личните данни
Агенция: АДРЕС НЕДВИЖИМИ ИМОТИ

http://address.imot.bg

Още оферти: продава | дава под наем | купува | наема

Адрес: област София, гр. София, пл. Света Неделя No 4, ет. 6
Тел.: 088 21 21 450
http://www.address.bg

Продава КЪЩА
град София, гр. Нови Искър
Обява: 1j173805722333724

339 000 €
663 026.37 лв.
(1 614 €, 3 156.71 лв./m2)

Не се начислява ДДС
 

Местоположение: град София, гр. Нови Искър

Допълнителни данни за имотите в района и сравнение с други райони: Търсене в АРХИВ 2013 - 2025 г.











Добави/редактирай
вид имот и район
*Средните цени са определени чрез медиана стойност.

Още обяви в imot.bg
КОНТАКТИ | SMS КОДОВЕ | СТАТИСТИКА | ПОМОЩ | ОБЩИ УСЛОВИЯ | РЕКЛАМА | ТОП ОФЕРТА | Въпроси и предложения към imot.bg
Резон Медия | Имоти | Автомобили | Работа | Новини | Обяви | Преводи и легализация 2002-2025 ® Copyright imot.bg
Следвайте ни в: