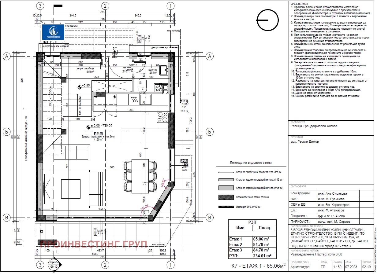
-първи жилищен етаж- трапезария и кухненски бокс/42.52кв.м/, коридор/8.54кв.м/, ктоалетна и техническо помещение, от дневната с веранда.
-втори жилищен етаж- три спални, две бани с тоалетни и мокро помещение,
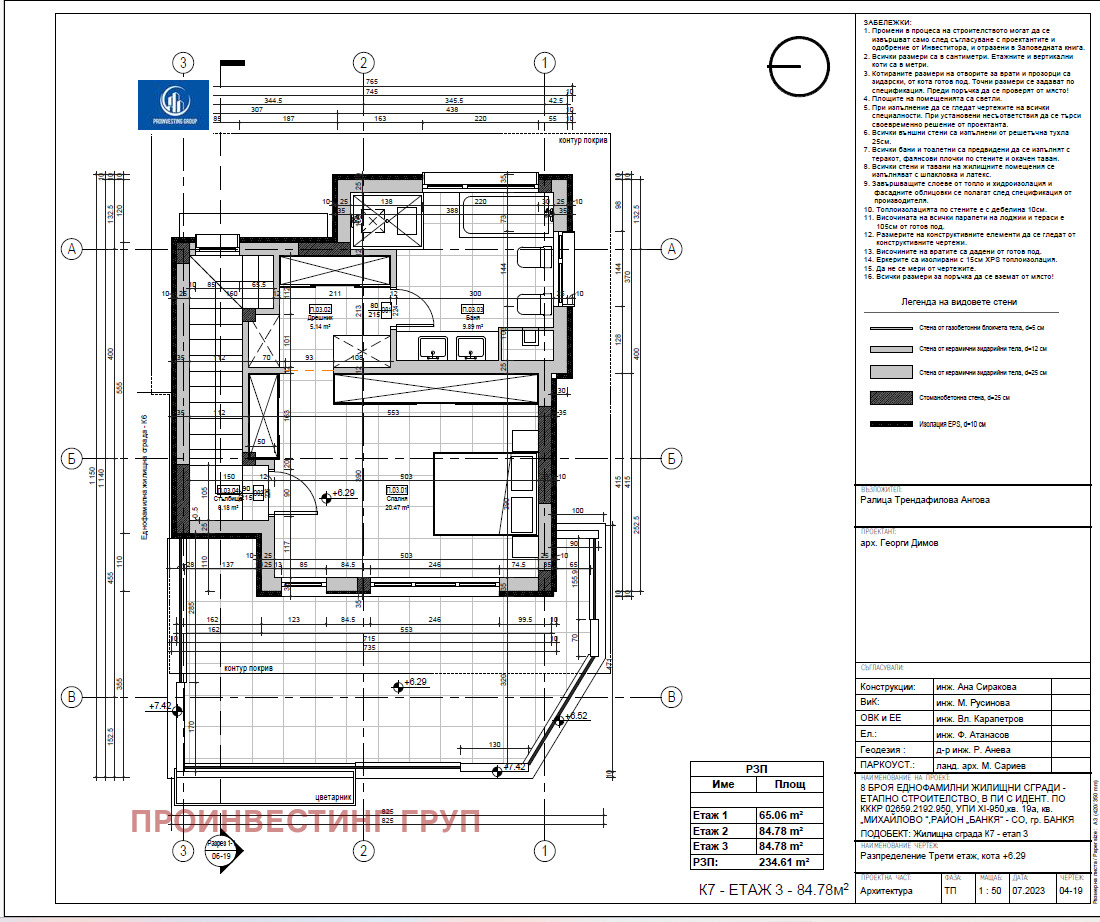
-трети жилищен етаж- спалня от 20.00кв.м,дрешник, баня с тоалетна.
Издава се с направена външна изолация и мазилка, на машинна шпакловка, с подово отопление, с предвидено отопление с термопомпа.
Дворът ще се издава с направена вертикална планировка и озеленен, с изградени перболи над две паркоместа.
На 50 метра от спирката на автобус 42,който е свръзка с метростанция Люлин.
Виж всички обяви в proinvesting.bazar.bg или тук






