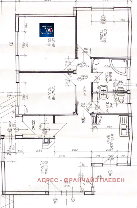
Разпределение на вътрешните помещения: просторна дневна с кухненски бокс, три спални, баня с тоалетна, в която вече са направени изводи, готови за бъдещи подобрения, отделна тоалетна със също така направени изводи за тоалетна и мивка.
Удобства и подобрения: външна веранда, нови електрически и водопроводни инсталации, подово отопление в дневната и кухненския бокс. В момента, къщата е на етап подпаркетно и шпаковка, което оставя възможност за персонализация и завършване според вашите предпочитания. Поставена е и дограма с ролетни щори.
Изолация и допълнителни сгради: има външна изолация на част от нея, като са закупени материали за изолация на цялата къща. Към имота има и втора, стара къща с две стаи и баня с тоалетна, предоставяща допълнително пространство или потенциал за реновация и използване според вашите нужди.
За повече информация и огледи - 0889 003 359. Съдействаме за ипотечни и потребителски кредити, чрез КредитЦентър.Последвайте страницата ни във фейсбук: АДРЕС-Недвижими имоти Плевен.
Виж всички обяви в koki_cvetanov.bazar.bg или тук
        
       
         
         
         
         
         
         
         
         
         
         
         
         
         
         
         
         
         
             
             
             
             
             
             
             
             
             
             
             
             
             
             
             
             
            






