Това предложение е за хората, които търсят уют и спокойствие, но не искат да се лишават от удобството на близостта до центъра. Имотът се намира в кв. Борово зелено и тихо място, само на около 600 метра от центъра на Габрово.
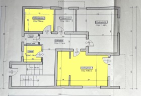
Жилищен етаж 85 кв.м
* Просторна всекидневна с излаз към тераса
* Трапезария с кухненски бокс
* Спалня с тераса
* Втора спалня за детска или гостна
* Баня с тоалетна
* Мокро помещение
Приземен етаж
* Допълнителна стая с бокс 18.8 кв.м подходяща кабинет или стая за гости
* Отделна тоалетна - 3.1 кв.м
* Мазе 7.2 кв.м удобно за съхранение
🌳 Имотът включва 1/2 идеална част от парцел с площ 576 кв.м, с помощна постройка в двора.
Районът е зелен и спокоен, а съседите са мили и приятни хора, живеещи в разбирателство.
⚒️ Жилището е за ремонт предимство за тези, които искат да вложат собствен стил и да създадат дом, който отразява тяхната индивидуалност.
Цената от 131 000 лв. е оправдана с оглед на локацията, квадратурата, двора и потенциала за модернизация. Документите са напълно изрядни, което гарантира сигурна сделка.
H-1686932
Виж всички обяви в sdelka.bazar.bg или тук



