Translations in other languages:
All real estate ads published on
imot.bg
have been translated into English and published on the partner site
Continue
Получихте нова обява по филтър
Промяна на цена на наблюдавана обява
стара цена
нова цена
Сайт за имоти
№1
ДОБАВИ ОБЯВА
Редакция на обява
Вход
|
Нова Регистрация
Начало
Публикуване
Търсене
Нови сгради
Агенции
Новини
Кредити
+ Още...
Моят имот
Избор на рубрика
|
Продава
|
Дава под наем
|
Купува
|
Търси да наеме
|
Заменя
|
Съквартиранти
Колко струва моят имот?
НОВО ТЪРСЕНЕ
|
КОРЕКЦИЯ НА ТЪРСЕНЕТО
|
РЕЗУЛТАТИ ОТ ТЪРСЕНЕТО
Увеличи
1
/
1
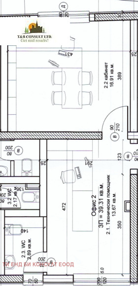
120 000 €/234 699.60 лв., Продава ОФИС, град София, Гео Милев
Площ: 49 кв.м, Агенция, Етаж: Партер от 5, ТEЦ: ДА, Тухла, Ще бъде въведен в експлоатация 2026 г.,
Продава ОФИС
град София, Гео Милев,
ул. Ген. Сан Мартин
Виж карта
120 000 €
234 699.60 лв.
(2 449 €, 4 789.83 лв./m
2
)
Цената е с включено ДДС
Публикувана в 13:21 на 3 октомври, 2025 год.
Обявата е посетена
57
пъти.
Площ:
49 m
2
Етаж:
Партер от 5
ТEЦ:
ДА
Строителство:
Тухла,
Ще бъде въведен в експлоатация
2026 г.
Напиши Бележка
Дай оценка
Съобщи за нередност
03:21 ч., 04.10.2025
Изтрий
Редактирай
Отказ
Запиши
Оценка: от 10
03:21 ч., 04.10.2025
(Ще получите SMS с ключ за верификация)
Съгласявам се с
общите условия
и
политики за защита на личните данни
Изпрати
Описание на имота:
ДИРЕКТНО ОТ ИНВЕСТИТОР! БЕЗ КОМИСИОН ОТ КУПУВАЧА!
Предлагаме на Вашето внимание за продажба офис в кв. Гео Милев. Ситуиран е на партерен етаж в нова сграда, намираща се на много комуникативно място в квартала с постоянен човекопоток.
Чистата му площ е 39кв.м., разпределена по следния начин: две отделни помещения и санитарен възел.
За повече информация и огледи на телефон: 0897 38 98 98 - Валери Борисов
Виж всички обяви на агенцията в
tandbconsult.bazar.bg
или
тук
.
Особености:
• Тухла
• Асансьор
• Контрол на достъпа
За контакти:
0899 88 16 26
Брокер: Валери Борисов
Офис: София бул. Акад. Борис Стефанов 35,South Mall ет.2
Телефон: 0897389898
Още оферти от брокера:
продава
|
дава под наем
|
купува
|
наема
Изпрати запитване:
Вашето съобщение (до 1000 символа
):
Вашето име:
Вашия мобилен телефон:
Вашия E-mail:
Изпрати Е-mail
Съгласявам се с
общите условия
и
политики за защита на личните данни
Агенция: ТИ ЕНД БИ КОНСУЛТ ЕООД
http://tandbconsult.imot.bg
Още оферти:
продава
|
дава под наем
|
купува
|
наема
Адрес: област София, гр. София, ж.к. Студентски град, ул. Акад. Борис Стефанов 35, ет.1, магазин 18
Тел.: 0899881626
http://tandbconsult.imot.bg/
Продава ОФИС
град София, Гео Милев
ул. Ген. Сан Мартин
Обява: 1g175948686771119
120 000 €
234 699.60 лв.
(2 449 €, 4 789.83 лв./m
2
)
Цената е с включено ДДС
0899 88 16 26
Изпрати E-mail на продавача
ЗАПАЗИ ОБЯВАТА
Сподели:
ТИ ЕНД БИ КОНСУЛТ ЕООД
област София, гр. София, ж.к. Студентски град, ул. Акад. Борис Стефанов 35, ет.1, магазин 18
В imot.bg
от 2015 г.
Виж всички имоти на агенцията
Местоположение:
град София, Гео Милев, ул. Ген. Сан Мартин
Допълнителни данни за имотите в района и сравнение с други райони:
Търсене в АРХИВ 2013 - 2025 г.
Изберете вида на имота и района
Вид на имота:
Област / Град:
Район:
1
1-СТАЕН
2-СТАЕН
3-СТАЕН
4-СТАЕН
МНОГОСТАЕН
МЕЗОНЕТ
ОФИС
АТЕЛИЕ, ТАВАН
ЕТАЖ ОТ КЪЩА
КЪЩА
ВИЛА
МАГАЗИН
ЗАВЕДЕНИЕ
СКЛАД
ГАРАЖ, ПАРКОМЯСТО
ПРОМ. ПОМЕЩЕНИЕ
ХОТЕЛ
ПАРЦЕЛ
ЗЕМЕДЕЛСКА ЗЕМЯ
БИЗНЕС ИМОТ
град Благоевград
град Бургас
град Варна
град Велико Търново
град Видин
град Враца
град Габрово
град Добрич
град Кърджали
град Кюстендил
град Ловеч
град Монтана
град Пазарджик
град Перник
град Плевен
град Пловдив
град Разград
град Русе
град Силистра
град Сливен
град Смолян
град София
град Стара Загора
град Търговище
град Хасково
град Шумен
град Ямбол
7-ми 11-ти километър
Абдовица
Банишора
Белите брези
Бенковски
Борово
Ботунец
Ботунец 2
Бояна
Бъкстон
Витоша
Военна рампа
Враждебна
Връбница 1
Връбница 2
Гевгелийски
Гео Милев
Горна баня
Горубляне
Гоце Делчев
Градина
Дианабад
Димитър Миленков
Докторски паметник
Драгалевци
Дружба 1
Дружба 2
Дървеница
Експериментален
Западен парк
Захарна фабрика
Зона Б-18
Зона Б-19
Зона Б-5
Зона Б-5-3
Иван Вазов
Изгрев
Изток
Илинден
Илиянци
Карпузица
Княжево
Красна поляна 1
Красна поляна 2
Красна поляна 3
Красно село
Кремиковци
Кръстова вада
Лагера
Левски
Левски В
Левски Г
Летище София
Лозенец
Люлин - център
Люлин 1
Люлин 10
Люлин 2
Люлин 3
Люлин 4
Люлин 5
Люлин 6
Люлин 7
Люлин 8
Люлин 9
Малашевци
Малинова долина
Манастирски ливади
Медицинска академия
Младост 1
Младост 1А
Младост 2
Младост 3
Младост 4
Модерно предградие
Мусагеница
Надежда 1
Надежда 2
Надежда 3
Надежда 4
НПЗ Изток
НПЗ Искър
НПЗ Средец
НПЗ Хаджи Димитър
Обеля
Обеля 1
Обеля 2
Оборище
Овча купел
Овча купел 1
Овча купел 2
Орландовци
Павлово
ПЗ Илиянци
ПЗ Хладилника
Подуяне
Полигона
Разсадника
Редута
Република
Република 2
Света Троица
Свобода
Сердика
Сеславци
Симеоново
Славия
Слатина
СПЗ Модерно предградие
СПЗ Слатина
Стрелбище
Студентски град
Сухата река
Суходол
Толстой
Требич
Триъгълника
Факултета
Филиповци
Фондови жилища
Хаджи Димитър
Хиподрума
Хладилника
Христо Ботев
Център
Челопечене
Яворов
в.з.Американски колеж
в.з.Беловодски път
в.з.Бояна
в.з.Бункера
в.з.Врана - Герман
в.з.Врана - Лозен
в.з.Горна баня
в.з.Килиите
в.з.Киноцентъра
в.з.Киноцентъра 3 част
в.з.Люлин
в.з.Малинова долина
в.з.Малинова долина - Герена
в.з.Симеоново - Драгалевци
в.з.Черния кос
гр. Банкя
гр. Бухово
гр. Нови Искър
ж.гр.Зоопарк
ж.гр.Южен парк
м-т Барите
м-т Батареята
м-т Гърдова глава
м-т Детски град
м-т Камбаните
м-т Киноцентъра
м-т Мала кория
м-т Подлозище
м-т Щъркелово гнездо
м-т Юбилейна гора
м-т яз. Искър
м-т Яладжа
с. Балша
с. Бистрица
с. Бусманци
с. Владая
с. Войнеговци
с. Волуяк
с. Герман
с. Горни Богров
с. Доброславци
с. Долни Богров
с. Долни Пасарел
с. Железница
с. Желява
с. Житен
с. Иваняне
с. Казичене
с. Клисура
с. Кокаляне
с. Кривина
с. Кубратово
с. Кътина
с. Лозен
с. Локорско
с. Мало Бучино
с. Мировяне
с. Мрамор
с. Мърчаево
с. Негован
с. Панчарево
с. Плана
с. Подгумер
с. Световрачене
с. Чепинци
с. Яна
2
1-СТАЕН
2-СТАЕН
3-СТАЕН
4-СТАЕН
МНОГОСТАЕН
МЕЗОНЕТ
ОФИС
АТЕЛИЕ, ТАВАН
ЕТАЖ ОТ КЪЩА
КЪЩА
ВИЛА
МАГАЗИН
ЗАВЕДЕНИЕ
СКЛАД
ГАРАЖ, ПАРКОМЯСТО
ПРОМ. ПОМЕЩЕНИЕ
ХОТЕЛ
ПАРЦЕЛ
ЗЕМЕДЕЛСКА ЗЕМЯ
БИЗНЕС ИМОТ
град Благоевград
град Бургас
град Варна
град Велико Търново
град Видин
град Враца
град Габрово
град Добрич
град Кърджали
град Кюстендил
град Ловеч
град Монтана
град Пазарджик
град Перник
град Плевен
град Пловдив
град Разград
град Русе
град Силистра
град Сливен
град Смолян
град София
град Стара Загора
град Търговище
град Хасково
град Шумен
град Ямбол
7-ми 11-ти километър
Абдовица
Банишора
Белите брези
Бенковски
Борово
Ботунец
Ботунец 2
Бояна
Бъкстон
Витоша
Военна рампа
Враждебна
Връбница 1
Връбница 2
Гевгелийски
Гео Милев
Горна баня
Горубляне
Гоце Делчев
Градина
Дианабад
Димитър Миленков
Докторски паметник
Драгалевци
Дружба 1
Дружба 2
Дървеница
Експериментален
Западен парк
Захарна фабрика
Зона Б-18
Зона Б-19
Зона Б-5
Зона Б-5-3
Иван Вазов
Изгрев
Изток
Илинден
Илиянци
Карпузица
Княжево
Красна поляна 1
Красна поляна 2
Красна поляна 3
Красно село
Кремиковци
Кръстова вада
Лагера
Левски
Левски В
Левски Г
Летище София
Лозенец
Люлин - център
Люлин 1
Люлин 10
Люлин 2
Люлин 3
Люлин 4
Люлин 5
Люлин 6
Люлин 7
Люлин 8
Люлин 9
Малашевци
Малинова долина
Манастирски ливади
Медицинска академия
Младост 1
Младост 1А
Младост 2
Младост 3
Младост 4
Модерно предградие
Мусагеница
Надежда 1
Надежда 2
Надежда 3
Надежда 4
НПЗ Изток
НПЗ Искър
НПЗ Средец
НПЗ Хаджи Димитър
Обеля
Обеля 1
Обеля 2
Оборище
Овча купел
Овча купел 1
Овча купел 2
Орландовци
Павлово
ПЗ Илиянци
ПЗ Хладилника
Подуяне
Полигона
Разсадника
Редута
Република
Република 2
Света Троица
Свобода
Сердика
Сеславци
Симеоново
Славия
Слатина
СПЗ Модерно предградие
СПЗ Слатина
Стрелбище
Студентски град
Сухата река
Суходол
Толстой
Требич
Триъгълника
Факултета
Филиповци
Фондови жилища
Хаджи Димитър
Хиподрума
Хладилника
Христо Ботев
Център
Челопечене
Яворов
в.з.Американски колеж
в.з.Беловодски път
в.з.Бояна
в.з.Бункера
в.з.Врана - Герман
в.з.Врана - Лозен
в.з.Горна баня
в.з.Килиите
в.з.Киноцентъра
в.з.Киноцентъра 3 част
в.з.Люлин
в.з.Малинова долина
в.з.Малинова долина - Герена
в.з.Симеоново - Драгалевци
в.з.Черния кос
гр. Банкя
гр. Бухово
гр. Нови Искър
ж.гр.Зоопарк
ж.гр.Южен парк
м-т Барите
м-т Батареята
м-т Гърдова глава
м-т Детски град
м-т Камбаните
м-т Киноцентъра
м-т Мала кория
м-т Подлозище
м-т Щъркелово гнездо
м-т Юбилейна гора
м-т яз. Искър
м-т Яладжа
с. Балша
с. Бистрица
с. Бусманци
с. Владая
с. Войнеговци
с. Волуяк
с. Герман
с. Горни Богров
с. Доброславци
с. Долни Богров
с. Долни Пасарел
с. Железница
с. Желява
с. Житен
с. Иваняне
с. Казичене
с. Клисура
с. Кокаляне
с. Кривина
с. Кубратово
с. Кътина
с. Лозен
с. Локорско
с. Мало Бучино
с. Мировяне
с. Мрамор
с. Мърчаево
с. Негован
с. Панчарево
с. Плана
с. Подгумер
с. Световрачене
с. Чепинци
с. Яна
3
1-СТАЕН
2-СТАЕН
3-СТАЕН
4-СТАЕН
МНОГОСТАЕН
МЕЗОНЕТ
ОФИС
АТЕЛИЕ, ТАВАН
ЕТАЖ ОТ КЪЩА
КЪЩА
ВИЛА
МАГАЗИН
ЗАВЕДЕНИЕ
СКЛАД
ГАРАЖ, ПАРКОМЯСТО
ПРОМ. ПОМЕЩЕНИЕ
ХОТЕЛ
ПАРЦЕЛ
ЗЕМЕДЕЛСКА ЗЕМЯ
БИЗНЕС ИМОТ
град Благоевград
град Бургас
град Варна
град Велико Търново
град Видин
град Враца
град Габрово
град Добрич
град Кърджали
град Кюстендил
град Ловеч
град Монтана
град Пазарджик
град Перник
град Плевен
град Пловдив
град Разград
град Русе
град Силистра
град Сливен
град Смолян
град София
град Стара Загора
град Търговище
град Хасково
град Шумен
град Ямбол
7-ми 11-ти километър
Абдовица
Банишора
Белите брези
Бенковски
Борово
Ботунец
Ботунец 2
Бояна
Бъкстон
Витоша
Военна рампа
Враждебна
Връбница 1
Връбница 2
Гевгелийски
Гео Милев
Горна баня
Горубляне
Гоце Делчев
Градина
Дианабад
Димитър Миленков
Докторски паметник
Драгалевци
Дружба 1
Дружба 2
Дървеница
Експериментален
Западен парк
Захарна фабрика
Зона Б-18
Зона Б-19
Зона Б-5
Зона Б-5-3
Иван Вазов
Изгрев
Изток
Илинден
Илиянци
Карпузица
Княжево
Красна поляна 1
Красна поляна 2
Красна поляна 3
Красно село
Кремиковци
Кръстова вада
Лагера
Левски
Левски В
Левски Г
Летище София
Лозенец
Люлин - център
Люлин 1
Люлин 10
Люлин 2
Люлин 3
Люлин 4
Люлин 5
Люлин 6
Люлин 7
Люлин 8
Люлин 9
Малашевци
Малинова долина
Манастирски ливади
Медицинска академия
Младост 1
Младост 1А
Младост 2
Младост 3
Младост 4
Модерно предградие
Мусагеница
Надежда 1
Надежда 2
Надежда 3
Надежда 4
НПЗ Изток
НПЗ Искър
НПЗ Средец
НПЗ Хаджи Димитър
Обеля
Обеля 1
Обеля 2
Оборище
Овча купел
Овча купел 1
Овча купел 2
Орландовци
Павлово
ПЗ Илиянци
ПЗ Хладилника
Подуяне
Полигона
Разсадника
Редута
Република
Република 2
Света Троица
Свобода
Сердика
Сеславци
Симеоново
Славия
Слатина
СПЗ Модерно предградие
СПЗ Слатина
Стрелбище
Студентски град
Сухата река
Суходол
Толстой
Требич
Триъгълника
Факултета
Филиповци
Фондови жилища
Хаджи Димитър
Хиподрума
Хладилника
Христо Ботев
Център
Челопечене
Яворов
в.з.Американски колеж
в.з.Беловодски път
в.з.Бояна
в.з.Бункера
в.з.Врана - Герман
в.з.Врана - Лозен
в.з.Горна баня
в.з.Килиите
в.з.Киноцентъра
в.з.Киноцентъра 3 част
в.з.Люлин
в.з.Малинова долина
в.з.Малинова долина - Герена
в.з.Симеоново - Драгалевци
в.з.Черния кос
гр. Банкя
гр. Бухово
гр. Нови Искър
ж.гр.Зоопарк
ж.гр.Южен парк
м-т Барите
м-т Батареята
м-т Гърдова глава
м-т Детски град
м-т Камбаните
м-т Киноцентъра
м-т Мала кория
м-т Подлозище
м-т Щъркелово гнездо
м-т Юбилейна гора
м-т яз. Искър
м-т Яладжа
с. Балша
с. Бистрица
с. Бусманци
с. Владая
с. Войнеговци
с. Волуяк
с. Герман
с. Горни Богров
с. Доброславци
с. Долни Богров
с. Долни Пасарел
с. Железница
с. Желява
с. Житен
с. Иваняне
с. Казичене
с. Клисура
с. Кокаляне
с. Кривина
с. Кубратово
с. Кътина
с. Лозен
с. Локорско
с. Мало Бучино
с. Мировяне
с. Мрамор
с. Мърчаево
с. Негован
с. Панчарево
с. Плана
с. Подгумер
с. Световрачене
с. Чепинци
с. Яна
4
1-СТАЕН
2-СТАЕН
3-СТАЕН
4-СТАЕН
МНОГОСТАЕН
МЕЗОНЕТ
ОФИС
АТЕЛИЕ, ТАВАН
ЕТАЖ ОТ КЪЩА
КЪЩА
ВИЛА
МАГАЗИН
ЗАВЕДЕНИЕ
СКЛАД
ГАРАЖ, ПАРКОМЯСТО
ПРОМ. ПОМЕЩЕНИЕ
ХОТЕЛ
ПАРЦЕЛ
ЗЕМЕДЕЛСКА ЗЕМЯ
БИЗНЕС ИМОТ
град Благоевград
град Бургас
град Варна
град Велико Търново
град Видин
град Враца
град Габрово
град Добрич
град Кърджали
град Кюстендил
град Ловеч
град Монтана
град Пазарджик
град Перник
град Плевен
град Пловдив
град Разград
град Русе
град Силистра
град Сливен
град Смолян
град София
град Стара Загора
град Търговище
град Хасково
град Шумен
град Ямбол
7-ми 11-ти километър
Абдовица
Банишора
Белите брези
Бенковски
Борово
Ботунец
Ботунец 2
Бояна
Бъкстон
Витоша
Военна рампа
Враждебна
Връбница 1
Връбница 2
Гевгелийски
Гео Милев
Горна баня
Горубляне
Гоце Делчев
Градина
Дианабад
Димитър Миленков
Докторски паметник
Драгалевци
Дружба 1
Дружба 2
Дървеница
Експериментален
Западен парк
Захарна фабрика
Зона Б-18
Зона Б-19
Зона Б-5
Зона Б-5-3
Иван Вазов
Изгрев
Изток
Илинден
Илиянци
Карпузица
Княжево
Красна поляна 1
Красна поляна 2
Красна поляна 3
Красно село
Кремиковци
Кръстова вада
Лагера
Левски
Левски В
Левски Г
Летище София
Лозенец
Люлин - център
Люлин 1
Люлин 10
Люлин 2
Люлин 3
Люлин 4
Люлин 5
Люлин 6
Люлин 7
Люлин 8
Люлин 9
Малашевци
Малинова долина
Манастирски ливади
Медицинска академия
Младост 1
Младост 1А
Младост 2
Младост 3
Младост 4
Модерно предградие
Мусагеница
Надежда 1
Надежда 2
Надежда 3
Надежда 4
НПЗ Изток
НПЗ Искър
НПЗ Средец
НПЗ Хаджи Димитър
Обеля
Обеля 1
Обеля 2
Оборище
Овча купел
Овча купел 1
Овча купел 2
Орландовци
Павлово
ПЗ Илиянци
ПЗ Хладилника
Подуяне
Полигона
Разсадника
Редута
Република
Република 2
Света Троица
Свобода
Сердика
Сеславци
Симеоново
Славия
Слатина
СПЗ Модерно предградие
СПЗ Слатина
Стрелбище
Студентски град
Сухата река
Суходол
Толстой
Требич
Триъгълника
Факултета
Филиповци
Фондови жилища
Хаджи Димитър
Хиподрума
Хладилника
Христо Ботев
Център
Челопечене
Яворов
в.з.Американски колеж
в.з.Беловодски път
в.з.Бояна
в.з.Бункера
в.з.Врана - Герман
в.з.Врана - Лозен
в.з.Горна баня
в.з.Килиите
в.з.Киноцентъра
в.з.Киноцентъра 3 част
в.з.Люлин
в.з.Малинова долина
в.з.Малинова долина - Герена
в.з.Симеоново - Драгалевци
в.з.Черния кос
гр. Банкя
гр. Бухово
гр. Нови Искър
ж.гр.Зоопарк
ж.гр.Южен парк
м-т Барите
м-т Батареята
м-т Гърдова глава
м-т Детски град
м-т Камбаните
м-т Киноцентъра
м-т Мала кория
м-т Подлозище
м-т Щъркелово гнездо
м-т Юбилейна гора
м-т яз. Искър
м-т Яладжа
с. Балша
с. Бистрица
с. Бусманци
с. Владая
с. Войнеговци
с. Волуяк
с. Герман
с. Горни Богров
с. Доброславци
с. Долни Богров
с. Долни Пасарел
с. Железница
с. Желява
с. Житен
с. Иваняне
с. Казичене
с. Клисура
с. Кокаляне
с. Кривина
с. Кубратово
с. Кътина
с. Лозен
с. Локорско
с. Мало Бучино
с. Мировяне
с. Мрамор
с. Мърчаево
с. Негован
с. Панчарево
с. Плана
с. Подгумер
с. Световрачене
с. Чепинци
с. Яна
Откажи
OK
Цена на имота
Цена на кв.м.
Наем на имота
Цена/Год.наем
Брой оферти
Брой търсения
Разглеждания
1 месец
1 година
3 години
21 години
и 9 месеца
Добави/редактирай
вид имот и район
*Средните цени са определени чрез
медиана стойност
.
Виж още
имоти от София
или
още Офиси в София
Още обяви в imot.bg от ТИ ЕНД БИ КОНСУЛТ ЕООД
Виж всички
Продава 2-СТАЕН
160 000 €
312 932.80 лв.
(63 кв.м)
град София Малинова долина
Продава 3-СТАЕН
330 000 €
645 423.90 лв.
(88 кв.м)
град София Лозенец
Продава 2-СТАЕН
250 000 €
488 957.50 лв.
(65 кв.м)
град София Малинова долина
Продава 3-СТАЕН
269 000 €
526 118.27 лв.
(78 кв.м)
град София Студентски град
КОНТАКТИ
|
SMS КОДОВЕ
|
СТАТИСТИКА
|
ПОМОЩ
|
ОБЩИ УСЛОВИЯ
|
РЕКЛАМА
|
ТОП ОФЕРТА
|
Въпроси и предложения към imot.bg
Резон Медия
|
Имоти
|
Автомобили
|
Работа
|
Новини
|
Обяви
|
Преводи и легализация
2002-2025 ® Copyright imot.bg
Следвайте ни в: