Translations in other languages:
All real estate ads published on
imot.bg
have been translated into English and published on the partner site
Continue
Получихте нова обява по филтър
Промяна на цена на наблюдавана обява
стара цена
нова цена
Сайт за имоти
№1
ДОБАВИ ОБЯВА
Редакция на обява
Вход
|
Нова Регистрация
Начало
Публикуване
Търсене
Нови сгради
Агенции
Новини
Кредити
+ Още...
Моят имот
Избор на рубрика
|
Продава
|
Дава под наем
|
Купува
|
Търси да наеме
|
Заменя
|
Съквартиранти
Колко струва моят имот?
НОВО ТЪРСЕНЕ
|
КОРЕКЦИЯ НА ТЪРСЕНЕТО
|
РЕЗУЛТАТИ ОТ ТЪРСЕНЕТО
Увеличи
1
/
1
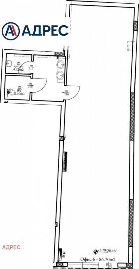
195 000 €/381 386.85 лв., Продава ОФИС, град Варна, Център
Площ: 98 кв.м, Агенция, Етаж: Партер от 8, Газ: НЕ, ТEЦ: НЕ, Тухла, 2025 г.,
Продава ОФИС
град Варна, Център
Виж карта
195 000 €
381 386.85 лв.
(1 990 €, 3 892.10 лв./m
2
)
Цената е с включено ДДС
Публикувана в 11:16 на 3 октомври, 2025 год.
Обявата е посетена
38
пъти.
Площ:
98 m
2
Етаж:
Партер от 8
Газ:
НЕ
ТEЦ:
НЕ
Строителство:
Тухла,
2025 г.
Напиши Бележка
Дай оценка
Съобщи за нередност
18:40 ч., 06.10.2025
Изтрий
Редактирай
Отказ
Запиши
Оценка: от 10
18:40 ч., 06.10.2025
(Ще получите SMS с ключ за верификация)
Съгласявам се с
общите условия
и
политики за защита на личните данни
Изпрати
Описание на имота:
Офис/магазин с голямо лице към улица, изцяло партер! Санитарен възел. Удобен за свякаква дейност.
В идеалния център на град Варна, на пешеходно разстояние от Катедралата и Централна поща.
Един невероятен комплекс от няколко сгради с различна височина, покрити приземни паркинги, парк за отдих и развит партерен етаж с магазини и офиси. Комплексът се състои от четири самостоятелни сгради които ще се управляват поотделно, без задължителна такса поддръжка. Богато разнообразие от двустайни и тристайни жилища. Към всеки апартамент има прилежаща изба. Сградите са пред АКТ 15, като завършването е планирано за началото на 2025г. Изключително качествено строителство, даващо висок стандарт на живот в сърцето на Варна.
Нова, луксозна сграда.
Локация, качество, готов проект, изключително атрактивни цени.
Обади се сега и цитирай този код 646497
Виж всички обяви на агенцията в
adress.bazar.bg
или
тук
.
Особености:
• Тухла
• Асансьор
За контакти:
088 21 21 460
Брокер: Клиентски център АДРЕС, Кантора Преслав
Офис: Варна, бул. Мария Луиза 17
Телефон: 0882 121 460
Още оферти от брокера:
продава
|
дава под наем
|
купува
|
наема
Изпрати запитване:
Вашето съобщение (до 1000 символа
):
Вашето име:
Вашия мобилен телефон:
Вашия E-mail:
Изпрати Е-mail
Съгласявам се с
общите условия
и
политики за защита на личните данни
Агенция: АДРЕС
http://adress.imot.bg
Още оферти:
продава
|
дава под наем
|
купува
|
наема
Адрес: област Варна, гр. Варна, бул. Мария Луиза 17
Тел.: 0882 121 460
http://www.address.bg
Продава ОФИС
град Варна, Център
Обява: 1g175947939038632
195 000 €
381 386.85 лв.
(1 990 €, 3 892.10 лв./m
2
)
Цената е с включено ДДС
088 21 21 460
Изпрати E-mail на продавача
ЗАПАЗИ ОБЯВАТА
Сподели:
АДРЕС
област Варна, гр. Варна, бул. Мария Луиза 17
В imot.bg
от 2002 г.
Виж всички имоти на агенцията
Местоположение:
град Варна, Център
Допълнителни данни за имотите в района и сравнение с други райони:
Търсене в АРХИВ 2013 - 2025 г.
Изберете вида на имота и района
Вид на имота:
Област / Град:
Район:
1
1-СТАЕН
2-СТАЕН
3-СТАЕН
4-СТАЕН
МНОГОСТАЕН
МЕЗОНЕТ
ОФИС
АТЕЛИЕ, ТАВАН
ЕТАЖ ОТ КЪЩА
КЪЩА
ВИЛА
МАГАЗИН
ЗАВЕДЕНИЕ
СКЛАД
ГАРАЖ, ПАРКОМЯСТО
ПРОМ. ПОМЕЩЕНИЕ
ХОТЕЛ
ПАРЦЕЛ
ЗЕМЕДЕЛСКА ЗЕМЯ
БИЗНЕС ИМОТ
град Благоевград
град Бургас
град Варна
град Велико Търново
град Видин
град Враца
град Габрово
град Добрич
град Кърджали
град Кюстендил
град Ловеч
град Монтана
град Пазарджик
град Перник
град Плевен
град Пловдив
град Разград
град Русе
град Силистра
град Сливен
град Смолян
град София
град Стара Загора
град Търговище
град Хасково
град Шумен
град Ямбол
Автогара
Аспарухово
Базар Левски
Бизнес парк Варна
Бизнес хотел
Бриз
Виница
ВИНС-Червен площад
Владислав Варненчик 1
Владислав Варненчик 2
Възраждане 1
Възраждане 2
Възраждане 3
Възраждане 4
Галата
Гранд Мол
Гръцка махала
Електроразпределение Варна
ЖП Гара
Завод Дружба
Западна промишлена зона
Зимно кино Тракия
Изгрев
Кайсиева градина
Колхозен пазар
Конфуто
Левски 1
Левски 2
Летище
Лятно кино Тракия
Максуда
Малка Чайка
Метро
Младост 1
Младост 2
Окръжна болница-Генерали
Операта
Островна промишлена зона
Планова промишлена зона
Победа
Погреби
Пристанище Варна
Промишлена зона Тополи
Свети Никола
Северна промишлена зона
Спортна зала
Стадион Спартак
Трошево
Фестивален комплекс
ХЕИ
Христо Ботев
Цветен квартал
Централна поща
Център
Чайка
Чаталджа
в.з.Виница - север
в.з.Звездица
к.к. Златни пясъци
к.к. Св.Св. Константин и Елена
к.к. Слънчев ден
к.к. Чайка
м-т Акчелар
м-т Ален мак
м-т Атанас Тарла
м-т Балам Дере
м-т Боклук Тарла
м-т Боровец - север
м-т Боровец - юг
м-т Горна Трака
м-т Добрева чешма
м-т Долна Трака
м-т Евксиноград
м-т Зеленика
м-т Кантара
м-т Кочмар
м-т Крушките
м-т Лазур
м-т Манастирски рид
м-т Ментешето
м-т Орехчето
м-т Перчемлията
м-т Планова
м-т Прибой
м-т Припек
м-т Пчелина
м-т Ракитника
м-т Салтанат
м-т Сотира
м-т Сълзица
м-т Телевизионна кула
м-т Фичоза
м-т Франга Дере
с. Звездица
с. Казашко
с. Каменар
с. Константиново
с. Тополи
2
1-СТАЕН
2-СТАЕН
3-СТАЕН
4-СТАЕН
МНОГОСТАЕН
МЕЗОНЕТ
ОФИС
АТЕЛИЕ, ТАВАН
ЕТАЖ ОТ КЪЩА
КЪЩА
ВИЛА
МАГАЗИН
ЗАВЕДЕНИЕ
СКЛАД
ГАРАЖ, ПАРКОМЯСТО
ПРОМ. ПОМЕЩЕНИЕ
ХОТЕЛ
ПАРЦЕЛ
ЗЕМЕДЕЛСКА ЗЕМЯ
БИЗНЕС ИМОТ
град Благоевград
град Бургас
град Варна
град Велико Търново
град Видин
град Враца
град Габрово
град Добрич
град Кърджали
град Кюстендил
град Ловеч
град Монтана
град Пазарджик
град Перник
град Плевен
град Пловдив
град Разград
град Русе
град Силистра
град Сливен
град Смолян
град София
град Стара Загора
град Търговище
град Хасково
град Шумен
град Ямбол
Автогара
Аспарухово
Базар Левски
Бизнес парк Варна
Бизнес хотел
Бриз
Виница
ВИНС-Червен площад
Владислав Варненчик 1
Владислав Варненчик 2
Възраждане 1
Възраждане 2
Възраждане 3
Възраждане 4
Галата
Гранд Мол
Гръцка махала
Електроразпределение Варна
ЖП Гара
Завод Дружба
Западна промишлена зона
Зимно кино Тракия
Изгрев
Кайсиева градина
Колхозен пазар
Конфуто
Левски 1
Левски 2
Летище
Лятно кино Тракия
Максуда
Малка Чайка
Метро
Младост 1
Младост 2
Окръжна болница-Генерали
Операта
Островна промишлена зона
Планова промишлена зона
Победа
Погреби
Пристанище Варна
Промишлена зона Тополи
Свети Никола
Северна промишлена зона
Спортна зала
Стадион Спартак
Трошево
Фестивален комплекс
ХЕИ
Христо Ботев
Цветен квартал
Централна поща
Център
Чайка
Чаталджа
в.з.Виница - север
в.з.Звездица
к.к. Златни пясъци
к.к. Св.Св. Константин и Елена
к.к. Слънчев ден
к.к. Чайка
м-т Акчелар
м-т Ален мак
м-т Атанас Тарла
м-т Балам Дере
м-т Боклук Тарла
м-т Боровец - север
м-т Боровец - юг
м-т Горна Трака
м-т Добрева чешма
м-т Долна Трака
м-т Евксиноград
м-т Зеленика
м-т Кантара
м-т Кочмар
м-т Крушките
м-т Лазур
м-т Манастирски рид
м-т Ментешето
м-т Орехчето
м-т Перчемлията
м-т Планова
м-т Прибой
м-т Припек
м-т Пчелина
м-т Ракитника
м-т Салтанат
м-т Сотира
м-т Сълзица
м-т Телевизионна кула
м-т Фичоза
м-т Франга Дере
с. Звездица
с. Казашко
с. Каменар
с. Константиново
с. Тополи
3
1-СТАЕН
2-СТАЕН
3-СТАЕН
4-СТАЕН
МНОГОСТАЕН
МЕЗОНЕТ
ОФИС
АТЕЛИЕ, ТАВАН
ЕТАЖ ОТ КЪЩА
КЪЩА
ВИЛА
МАГАЗИН
ЗАВЕДЕНИЕ
СКЛАД
ГАРАЖ, ПАРКОМЯСТО
ПРОМ. ПОМЕЩЕНИЕ
ХОТЕЛ
ПАРЦЕЛ
ЗЕМЕДЕЛСКА ЗЕМЯ
БИЗНЕС ИМОТ
град Благоевград
град Бургас
град Варна
град Велико Търново
град Видин
град Враца
град Габрово
град Добрич
град Кърджали
град Кюстендил
град Ловеч
град Монтана
град Пазарджик
град Перник
град Плевен
град Пловдив
град Разград
град Русе
град Силистра
град Сливен
град Смолян
град София
град Стара Загора
град Търговище
град Хасково
град Шумен
град Ямбол
Автогара
Аспарухово
Базар Левски
Бизнес парк Варна
Бизнес хотел
Бриз
Виница
ВИНС-Червен площад
Владислав Варненчик 1
Владислав Варненчик 2
Възраждане 1
Възраждане 2
Възраждане 3
Възраждане 4
Галата
Гранд Мол
Гръцка махала
Електроразпределение Варна
ЖП Гара
Завод Дружба
Западна промишлена зона
Зимно кино Тракия
Изгрев
Кайсиева градина
Колхозен пазар
Конфуто
Левски 1
Левски 2
Летище
Лятно кино Тракия
Максуда
Малка Чайка
Метро
Младост 1
Младост 2
Окръжна болница-Генерали
Операта
Островна промишлена зона
Планова промишлена зона
Победа
Погреби
Пристанище Варна
Промишлена зона Тополи
Свети Никола
Северна промишлена зона
Спортна зала
Стадион Спартак
Трошево
Фестивален комплекс
ХЕИ
Христо Ботев
Цветен квартал
Централна поща
Център
Чайка
Чаталджа
в.з.Виница - север
в.з.Звездица
к.к. Златни пясъци
к.к. Св.Св. Константин и Елена
к.к. Слънчев ден
к.к. Чайка
м-т Акчелар
м-т Ален мак
м-т Атанас Тарла
м-т Балам Дере
м-т Боклук Тарла
м-т Боровец - север
м-т Боровец - юг
м-т Горна Трака
м-т Добрева чешма
м-т Долна Трака
м-т Евксиноград
м-т Зеленика
м-т Кантара
м-т Кочмар
м-т Крушките
м-т Лазур
м-т Манастирски рид
м-т Ментешето
м-т Орехчето
м-т Перчемлията
м-т Планова
м-т Прибой
м-т Припек
м-т Пчелина
м-т Ракитника
м-т Салтанат
м-т Сотира
м-т Сълзица
м-т Телевизионна кула
м-т Фичоза
м-т Франга Дере
с. Звездица
с. Казашко
с. Каменар
с. Константиново
с. Тополи
4
1-СТАЕН
2-СТАЕН
3-СТАЕН
4-СТАЕН
МНОГОСТАЕН
МЕЗОНЕТ
ОФИС
АТЕЛИЕ, ТАВАН
ЕТАЖ ОТ КЪЩА
КЪЩА
ВИЛА
МАГАЗИН
ЗАВЕДЕНИЕ
СКЛАД
ГАРАЖ, ПАРКОМЯСТО
ПРОМ. ПОМЕЩЕНИЕ
ХОТЕЛ
ПАРЦЕЛ
ЗЕМЕДЕЛСКА ЗЕМЯ
БИЗНЕС ИМОТ
град Благоевград
град Бургас
град Варна
град Велико Търново
град Видин
град Враца
град Габрово
град Добрич
град Кърджали
град Кюстендил
град Ловеч
град Монтана
град Пазарджик
град Перник
град Плевен
град Пловдив
град Разград
град Русе
град Силистра
град Сливен
град Смолян
град София
град Стара Загора
град Търговище
град Хасково
град Шумен
град Ямбол
Автогара
Аспарухово
Базар Левски
Бизнес парк Варна
Бизнес хотел
Бриз
Виница
ВИНС-Червен площад
Владислав Варненчик 1
Владислав Варненчик 2
Възраждане 1
Възраждане 2
Възраждане 3
Възраждане 4
Галата
Гранд Мол
Гръцка махала
Електроразпределение Варна
ЖП Гара
Завод Дружба
Западна промишлена зона
Зимно кино Тракия
Изгрев
Кайсиева градина
Колхозен пазар
Конфуто
Левски 1
Левски 2
Летище
Лятно кино Тракия
Максуда
Малка Чайка
Метро
Младост 1
Младост 2
Окръжна болница-Генерали
Операта
Островна промишлена зона
Планова промишлена зона
Победа
Погреби
Пристанище Варна
Промишлена зона Тополи
Свети Никола
Северна промишлена зона
Спортна зала
Стадион Спартак
Трошево
Фестивален комплекс
ХЕИ
Христо Ботев
Цветен квартал
Централна поща
Център
Чайка
Чаталджа
в.з.Виница - север
в.з.Звездица
к.к. Златни пясъци
к.к. Св.Св. Константин и Елена
к.к. Слънчев ден
к.к. Чайка
м-т Акчелар
м-т Ален мак
м-т Атанас Тарла
м-т Балам Дере
м-т Боклук Тарла
м-т Боровец - север
м-т Боровец - юг
м-т Горна Трака
м-т Добрева чешма
м-т Долна Трака
м-т Евксиноград
м-т Зеленика
м-т Кантара
м-т Кочмар
м-т Крушките
м-т Лазур
м-т Манастирски рид
м-т Ментешето
м-т Орехчето
м-т Перчемлията
м-т Планова
м-т Прибой
м-т Припек
м-т Пчелина
м-т Ракитника
м-т Салтанат
м-т Сотира
м-т Сълзица
м-т Телевизионна кула
м-т Фичоза
м-т Франга Дере
с. Звездица
с. Казашко
с. Каменар
с. Константиново
с. Тополи
Откажи
OK
Цена на имота
Цена на кв.м.
Наем на имота
Цена/Год.наем
Брой оферти
Брой търсения
Разглеждания
1 месец
1 година
3 години
21 години
и 9 месеца
Добави/редактирай
вид имот и район
*Средните цени са определени чрез
медиана стойност
.
Виж още
имоти от Варна
или
още Офиси във Варна
Още обяви в imot.bg
Продава ОФИС
441 180 €
862 873.08 лв.
(82 кв.м)
град Варна Център
Продава ОФИС
141 000 €
275 772.03 лв.
(47 кв.м)
град Варна Център
Продава ОФИС
550 000 €
1 075 706.50 лв.
(242 кв.м)
град Варна Център
Продава ОФИС
289 990 €
567 171.14 лв.
(200 кв.м)
град Варна Център
Още обяви в imot.bg от АДРЕС
Виж всички
Продава ОФИС
153 000 €
299 241.99 лв.
(70 кв.м)
град Варна Център
Продава ОФИС
420 000 €
821 448.60 лв.
(211 кв.м)
град Варна Център
Продава ОФИС
399 000 €
780 376.17 лв.
(177 кв.м)
град Варна Бриз
Продава ОФИС
345 000 €
674 761.35 лв.
(134 кв.м)
град Варна Спортна зала
КОНТАКТИ
|
SMS КОДОВЕ
|
СТАТИСТИКА
|
ПОМОЩ
|
ОБЩИ УСЛОВИЯ
|
РЕКЛАМА
|
ТОП ОФЕРТА
|
Въпроси и предложения към imot.bg
Резон Медия
|
Имоти
|
Автомобили
|
Работа
|
Новини
|
Обяви
|
Преводи и легализация
2002-2025 ® Copyright imot.bg
Следвайте ни в: