Офисът разполага по проект с едно Open space работно помещение за около 5 работни места.
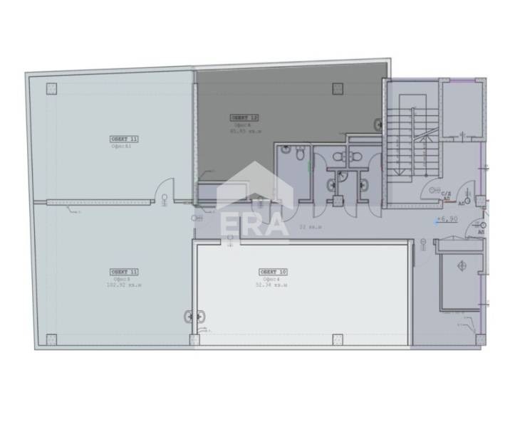
Обща площ: 49.08 кв. м.
Застроена площ: 45.85 кв. м.
Сградата се състои от седем надземни етажа с обща разгъната застроена площ от 5866,74 кв. м. Предвидена е с отделно тяло, специално проектирано за клиника или медицински център. Пространствата в сградата са гъвкави и позволяват индивидуално конфигуриране според нуждите на бъдещите наематели или собственици. В момента сградата е в процес на довършване, като се предлага възможност за персонализирано изпълнение на интериора.
Детайли:
- 7 надземни етажа
- Офиси от 50 кв. м. до 400 кв. м., с възможност за обединяване
- Модерни общи части и панорамен асансьор
- Търговски площи и медицински център
- Паркирането е решено с подземни паркоместа, осигуряващи удобство и директен достъп до сградата
- АКТ 16 до края на 2025 г.
Сградата е подходящ избор както за собствен бизнес, така и като инвестиция с висок потенциал за отдаване под наем. Съчетанието между локация, модерна визия, функционално разпределение и възможност за медицински или търговски функции превръща сградата в отличен избор за компании с визия за развитие и устойчивост.
Обявената цена е без ДДС!
CreditERA предоставя безплатна консултация и съдействие при финансиране на избрания от Вас имот от всички водещи банки в страната и ще договори най-добрите условия за вас!
Оферта 4062297
Виж всички обяви в goldestate.bazar.bg или тук







