Translations in other languages:
All real estate ads published on imot.bg have been translated into English and published on the partner site
Получихте нова обява по филтър





Промяна на цена на наблюдавана обява


стара цена
нова цена
imot.bg – обяви за продажби и наеми на имоти
Сайт за имоти №1
Начало Публикуване Търсене Нови сгради Агенции Новини Кредити + Още... Моят имот
Продава МЕЗОНЕТ
град Велико Търново, Акация
135 000 €
264 037.05 лв.

(925 €, 1 809.14 лв./m2)
Цената е с включено ДДС
Публикувана в 11:05 на 24 септември, 2025 год.
Обявата е посетена 216 пъти.
Площ:
146 m2
Етаж:
2-ри от 4
Газ:
НЕ
ТEЦ:
НЕ
Строителство:
Тухла, Въведен в експлоатация 1980 - 1989 г.

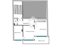
Описание на имота:

ЕРА Царевец има удоволствието да представи ЕКСКЛУЗИВНО на вашето внимание просторен многостаен апартамент, разположен на тихо и спокойно място в ж.к. Акация, ул. 'Панорамна'. Този имот впечатлява със своите светли помещения, функционално разпределение и завладяваща панорамна гледка към връх Бузлуджа и крепостта Царевец.

Апартаментът се състои от два етажа, със застроена площ от 120 кв.м и предлага отлични възможности за комфортно семейно жилище. Влизайки в апартамента, ще бъдете посрещнати от коридор, който води към просторен и светъл хол, предлагащ идеални условия за почивка и релаксация. Холът е свързан с трапезария и кухня, които създават приятна атмосфера за семейни събирания. За повече удобство, разполагате и с тоалетна.
Изключителен акцент на етажа е терасата, от която се разкрива спираща дъха панорамна гледка към планината, връх Бузлуджа и Царевец, предоставяйки спокойствие и усещане за простор.

До втория етаж се стига по удобно вътрешно стълбище, което отвежда към до... Виж повече
Виж всички обяви на агенцията в eraestate.bazar.bg или тук.
Особености:
• Тухла
       


За контакти:  0883700886
Агенция: ЕРА ЦАРЕВЕЦ

http://eraestate.imot.bg

Още оферти: продава | дава под наем | купува | наема

Адрес: област Велико Търново, гр. Велико Търново, ул. Хаджи Димитър 25
Тел.: 0883700886
https://www.era.bg/offices/tsarevets
Изпрати запитване:
 
Вашето съобщение (до 1000 символа):
Вашето име: Вашия мобилен телефон:

Вашия E-mail:  
Изпрати Е-mail
Съгласявам се с общите условия и политики за защита на личните данни

Продава МЕЗОНЕТ
град Велико Търново, Акация
Обява: 1f175870110229271

135 000 €
264 037.05 лв.
(925 €, 1 809.14 лв./m2)

Цената е с включено ДДС
 

Местоположение: град Велико Търново, Акация

Допълнителни данни за имотите в района и сравнение с други райони: Търсене в АРХИВ 2013 - 2025 г.











Добави/редактирай
вид имот и район
*Средните цени са определени чрез медиана стойност.

Още обяви в imot.bg
КОНТАКТИ | SMS КОДОВЕ | СТАТИСТИКА | ПОМОЩ | ОБЩИ УСЛОВИЯ | РЕКЛАМА | ТОП ОФЕРТА | Въпроси и предложения към imot.bg
Резон Медия | Имоти | Автомобили | Работа | Новини | Обяви | Преводи и легализация 2002-2025 ® Copyright imot.bg
Следвайте ни в: