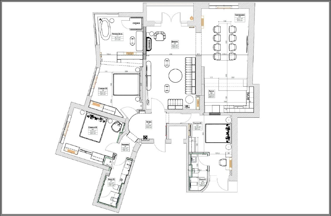
Разпределение: Просторно входно антре, слънчева всекидневна 61,70 кв. м разделена на две зони - хол и кухня с трапезария, 3 спални, 3 бани с тоалетна и 2 тераси. Изложение: Изток/Юг/Запад.
Жилището се продава завършено по индивидуален дизайнерски проект, напълно обзаведено и оборудвано с всичко необходимо.
Детайли:
- Отлично разпределение, с усещане за простор и уют, и високи тавани 3 метра
- Изискан интериор с мраморни акценти, в комбинация от дървени ламперии, кръгли полилеи с LED светлини, скрито осветление в тавана, елегантни стенни аплици и модерни технологий
- Мастър спалня със собствена баня с тоалетна, със свободностояща вана и интегрирана сауна
- Двойно отопление - ТЕЦ и конвекторни радиатори с чилър система за отопление и охлаждане
- Представителна сграда с просторно фоайе и асансьор 'Schindler'
Цена : 1 700 000Е
CreditERA предоставя безплатна консултация и съдействие при финансиране на избрания от Вас имот от всички водещи банки в страната и ще договори най-добрите условия за вас!
Виж всички обяви в goldestate.bazar.bg или тук







