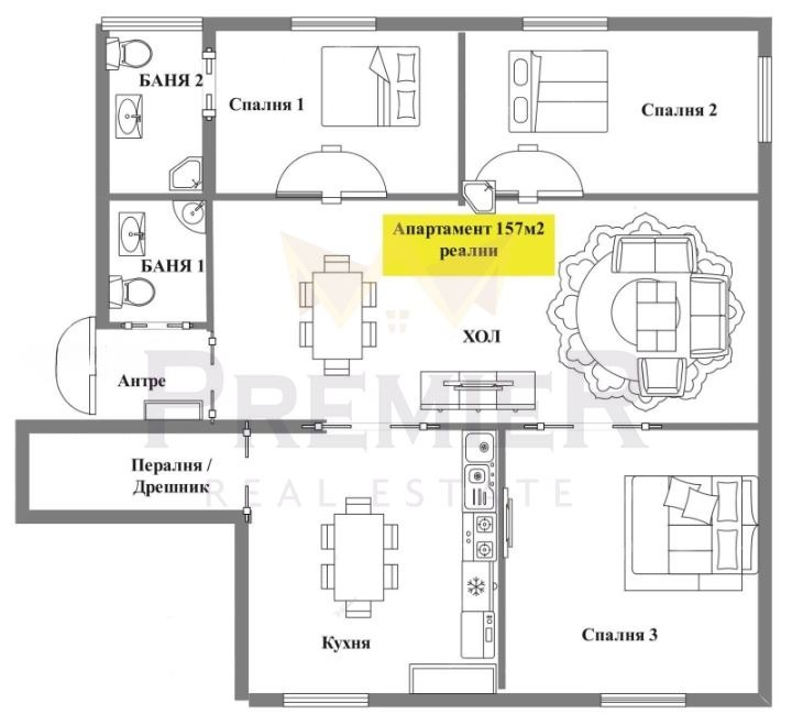
Жилището е ситуирано на първи надпартерен етаж в масивна тухлена сграда с контрол на достъпа . Изложение Югоизток/ Запад. Обща площ от 157м2, с разпределение както следва:входно антре, хол, кухня, три спални,две бани с тоалетна, перално помещение с дрешник. Високи тавани ! Отоплението е посредством електричество . Жилището се нуждае от освежителен ремонт . Добре поддържани общи части! Към имота принадлежи зимнично помещение с площ 11.09 м2.
Сградата се разполага с вътрешен двор - градинка , подходяща за отдих .
Имотът е с централна локация с множество удобства, на пешеходно разстояние от метростанция, спирки на градския транспорт ,пл. Независимост, пл. Света Неделя, както и множество други магазини, ресторанти, училища, детски градини, медицински центрове и др.
Съдействаме БЕЗПЛАТНО на нашите клиенти за:
- кандидатстване и отпускане на ипотечен и/или потребителски кредит от водещите банки в страната, с преференциални условия;
- подготовка, подаване, получаване на всички необходими документи за сделката;
- юридическо съдействие през целия процес на сделката.
Агенцията може да Ви съдейства и за префернциални цени при:
- изготвянето на професионални, дизайнерси проекти;
- архитектурно проектиране / лазерно сканиране / визуализации / scan2bim;
- извършването на професионални, довършителни ремонти.
Код на обявата: 370338
Виж всички обяви в premierimotisf.bazar.bg или тук



