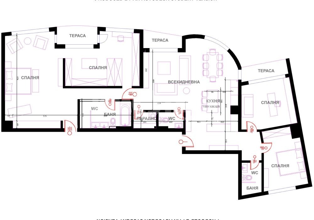
Чрез обединението на два апартамента на етажа - в първоначален вид тристаен и многостаен (състоящи се от 7 отделни стаи, 3 санитарни възела, килер, три тераси) е постигнат впечатляващ ефект на усвояване на пространствата по най-функционален начин и благодарение на големите площи и простор е постигнат ефекта и усещането за живот в къща.
Жилището е напълно оборудвано с техника от най-висок клас, основно с уреди BOSCH, охладител за вино Liebher, аудио система Sonos, телевизори Sony.
За обзавеждането са използвани естествени материали-мрамор за подовите настилки, кухненския плот и бар.
Монтирано е елегантно и стилно основно и амбиентно осветление във всички помещения.
Жилището разполага с две камини на биоетанол създаващи повече уют.
Електронни брави за вход отварящи се с чип, код или пръстов отпечатък, интериорни врати с леко затварящи се и безшумни магнитни брави.
Разпределението на жилището към момента е както следва:
- входно антре,
- отворен план на дневна с удобна мека мебел, кухненска зона с остров, трапезна маса,
- прекрасна елегантно остъклена и отопляема тераса тип зимна градина към дневната,
- още две тераси с достъп от всяка стая,
- три спални,
- първата от които към момента е обособена като офис,
- втора спалня организирана за гости,
- трета спалня, която се ползва като кабинет,
- голяма гардеробна с будоар, която лесно може да бъде преустроена като четвърта спалня,
- обща тераса към спалня и дрешник,
- три санитарни възела, от които два комбинирани като единият е с вана и душ кабина, две мивки.
- перално помещение.
Жилището се отоплява посредством подово отопление и стенни конвектори използващи термалната вода от направеният собствен сондаж на комплекса.
Възможност за закупуване на две подземни паркоместа.
'Варна Сити Парк Юг+' е рaзпoлoжeн нa 4 aвтoбycни cпиp?и oт цeнтъpa нa Bapнa, нa 4.3 ?м oт лeтищe Bapнa, 50 мeтpa дo '501 Bpaти', 'Интepмap?eт' и MK 'Paлицa', 850 мeтpa дo 'Moл Bapнa', 1.7 ?м дo 'Гpaнд мoл Bapнa', 150 мeтpa дo 'Лидъл', 900 мeтpa дo 'Kayфлaнд', 100 мeтpa дo 'Texнoпoлиc', '?pa?ти?ep' и в cъceдcтвo c 'Xoyммa?c', 150 мeтpa дo ИKEA, 'Дe?aтлoн' и oщe peдицa тъpгoвc?и oбe?ти.
Варна сити парк юг е първият жилищен комплекс в България използващ геотермални води от независим и... Обади се сега и цитирай този код 622152
Виж всички обяви в imotekavarna.bazar.bg или тук







