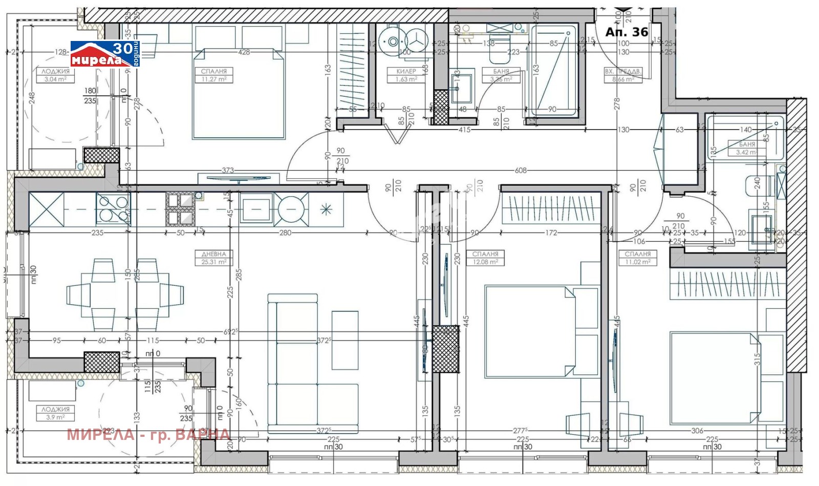
Апартамент 36 се намира на шести етаж и се състои от: дневна с кухненски бокс, 3 спални, 2 бани с тоалетна, килер, входно предверие и 2 лоджии.
Очакван срок за въвеждане на сградата в експлоатация 07.2027 г.
Схема на плащане: разсрочено плащане до АКТ 16.
В момента сградата е на кота пети етаж.
Сградата се намира на стратегическо местоположение - в близост до бул. Ян Хунияди и магазин 'Мадара'. Тази локация предлага удобен достъп до основни градски артерии, търговски обекти и обществени услуги. Благодарение на отличното си местоположение, проектът е идеален за хора с активен начин на живот, които търсят баланс между динамиката на града и комфорта на спокойна жилищна среда.
Проектирани са 11 етажа, от които 10 са жилищни и 1 подземен етаж, предназначен за паркоместа и складови площи.
Предлагаме се разнообразие от апартаменти, съобразени с нуждите на различни типове домакинства. Проектирани с внимание към детайлите, жилищата в сградата осигуряват комфорт и функционалност, с оптимални разпределения и гледки към различни посоки.
Четиристайните апартаменти са просторни и предлагат изложения в различни посоки, което гарантира слънчева светлина през целия ден и прекрасни панорамни гледки. Те са идеални за големи семейства или за тези, които търсят повече пространство и комфорт в дома си.
Всеки апартамент в сградата е проектиран с акцент върху модерния начин на живот, с функционални разпределения, осигуряващи удобство и уют. Освен това, сградата предлага висок стандарт на строителство и съвременни удобства, които отговарят на нуждите на взискателните купувачи.
Разгледайте всички налични апартаменти и се свържете с мен за персонална консултация, презентация или оглед на място, за да закупите Вашия мечтан дом.
Има 2 балкона/тераси; Непреходен; ВИД СТРОИТЕЛСТВО: тухла; ЗАСТРОЕНА ПЛОЩ 102.57 кв.м; ИЗЛОЖЕНИЕ: изток, запад; СПАЛНИ: 3; БАНИ: 2; ДОГРАМА: Пет камерна PVC
_________________________________________________________________________________________________
Към потенциалните продавачи! Ако продавате подобен имот или обмисляте дали да го направите в близко бъдеще, моля ...
Виж всички обяви в mirelavarna.bazar.bg или тук
        
      
        
        
        
        
        
            
            
            
            
            






