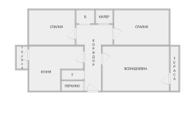
Представяме ви апартамент, находящ се в района на Лятно кино Тракия. Жилището е обзаведено и оборудвано, като има нужда единствено от бяла техника. Имотът се намира в блок с добре поддържани общи части, и има следното разпределение: кухня с излаз на тераса, всекидневна с излаз на тераса, спалня, втора спалня, баня, тоалетна, килер, перално помещение. За ваше улеснение прилагаме схема на разпределение. За информация и оглед, обадете се сега и цитирайте код: 132758
Виж всички обяви в home2uvarna.bazar.bg или тук







