Представяме Ви новa модерна жилищна сграда в процес на строителство, разположена в сърцето на Люлин-Център, София. Този проект съчетава високо качество на строителството с изключителна локация, която Ви осигурява лесен достъп до градски транспорт, супермаркети, училища, болници и зелени площи. Ако търсите висококачествен нов дом или изгодна инвестиция, този проект е идеалният избор за Вас.
Предимства на проекта:
Високо качество: Използване на немски, австрийски и френски материали и технологии гарантират издръжливост и стил.
Идеална локация: Централно разположен в Люлин-Център с отлично развита инфраструктура. Сградата се намира в тиха и спокойна зона в близост до
Метростанция Люлин (300 м), трамвайна спирка, хипермаркет BILLA и хранителен магазин Фантастико.
Гъвкави финансови решения: Индивидуални планове за плащане и лесен достъп до банково ипотечно кредитиране.
Допълнителни услуги: Безплатна правна помощ, консултации за имуществена застраховка, ремонтни дейности и обзавеждане, както и пълен набор от услуги за управление и препродажба на имоти.
Начало на строителните дейности - Февруари 2025г. Срок за завършване: 24 месеца
Основни данни за апартамента:
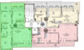
Четиристаен апартамент с обща площ от 116.2 кв.м разположен на 5-ти етаж на сградата.
Изложение: изток север
Функционално разпределение: входно антре, всекидневна с кухненски бокс (24 кв.м), три спални (по 14, 13 и 11 кв.м), 2 тераси и баня с тоалетна и втора тоалетна
Възможност да закупуване на двойно подземно паркомясто за 36 950 евро.
Планове за плащане:
Предлаганата цена е базирана на следната схема:
30% при подписване на предварителен договор
30% при акт 14 (завършен груб строеж)
30% при акт 15
10% при акт 16 (въвеждане в експлоатация)
За повече информация или за организиране на оглед, свържете се с нас на посочения телефон или чрез имейл. Нашият екип ще Ви предостави всички необходими подробности и ще уговори удобна ...
За повече информация свържете се с нас и цитирайте референтния номер на имота. Моля, кажете, че сте видeли обявата в този сайт.
Референтен номер: SOF 128930
Тел: 0988 170 848, 02 454 12 62
Отговорен брокер:Лидия Вълкова
Без комисиона от купувача
Виж всички обяви в superimoti.bazar.bg или тук







