🏡 Агенция за недвижими имоти, 'ГОЛД ИМОТИ', има удоволствието да Ви представи двустайни и тристайни апартаменти, както и един четиристаен апартамент в новострояща се сграда в кв.Кючук Париж!
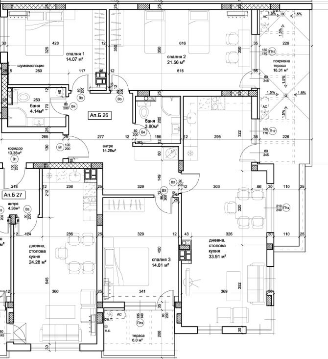
✅ Четиристайният апартамент се състои от: коридор, дневна с кухненски бокс, три спални, две бани с тоалетна и две тераси.
✅Жилището ще бъде издадено по БДС: включва шпакловка и замазка, ел. инсталация до ключ и контакт, ВиК до тапа, висококачествена ПВЦ дограма и външна блиндирана врата.
🚘 Възможност за закупуване на подземни гаражи!
🎯 Локация: Сградата се намира в непосредствена близост до хотел 'ИнтелКооп' , ресторант ' Рио' , парк 'Студенец' , както и до различни търговски обекти и само на 5 минути с кола от Младежки хълм.
✅Пусков срок - лятото на 2026г.
Предимства на сградата:
📌Висококачествено строителство, съобразено с всички стандарти на съвременната архитектура. Изпълнението на сградата ще бъде по традиционен монолитен начин - със стоманобетонови колони, плочи и греди.
📌Използваемите покривни тераси се покриват с леки слънцезащитни устройства перголи, изработени от метална конструкция.
📌Част от фасадните стени са трислойни-вътрешен слой от тухлена зидария, външен от видима тухлена зидария и среден от минерална вата. Фасадата е с характерен архитектурен образ, като съчетание на червена видима тухлена зидария и цветна мазилка, обработка на челата на плочите с Еталбонд .
➡️'ГОЛД ИМОТИ' Ви предлага да се възползвате от професионално кредитно посредничество чрез Credit Center при ипотека, потребителски кредит и рефинансиране!
-УСЛУГАТА Е ИЗЦЯЛО БЕЗПЛАТНА!
-ИЗГОТВЯНЕ НА НЯКОЛКО ОФЕРТИ ОТ ВОДЕЩИ БАНКИ!
-НАЙ-ИЗГОДНИ УСЛОВИЯ СПРЯМО ВАШИЯТ ПРОФИЛ!
-НЕ Е НЕОБХОДИМО ДА СЕ РАЗКАРВАТЕ ВЪВ ВСЕКИ КЛОН НА РАЗЛИЧНИ БАНКИ!
📲 За повече информация и при интерес за оглед, моля свържете се с нас на: 0894 274 966, 0896 706 299 и 0899 125 189!
Виж всички обяви в gold_imoti.bazar.bg или тук
        
       
         
         
             
            






