Комплексът представлява елегантна терасовидна Г-образна жилищна структура, с четири входа, от 4 до 10 етажа, с общо 129 апартамента и ателиета, рецепция, басейн, фитнес със съблекални и сауна, офис и магазин. Паркирането е уредено с подземен гараж, на 2 етажа, с 4 самостоятелни нива, с паркоместа. На разположение са 153 паркоместа, 220 места за велосипеди и 7 зарядни станции за електроавтомобили. Изложението на имотите е основно Юг, Югоизток и Югозапад.
Планирано е получаване на АКТ 15 Юли 2025 г., а сградата да бъде изцяло завършена (АКТ 16) Септември 2025 г.
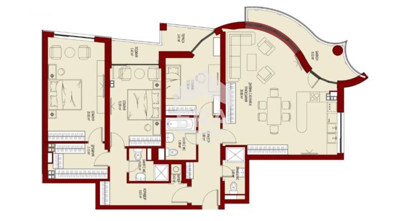
Предложеният имот е четиристаен, със статут на апартамент, разположен на 10 от бщо 11 етажа на сградата, с площ от 190.90 кв.м. Състои се от: коридор 1 (8.09 кв.м.), коридор 2 (8.83 кв.м.), баня с WC 1 (3.45 кв.м.), баня с WC 2 (4.49 кв.м.), баня с WC 3 (3.39 кв.м.) килер (0.63 кв.м.), дневна с кухня и трапезария (39.88 кв.м.), спалня 1 (12.36 кв.м.), спалня 2 (13.91 кв.м.), спалня 3 (20.03 кв.м.), дрешник (7.13 кв.м.), балкон (9.53 кв.м.), тераса (3.47 кв.м.), лоджия (3.42 кв.м.). Изложението е Северозапад и Запад.
Цените, на този етап на строителство започват от 1850 евро на кв.м., без ДДС.
Жилищата са с площ от 54.07 кв.м. до 316.41 кв.м. Имотите се продават със следното ниво на завършеност:
- Под на циментова замазка;
- Стени и таван, с мазилка и гипсова шпакловка;
- Инсталации по ВиК на тапа;
- Ел. инсталация на извод и кабел;
- Отопление на ТЕЦ, с радиатори;
- Тръбна разводка, с изводи за монтаж на инверторни климатици;
Общите части на сградата са качествено и луксозно завършени. Асансьорите са испански, от висок клас, тип ORONA, по два броя на всеки вход.
Предвидена е 24-часова охрана, с контрол на достъпа и видео наблюдение, гарантирана техническа поддръжка. На площ от 2264 кв.м ще е разположен красив собствен парк, с алеи, поддържани басейн, фитнес и сауна, зъболекарски кабинет, офис и магазин, като на по-късен етап се предвижда изграждането и на ресторант и детска площадка.
Локацията на комплекса е на 2 км от Ларгото и НДК, в непосредствена близост до парк Възраждане, Mall Sofia, Руски паметник, Спортен център, Аквапарк, СПА център, Бизнес център Сердика , 67 Основно училище Васил Друмев , 116 ЦДГ Щастливо детство , храм Свети Преподобний Паисий Хилендарски , хипермаркети Кауфланд , Билла , Лидъл , метростанции и други транспортни средства, с удобен достъп до сърцето на столицата и отлична инфраструктура.
ЕРА България е независим кредитен посредник към БНБ, с номер BCI000024 и предоставя безплатна консултация и съдействие при финансиране на избрания от Вас имот.
Оферта 0602755
Виж всички обяви в eracontact.bazar.bg или тук







