'Монолит Естейт' представя, четиристаен апартамент в гр. Варна, кк. Слънчев ден.
На 250м от главния път за кк. Златни пясъци
Имотът е разположен на 6'ти жилищен етаж в 7 етажна сграда.
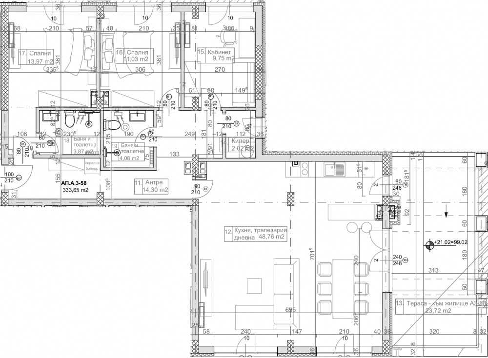
Площа на имота е 243,93м2.
Апартаментът:
💥Дневна - 51,62м2
💥Спалня - 21,16м2
💥Спалня - 19,63м2
💥Спалня - 18,76м2
💥Баня с тоалетна - 6,31м2
💥Баня с тоалетна - 4,74м2
💥Коридор - 1187м2
💥Килер - 2,43м2
💥Тераса - 23,76м2
💥Тераса - 19,70м2
Състояние: Имотът се издава по БДС
Основни характеристики на комплекса:
64 апартамента, разположени в две сгради;
Голяма градина от 4 дка;
Зелени площи, детски кътове, зона за отдих;
Модерна архитектура с функционално разпределени помещения.
Удобна локация, с бърз и лесен достъп до всяка точка.
Апартаменти и разпределения:
Стилни и компактни едностайни апартаменти за семеен уют.
Младите семейства ще се чувстват удобно в двустайните жилища.
Тристайни апартаменти са с практично разпределение за идеалното домакинство.
Четиристайни апартаменти осигуряват простор и комфорт на своите собственици.
Удобства и екстри:
Паркоместа и гаражи, разположени на четири нива с четири подхода за лесен достъп към жилищната част.
Комплексът ще бъде от затворен тип с контрол на достъпа с изградена чип система.
Внедряване на енергийно ефективни решения, които минимизират енергийната консумация чрез иновативни технологии, както и използване на високачествена изолация и монтаж на дограма от висок клас.
Комплексът е разположен в гориста местност с чист въздух, на пешеходно разстояние от красивите плажове и популярни туристически забележителности.
Ще има алеи за разходка, детски кътове, зона за спорт и за отдих.
Локация и транспортна свързаност:
Комплексът е разположен в к.к. Слънчев ден, в непосредствена близост до автобусни спирки, магазини и алеи за разходка.
Защо да изберете този комплекс?
Модерен дизайн и качествено строителство.
Уютна среда с изобилие от зеленина.
Разнообразие от апартаменти за всеки тип семейство.
Удобна локация с лесен достъп до града.
Апартаментите са прекрасна инвестиция за живеене или за отдаване под наем.
Строителят предлага гъвкава схема на разсрочено плащане.
Сградата е с разрешение за строеж. Срок за посторояване - 24 месеца.
'Монолит Естейт' работи с всички банки на пазара, като предлага съдействие при ипотечно кредитиране за избраният от Вас имот. Имаме възможноста да правим запитване до няколко банки, като отговор се получава в рамките до 2 часа. По този начин Монолит Естейт спестява много време на своите клиенти.
Брокер недвижими имоти: Георги Георгиев - ☎ +359 898 87 97 60
Виж всички обяви в monolit.bazar.bg или тук







