Местоположението на сградата е изключително комуникативно и удобно - в подножието на Витоша, в района на Бизнес парк и едноименната метростанция. Достъпът до центъра и кварталите е бърз - по бул. Александър Малинов и по ул. Околовръстен път.
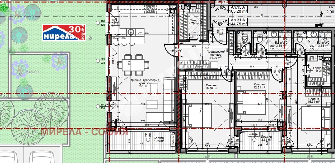
Апартаментът е със следното разпределение: антре, дневна с кухненски бокс, три спални (едната от които е със собствена гардеробна), две бани, допълнителна тоалетна и излаз на просторна тераса.
Строително-инвестиционната компания е с дългогодишен професионален опит. Висококвалифицирани специалисти следят за правилното проектиране и безопасно изпълнение на всички строителни дейности. Строежът се изпълнява в указаните срокове според всички европейски изисквания.
Green Park Avenue се състои от три входа (А, Б и В) и е развита на партерно ниво с ателиета и гаражи и девет изцяло жилищни етажа. Отличава се с модерна и представителна фасада с високоефективна топлоизолация. Общите части са луксозно изпълнени. Озеленяването около сградата ще е изпълнено по проект. В сградата има двустайни, тристайни и четиристайни апартаменти, като паркирането е решено на ниво терен и на ниво -1 с паркоместа и гаражи.
С тази обява представяме Секция А от Green Park Avenue. За да разгледате свободните обекти в Секция Б моля натиснете тук, а за секция В тук!
ЗА ПОВЕЧЕ ИНФОРМАЦИЯ, СРЕЩА С ИНВЕСТИТОРА И ОГЛЕД НА МЯСТО, НЕ СЕ КОЛЕБАЙТЕ ДА СЕ СВЪРЖЕТЕ С ВОДЕЩИЯ КОНСУЛТАНТ - ПРОДАЖБИ.
Има 2 балкона/тераси; Непреходен; ВИД СТРОИТЕЛСТВО: тухла; ЗАСТРОЕНА ПЛОЩ 144.75 кв.м; ИЗЛОЖЕНИЕ: запад, юг; СПАЛНИ: 3; БАНИ: 2; ДОГРАМА: PVC
_________________________________________________________________________________________________
Към потенциалните продавачи!
Ако продавате подобен имот или обмисляте дали да го направите в близко бъдеще, моля свържете се с мен. Имам клиенти, които търсят в района. Мога да дам ориентировъчна цена по телефон или имейл и по-точна цена при оглед на място.
ОГЛЕДЪТ И КОНСУЛТАЦИЯТА СА БЕЗПЛАТНИ.
МОЖЕТЕ СЪЩО ТАКА, ДА ПОДАДЕТЕ И БЕЗПЛАТНА ЧАСТНА ОБЯВА ЗА ПРОДАЖБА НА ВАШИЯ ИМОТ В MIRELA.BG, БЕЗ БРОКЕР И КОМИСИОНА.
Виж всички обяви в mirela.bazar.bg или тук







