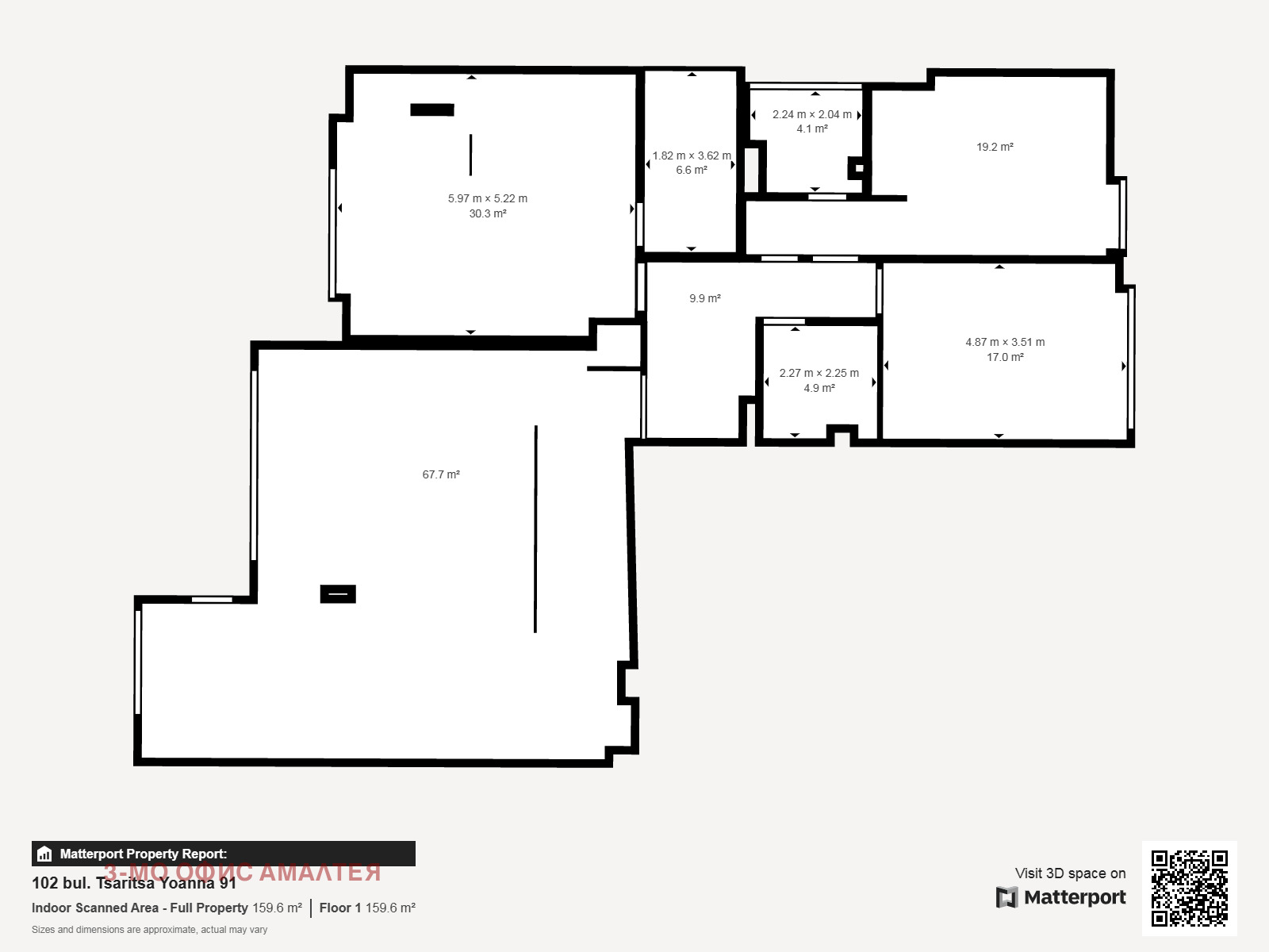
Жилището предлага функционално разпределение и комфорт, разпределени върху 156 кв.м. чиста жилищна площ. Площ с общи части 186 кв.м. Апартаментът се състои от просторна дневна с трапезария и кухненски бокс (68 кв.м.), три непреходни спални с квадратури както следва: родителска спалня (30 кв.м.), към която има собствен санитарен възел (6,6 кв.м.), втора спалня (19 кв.м.), трета спалня (17 кв.м.), три сервизни помещения, склад и голяма панорамна тераса. Апартаментът е с южно изложение и се намира на шестнадесети етаж, откъдето се открива прекрасна гледка към планината и центъра на града.
Издава се на шпакловка и замазка с монтирана блиндирана входна врата, петкамерна PVC дограма с двоен стъклопакет. Отоплението е на ТЕЦ. Има възможност за покупка на подземно паркомясто. Етап на строителство издаден Акт 15. Разрешение за ползване началото на 2025 г. Общите части са луксозно изпълнени. За удобство на собствениците са монтирани два високоскоростни асансьора марка ORONA. Контролът на достъп се осъществява с индивидуален чип и видеодомофонна инсталация. Във всеки апартамент е монтиран видеодомофон със слушалка, звънец и звънчев бутон. Сградата разполага със собствен двор с много зеленина и места за почивка.
Местоположението на сградата e в близост до метростанция, градски транспорт, множество търговски обекти, банкови офиси, детски градини и училища.
3mо Амалтея работи с лицензирания в БНБ кредитен посредник Кредит Навигатор и предлага на своите клиенти БЕЗПЛАТНА консултaция за получаване на най-изгодния ипотечен кредит.
Линк за виртуална разходка: https://my.matterport.com/show/?m=x3oSMNde2j9
Оферта 203
Виж всички обяви в amaltea.bazar.bg или тук







