Изложение С/З
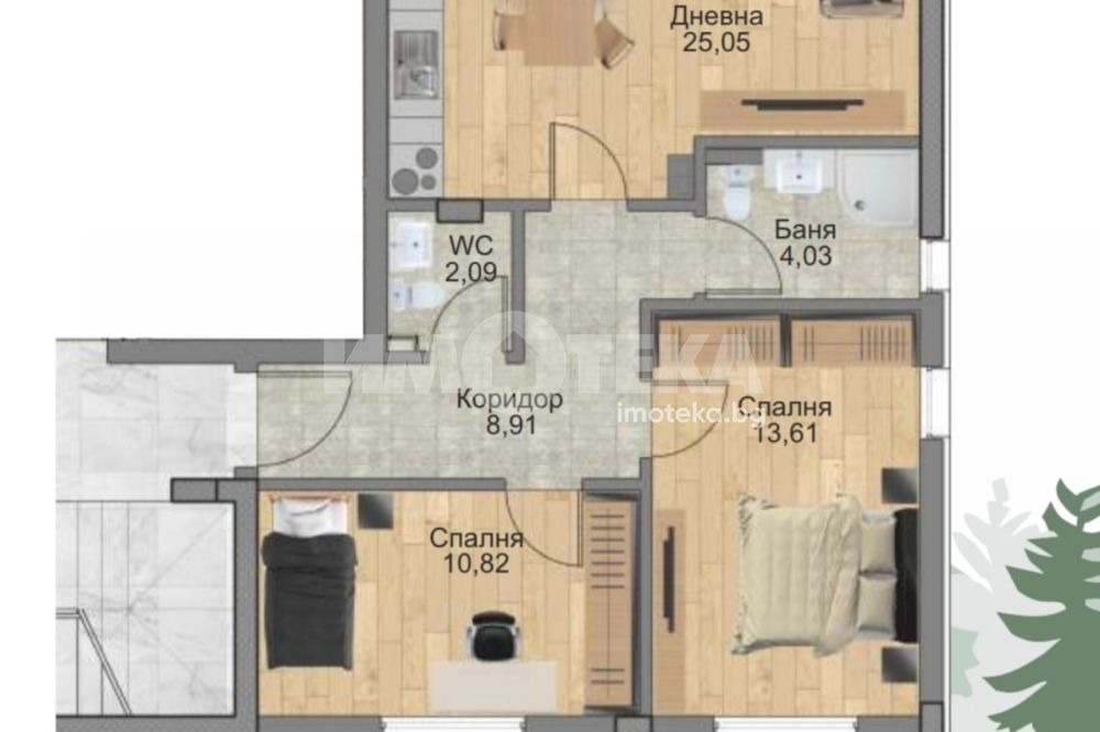
Състои се от коридор, дневна с кухненски кът, две спални, два санитарни възела и тераса.
Сградата е построена с висок клас материали, притежава ограден и озеленен двор.
Възможност за покупка на паркомясто.
Пред акт 15 до края на годината акт 16.
169 000 без ДДС/94кв.м.на 81кв.м.
Обади се сега и цитирай този код 661972
Виж всички обяви в imoteka.bazar.bg или тук







