Качествено и красиво изпълнение на сграда, въведена в експлоатация 09.2025г., доказан за района строител.
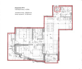
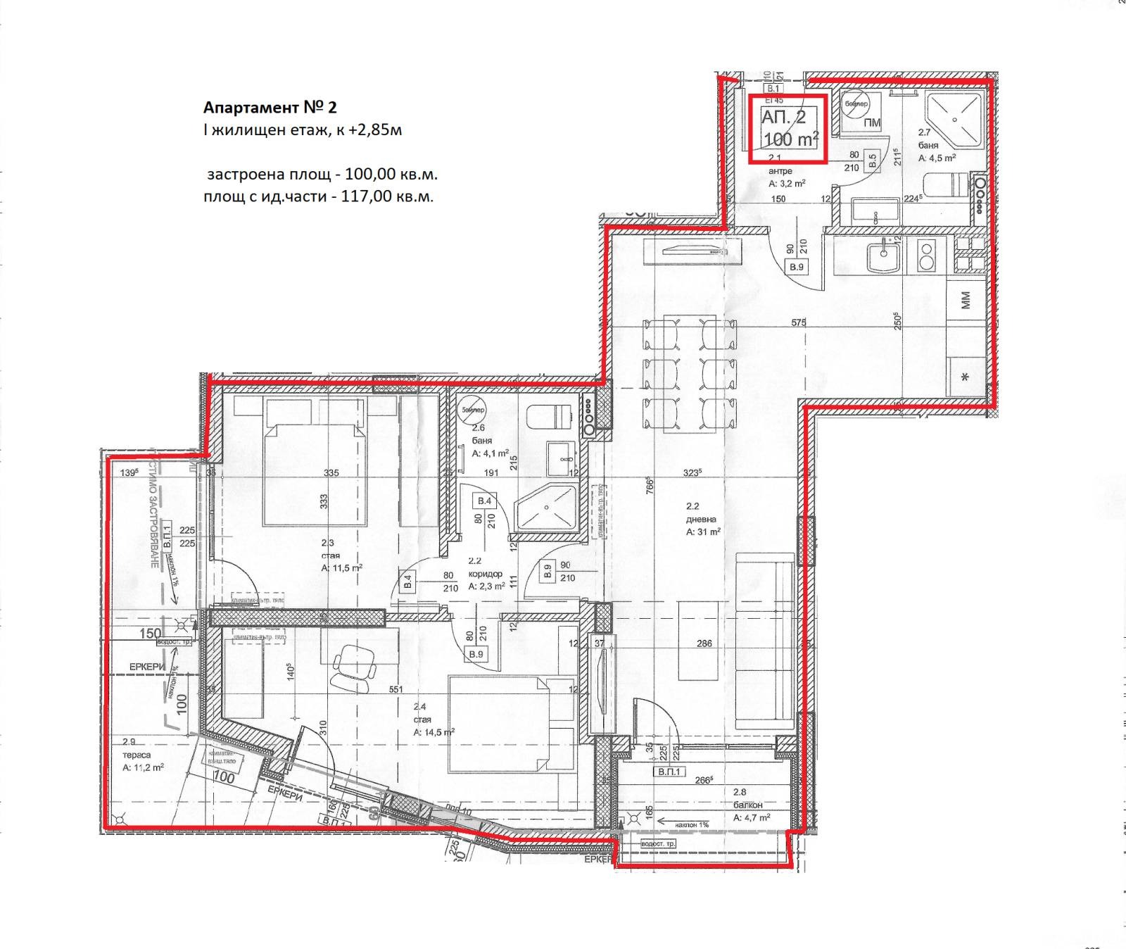
Апартаментът се намира на втори етаж на сградата (първи жилищен), над гаражи, идеално за семейство с деца от гледна точна на шума за съседите. На входа на парк Гео Милев , малка улица до посолство.
Състои се от отворена кухненска и дневна зона, две спални, две бани, антре и два балкона. Банята до входната врата би могла да се намали за сметка на кухнята, която да стане още по-широка. Спалнята с нестандартна форма предразполага към оформяне на два къта евентуално бебешко креватрче в по-тясната част (или офис, ако не е детска стая) и зона за тийнеджър, игра, отдих. Терасите са достатъчно големи, за да се оформят приятни местенца за сядане, хапване, но и парка е на ръка разстояние.
Към апартамента има и гараж, подземен, с врата с дистанционно управление, а рампата за достъп е също покрита. Към момента не се предлага отделно, с предимство са купувачите на жилището като ще договорим добра цена.
Няма мазе, но гаражът е с добри размери, прикачам снимка.
Обявата е от собственик, без комисионни.







