Представяме Ви тристаен апартамент с Aкт 14 в сграда на утвърдения строител Noble House, находяща се в град София, квартал Малинова долина, ул. Атанас Шопов.
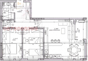
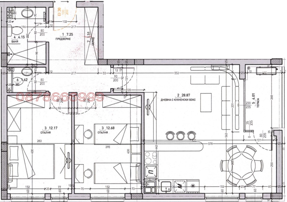
Апартамент - 9Б се състои от входно антре, дневна с кухненски бокс, две спални, баня с тоалетна, тоалетна или складово помещение и тераса. Застроената площ на имота е 85.65 квадратни метра, а общата - 98.37 квадратни метра.
Изложение: Север/Запад
Сградата се очаква да бъде въведена в експлоатация 2026г.
Възможност за покупка на 3 бр. надземни паркоместа, всяко с цена в размер на 16 000 евро.
Имота се предлага само на частни лица.
БЕЗ КОМИСИОН ЗА БРОКЕРИ.







