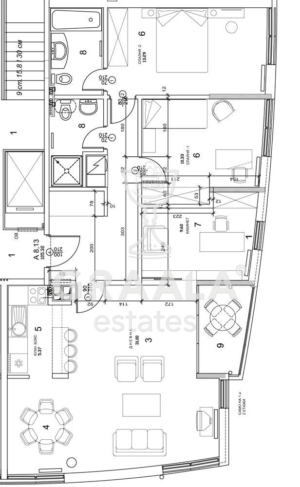
Имотът разполага с:
- Две спални 🛏️, като към едната има собствена баня с тоалетна 🚿
- Втора баня с тоалетна 🚻
- Мокро помещение с пералня и сушилня 🧼
- Просторен хол с дневна и кухня 🍽️ - светъл, голям и перфектен за семейни моменти
- Функционален кабинет 💻, който лесно може да се превърне в трета спалня 🛌
С обща площ от 126 м², разпределенa между 105 м² застроена площ, 18 м² общи части и мазе 3 м².
Апартаментът е на предпоследен четвърти етаж 🏙️ с изложение юг и изток 🌅 - идеален за сутрешна светлина и уют.
Отоплението и охлаждането са подсигурени с климатици ❄️🔥 и конвектори. Подходящ е както за семейно жилище, така и за инвестиция 💼. Общите части са отлично поддържани ✨.
Има възможност за гараж на партерно ниво 🚗 (на отделна цена). ID 266
Виж всички обяви в graala.bazar.bg или тук



