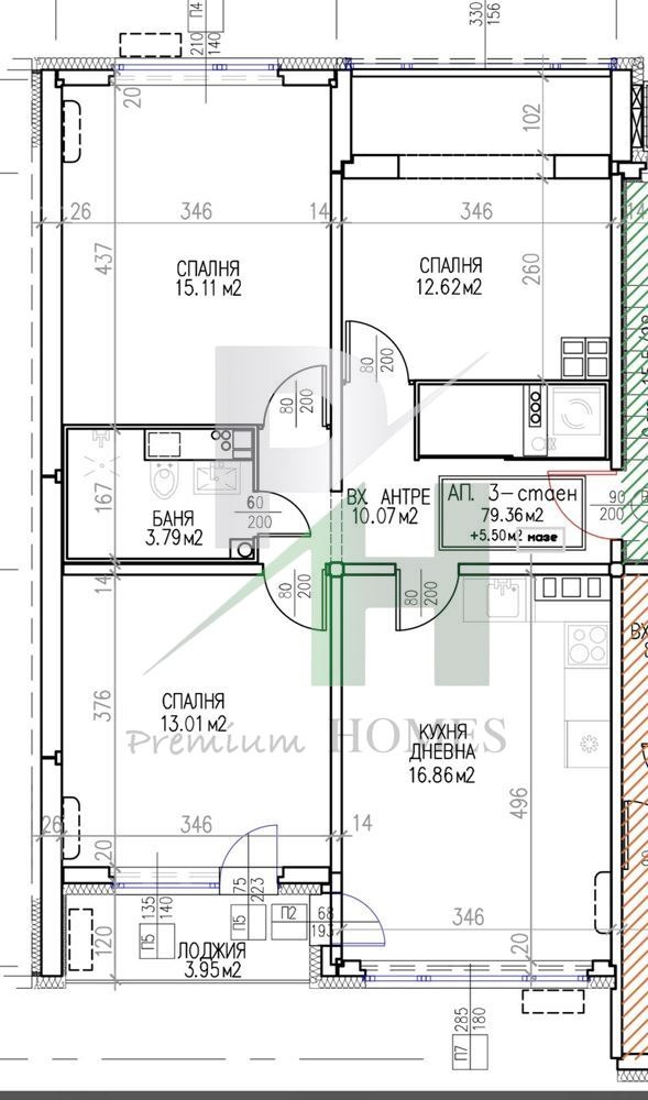
Жилището е след основен ремонт и очаква своите нови собственици. Разпределението е практично и удобно: просторен хол с кухня и трапезария, три самостоятелни спални, мокро помещение баня с тоалетна, тераса и прилежащо мазе. Апартаментът е светъл и топъл, с подменени ВиК и електрически инсталации. Имотът е ситуиран на спокойна улица с възможност за безплатно паркиране.
Подходящ е както за семейно жилище, така и за инвестиция с цел отдаване под наем.
За повече информация, моля свържете се с нас на посочения телефон.
Код на имота: 730
Виж всички обяви в premiumhomes.bazar.bg или тук



