Представям ви едно от най-силните предложения в мегапроекта Охридско езеро парк модерен комплекс на ХЪС Инвест, разположен на ул. Охридско езеро 3, на няколко минути пеша от центъра на София. Локацията предлага непосредствен достъп до парк Възраждане , аквапарк Възраждане , Спортна София, Руски паметник, МОЛ София, метростанциите Константин Величков и Опълченска , болница Пирогов, Медицинска академия, както и множество детски градини, училища и супермаркети. Районът е изключително удобен, с отлична инфраструктура и връзки в различни посоки на града.
ИМОТЪТ
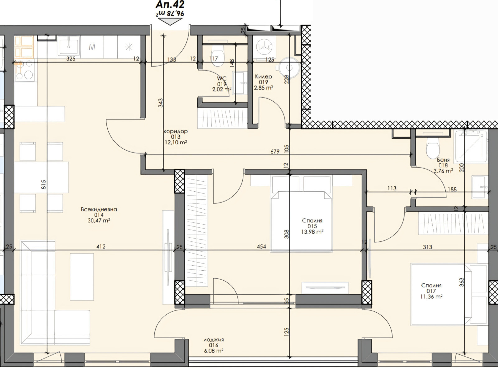
Апартаментът се намира в Секция 4, на седми етаж. Разполага със застроена площ от 96,78 кв.м и обща площ от 114,07 кв.м. Южното изложение осигурява директна гледка към Витоша и много естествена светлина. Жилището е едно от най-търсените разпределения в комплекса, няма налични такива апартаменти при инвеститора. Има монтирани изводи за климатици, висок потенциал за лично ползване или инвестиция.
Цена: 2 600 /кв.м с ДДС.
Подземното паркомясто е на стойност 40 000 с ДДС.
СГРАДАТА И КОМПЛЕКСЪТ
Охридско езеро парк е затворен комплекс от ново поколение, изграден с фокус върху комфорт, енергийна ефективност и модерна градска среда. Състои се от 12 сгради с модерна архитектура, озеленен вътрешен двор и детски площадки, магазини, ресторант и медицински център. Поддръжката е организирана на професионално ниво, с такса от 0.85 лв./кв.м. Сградите са без индексация в цените, оборудвани с подово отопление REHAU, дограма Reynaers с троен стъклопакет 44 мм и фасада с каменно-минерална вата. Вътрешната зона е напълно пешеходна, без автомобили. Секция 4 е пред Акт 15, което означава, че проектът е във финален етап на завършване.
ЗАЩО ТОЗИ ИМОТ
Южно изложение, гарантирана светлина и гледка към планината.
Едно от най-предпочитаните разпределения, липсващо като наличност при инвеститора.
Зона с ясно изразено поскъпване, в непосредствена близост до центъра.
Подходящ както за дългосрочна инвестиция, така и за собствен дом.
Част от един от най-големите и модерни жилищни комплекси в София.
Виж всички обяви в hometed.bazar.bg или тук







