Bulgarimmo има удоволствието да Ви представи изключителен тристаен апартамент в най-иновативния зелен жилищен комплекс в София Семирамида-Витоша . Сградата е част от първия етап на строителство в комплекса, разположен на ул. Проф. Васил Арнаудов в квартал Витоша зона с бързо развитие, отлична инфраструктура и спокойна градска среда, съчетана с панорамни гледки към планината.
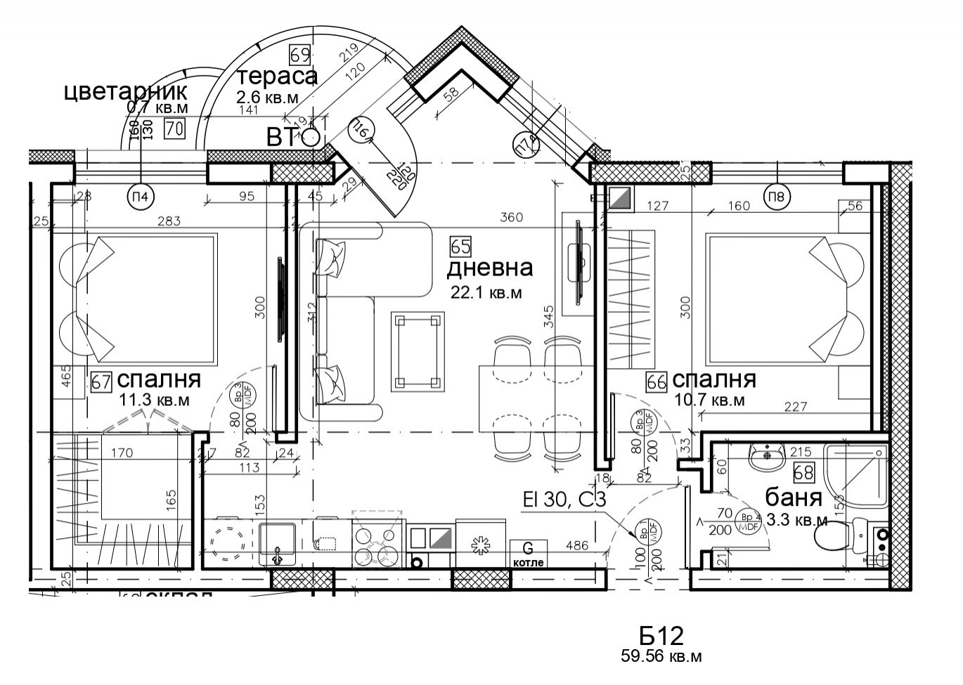
Апартаментът се намира на трети етаж от четириетажна сграда и е със западно изложение, което осигурява следобедно слънце и усещане за уют. Жилището разполага с функционално разпределение входно антре, баня с тоалетна, просторна дневна с трапезария и кухненски бокс,две самостоятелни спални и тераса с площ от 4 кв.м, от която се разкрива гледка към Витоша.
Апартаментът се издава на шпакловка и замазка, с висококачествени френски прозорци, 6-камерна немска дограма REHAU и троен стъклопакет. Сградата е с изключително нисък процент общи части и висока светла височина от 2,67 м. Очаква се да получи Акт 16 през есента на 2026 г., като към момента е на етап Акт 14.
'Семирамида-Витоша' е концептуално различен проект, вдъхновен от Висящите градини на Семирамида, с акцент върху устойчивото строителство и вертикално озеленяване на всяка тераса. Екологичните технологии за поливане и фасадно озеленяване създават уникална зелена атмосфера, която предлага свеж въздух, тишина и комфорт в сърцето на града.
Това е изключителна възможност да притежавате модерен и екологичен дом, който съчетава функционалност, зелени технологии и отлична локация. Свържете се с нас за повече информация или оглед. Екипът на Bulgarimmo е на Ваше разположение.
Виж всички обяви в bulgarimmo.bazar.bg или тук



