Представяме ви тристаен апартамент в нова, модерна сграда пред Акт 16, разположен на бул. Президент Линкълн една от най-предпочитаните части на кв. Овча купел.
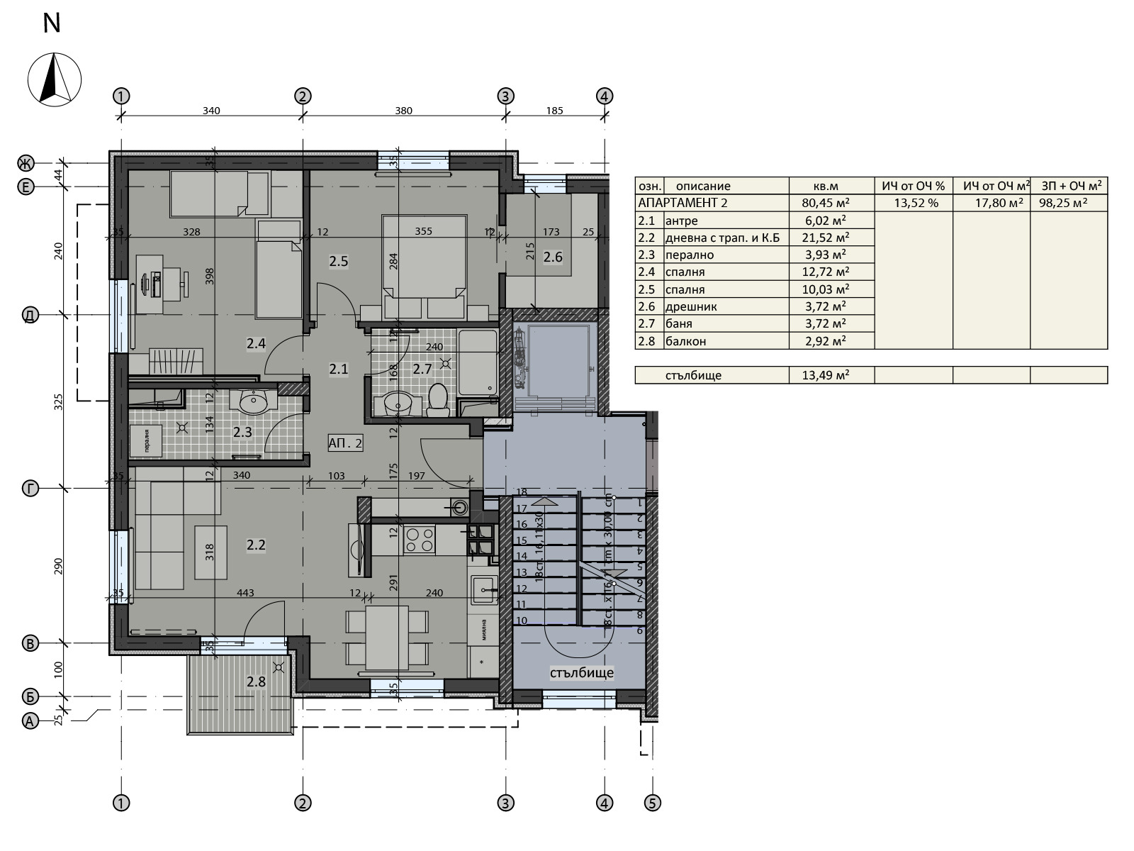
Имотът се намира на първи жилищен етаж и впечатлява с обща площ от 98.25 кв.м (чиста площ 80.45 кв.м), разпределена по следния начин за комфорт и практичност:
Просторно входно антре
Слънчев хол с кухненски бокс с югозападно изложение
Две спални, като едната разполага с удобен дрешник
Баня с тоалетна
Мокро помещение
Изложенията са следните югозапад за дневната зона, запад и север за спалните, което осигурява баланс между светлина и прохлада.
Сградата е пред Акт 16 строена с висок клас материали, модерна фасада и представителни общи части.
Възможност за закупуване на изцяло покрити паркоместа на партерно ниво.
Имот, който съчетава качество, функционалност и изключително изгодна цена на квадратен метър за района.
Подходящ както за собствено ползване, така и като сигурна инвестиция в новоизграждащ се, перспективен квартал.
Отговорен брокер на имота: Максим Дочев
Виж всички обяви в home_center.bazar.bg или тук



