📍 Местоположение: кв. Овча купел един от най-перспективните райони за инвестиция и живеене в София. В близост до бъдеща метростанция, градски транспорт, супермаркети и образователни институции.
Сградата е пред Акт 16 стабилна конструкция и съвременен дизайн.
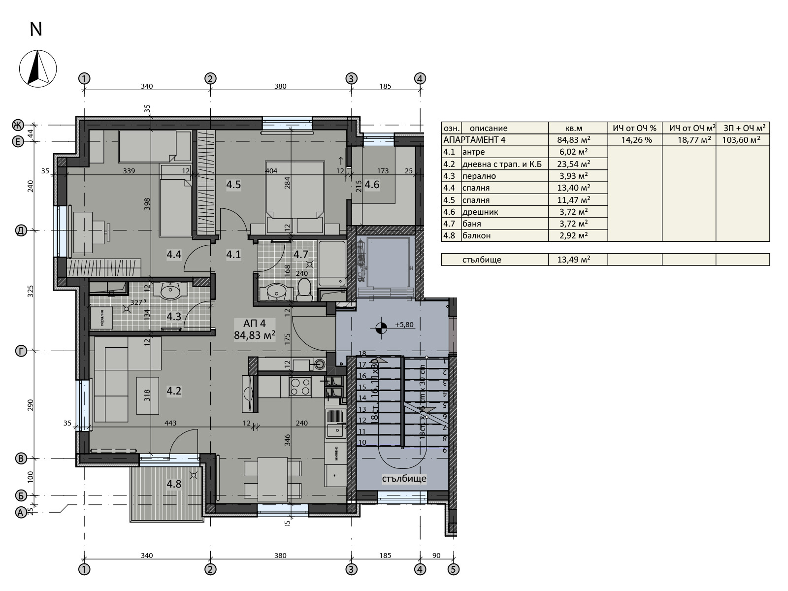
Детайли:
Етаж: 3
Обща площ: 103.60 кв.м
Чиста площ: 84.83 кв.м
Изложение: Юг/Запад естествена светлина през целия ден
Разпределение:
Хол с кухня отворено пространство с достъп до тераса
Две спални, като едната е със собствен дрешник
Две отделни бани с тоалетна
Простор и функционалност за максимален комфорт
Предлага се възможност за закупуване на двойно покрито паркомясто на партер
Цена: 202 000 евро
Идеален както за живеене, така и за инвестиция
Водещ брокер - Никола Апостолов
Виж всички обяви в home_center.bazar.bg или тук



