👌Център в близост до парка Заимов.
❗️Нова сграда с Акт 16 от края на 2024г.
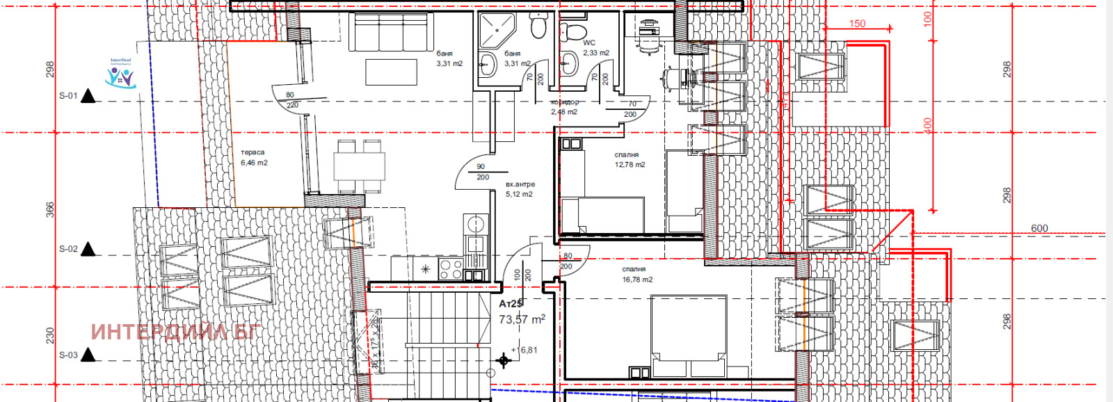
✔️Последен 6 етаж, изложение изток/запад. Една тераса на запад.
📐103 кв.м.
✅Настилка в целия апартамент с трислоен паркет /масив/, окачени тавани с каменна вата за топлоизолация и скрито осветление в тавана на всички стаи.
📍Завършени и оборудвани бани със скрита арматура, стаи шпакловани и боядисани.
📍Поръчкови мебели, кухня с вградени уреди, гардероби и шкафове.
🔥Отопление на ТЕЦ, но има и монтирани климатици във всяка стая.
🚗 При желание може да се купи и двоен гараж на цена 55 000 евро.
Виж всички обяви в interdeal.bazar.bg или тук





