Схема на плащане 30% на Предварителен договор и 70% на АКТ16 /Разрешение за ползване/. За улеснение се прилага схема на имота! Възможност за закупуване на подземно паркомясто!
ОТЛИЧНА ЛОКАЦИЯ в квартал Младост 4. До Бизнес парк София и южната дъга на околовръстното шосе. В непосредствена близост до метростанция 'Бизнес парк' .
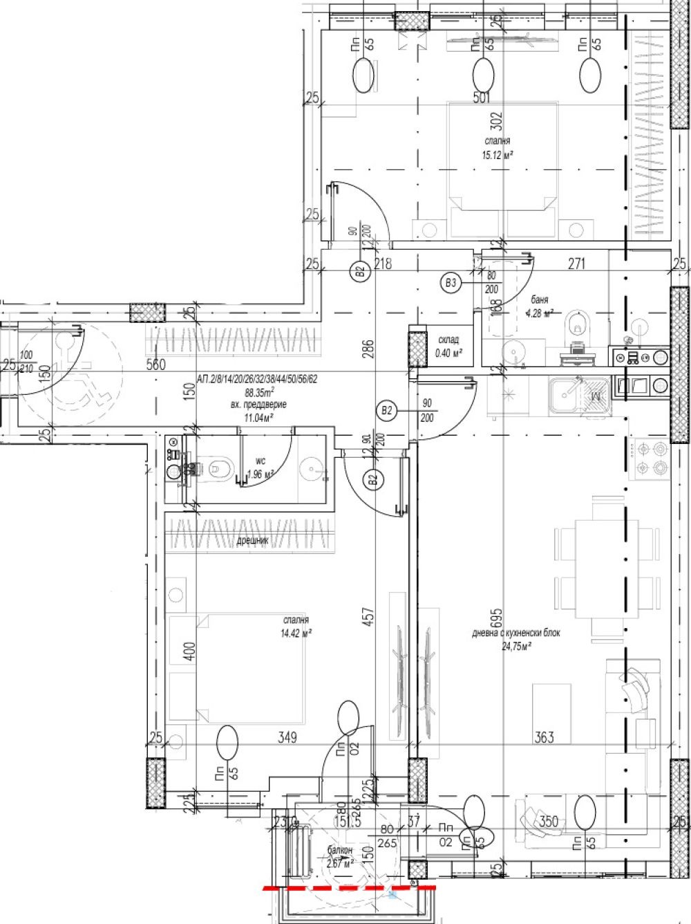
Многофамилна жилищна сграда с магазини, офис, подземни гаражи на три нива и паркоместа. Визията на сградата е с модерен дизайн, архитектурата е смесица от изчистени линии, комбинации от различни материали и много светлина. Еталон на лукса и професионализма в строителството. Апартаментите в нея са проектирани, за да осигурят на собствениците си функционалност, комфорт и уют. Залага се на изпълнение с висококачествени материали, съобразени с всички тенденции за строителство и урбанизация! Отоплението е решено на ТЕЦ.
Висококачествено строителство от инвеститор с множество реализирани проекти!
Сградата е с модерна визия и архитектура, в унисон с новите тенденции на съвременното строителство. Перфектна функционалност на помещенията! Локацията и изключителната комуникативност на сградата, правят мястото идеално за живеене и инвестиция! Отлична транспортна обезпеченост!
Обади се сега и цитирай този код 673220
Виж всички обяви в imoteka.bazar.bg или тук



