Агенция ЕЛЕКРА, предлага:
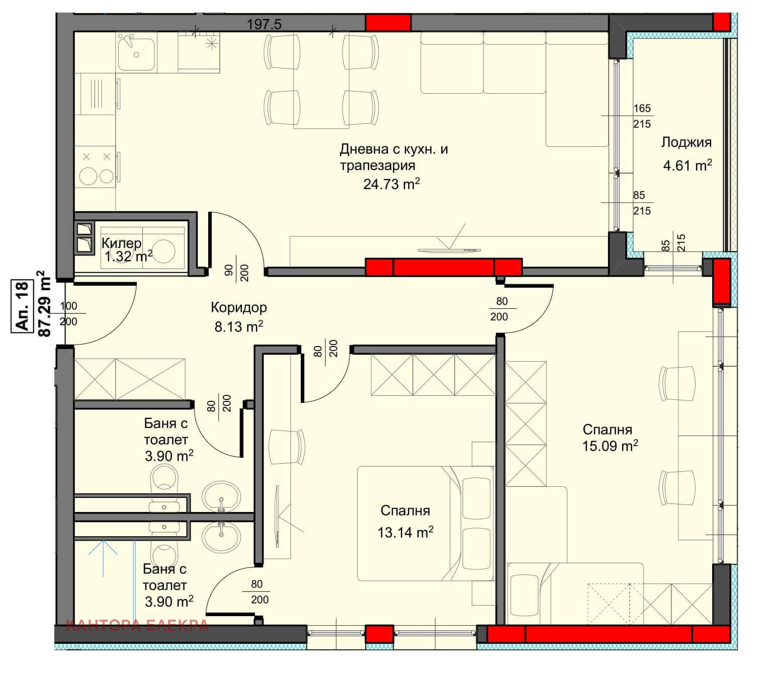
Прекрасен апартамент състоящ се от 2 спални, дневна с кухненски бокс и трапезария, 2 бани с тоалетна, килер, коридор и лоджия. Имотът е с обща площ 99,11 кв.м, което включва 87,29 кв.м чиста жилищна площ и 11,82 кв.м общи части.
Многофамилна жилищна сграда Панорама Аспарухово в кв. Аспарухово предлага съвременни жилища с прекрасна морска панорама. Състои се от 33 апартамента с различна квадратура, разположени на 6 жилищни етажа, с осигурени подземни и надземни паркоместа за своите обитатели.
Отличен достъп, улично осветление и страхотна панорама към морето и града.
Стартирало строителство. Етапи на завършване: Акт 14: март 2026 г., Акт 15: ноември 2026 г., въвеждане в експлоатация март 2027 г. БЕЗ ТАКСА ПОДДРЪЖКА.
Посочената цена e при схема на плащане 50/40/0/10.
За повече подробности , моля обадете се на посочените телефони!
Цена: 137 763 евро
Виж всички обяви в elekra.bazar.bg или тук


