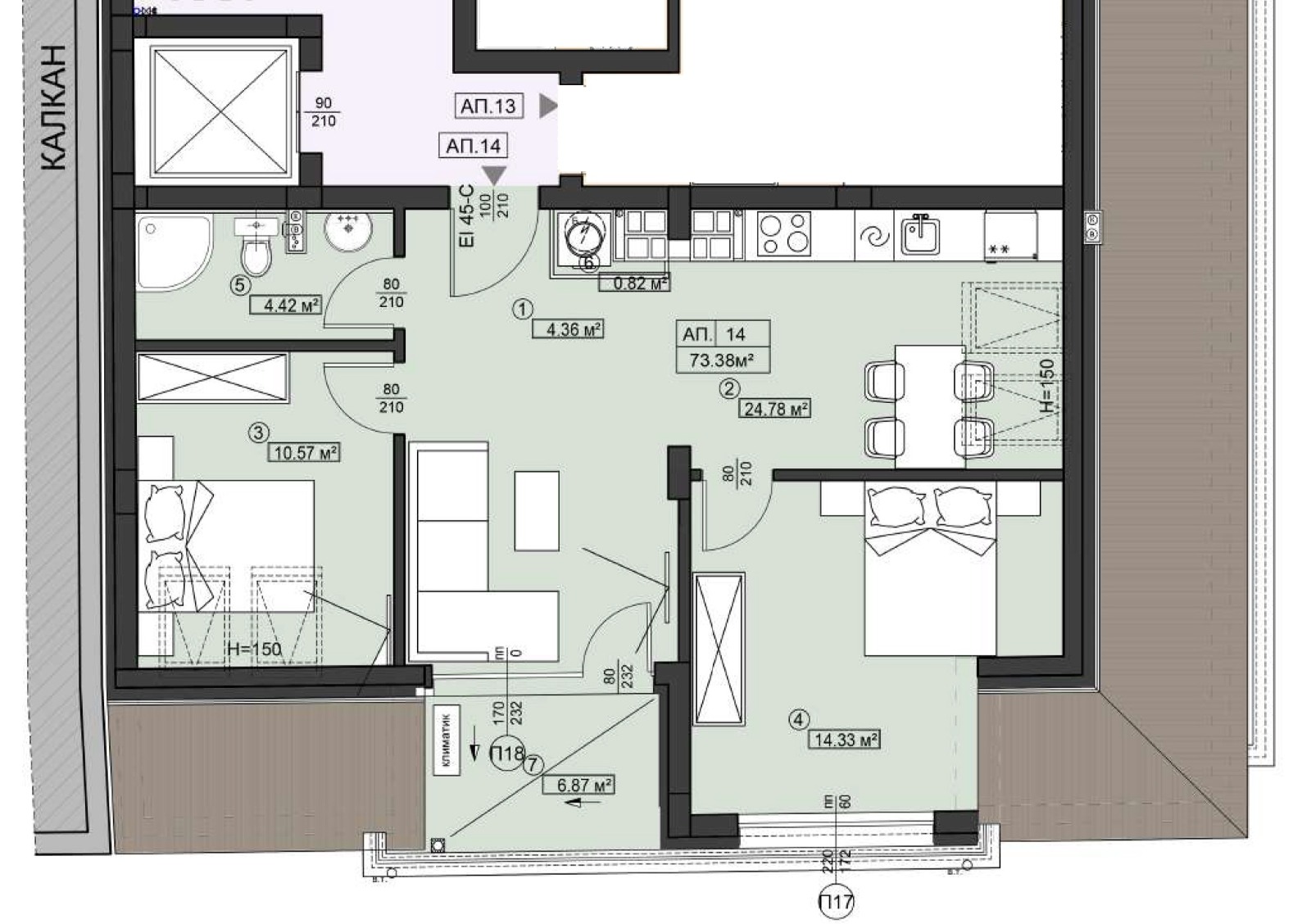
- Разположен на шести / последен / жилищен етаж , АП. 14 е изложен на юг и изток. Състои се от / 73,38 кв.м. / жилищна площ , разпределени във : голям и светъл хол с трапезария и кухненски бокс , тип - open space / 25 кв.м. / , баня с тоалетна , две спални / 14 кв.м. / и / 11 кв.м. /, както голяма южна тераса предлагаща чудесен изглед.
- Жилището се предава с най-висок клас шест камерна PVC дограма / KÖMMERLING / с троен стъклопакет , външна блиндирана врата , поставени алуминиеви радиатори и поставени изводи за климатици , изградени ВиК , ел. инсталации и звънчеви системи. Отопление на ТЕЦ. Луксозни общи части с контрол на достъпа и видео наблюдение.
- Повече информация , уговорки относно огледи , както професионално съдействие за кредитиране от лицензирания ни финансов консултант , на тел . : 0887 776 190
Виж всички обяви в expertbrokers.bazar.bg или тук







