Цената е с ДДС.
Намира се в града и планината едновременно. За всички, които търсят предимствата на дома, в близост до природата, съчетани с динамиката и ритъма на големия и съвременен град.
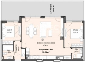
Бутиков жилищен комплекс. Избраните материали за фасадите на комплекса и изпълнението им, елиминират амортизацията от атмосферните условия. Модерни и удобни общи части.Паркирането се осъществява на подземно и полуподземно ниво, като има възможност за избор на единични или двойни гаражи и паркоместа. Сградата разполага и с допълнителни складови помещения и места за велосипеди.Избраните материали за фасадите на комплекса и изпълнението им, елиминират амортизацията от атмосферните условия. Модерни и удобни общи части.
Елегантна архитектура, съчетана с естествени материали от високо качество и произведени от лидери на световния пазар. Отлична инфраструктура. Собствена паркова среда. Денонощна охрана.
Обади се сега и цитирай този код 665916
Виж всички обяви в address.bazar.bg или тук
        
       
         
         
         
         
         
             
             
             
             
            






